Larry Stein Oklahoma County Assessor (405) 713-1200 - Public Access System
Home Contact Us Guest Book Map Search New Search
Building Detail Results - Screen Produced   4/14/2026 9:36:59 AM 
 Account #:  R064144920 Bldg #1
Sketch

 Building #: 1
 Built As:  Ranch 1 Story
 # of Stories:  1 Stories
 Square Feet:  1,655
 Year Built:  1938
 Remodel Year:  2000
 Building Name:   
 Alt Land Use Desc:  Platted
 Quality Desc:  Fair
 Bldg Frame Description:  
 Foundation Desc:  Conventional
 Bldg Exterior:  Frame Masonry Veneer
 Roof Type:  Gable/Hip
 Roof Cover:   Composition Shingle
 Avg Floor Height:  8
 Percent Sprinkled:  0
 Bldg Interior:  Drywall
 Total Rooms:  6
 # of Units w/Bedrooms: # of units (1) with 3 Bedrooms
 # of Baths:  (1)-Full, (0)-3/4, (0)-half
 HVAC Type:  Central Air to Air
 # of Fire Places:  0
 Percent Heated:  100
 Physical Condition:  Average
 # of Res Units:  1
 # of Comm Units:  0
 Commercial Desc:   
 Occ Type:  0100
 Commercial Class:  R
 MFG Home Length:  0
 MFG Home Width:  0

Photos

2024 

2020 

2016 

2012 

2008 

2004 

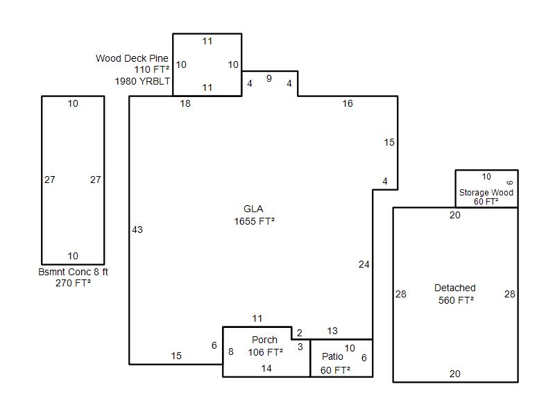
Garage, Porch, Basement, Storage, Utility etc.  (GLA=Gross Living Area    GBA=Gross Bldg Area)
Account # Feature Description Sqft/Area Number of Stories

R064144920

 GLA

 GLA

1,655 

1

R064144920

 GarDetach

 Detached

560 

1

R064144920

 BsmtC8ft

 Bsmnt Conc 8 ft

270 

1

R064144920

 PorWood R

 Porch

106 

1

R064144920

 PorOpenSl

 Patio

60 

1

R064144920

 StoWood

 Storage Wood

60 

1

Additional Details
Account #: Bldg # Description Qty # Of Units Description

R064144920

1

Allowance

1

Units

R064144920

1

Laundry Facility

1

Square Feet

R064144920

1

Wood Deck Pine

1

110 

Square Feet