Larry Stein Oklahoma County Assessor (405) 713-1200 - Public Access System
Home Contact Us Guest Book Map Search New Search
Building Detail Results - Screen Produced   4/13/2026 4:10:50 AM 
 Account #:  R064157240 Bldg #1
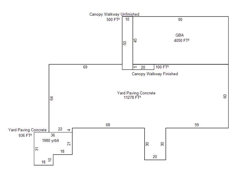
Sketch

 Building #: 1
 Built As:  Indust Lght Manufacturing
 # of Stories:  1 Stories
 Square Feet:  4,050
 Year Built:  2008
 Remodel Year:   
 Building Name:  STAR TINT
 Alt Land Use Desc:  Platted Commercial
 Quality Desc:  Fair
 Bldg Frame Description:  Metal Frame
 Foundation Desc:  Slab
 Bldg Exterior:  Metal Siding
 Roof Type:  Gable
 Roof Cover:   Formed Seam Metal
 Avg Floor Height:  14
 Percent Sprinkled:  0
 Bldg Interior:  
 Total Rooms:   
 # of Units w/Bedrooms: # of units ( ) with   Bedrooms
 # of Baths:  (0)-Full, (0)-3/4, (0)-half
 HVAC Type:  Space Heater
 # of Fire Places:  0
 Percent Heated:  100
 Physical Condition:  Good
 # of Res Units:  0
 # of Comm Units:  1
 Commercial Desc:   
 Occ Type:  0334
 Commercial Class:  C
 MFG Home Length:  0
 MFG Home Width:  0

Photos

2021 

2013 

2009 

2008 

2007 

2004 

Garage, Porch, Basement, Storage, Utility etc.  (GLA=Gross Living Area    GBA=Gross Bldg Area)
Account # Feature Description Sqft/Area Number of Stories

R064157240

 GBA

 GBA

4,050 

1

Additional Details
Account #: Bldg # Description Qty # Of Units Description

R064157240

1

Canopy Walkway Finished

1

100 

Square Feet

R064157240

1

Canopy Walkway Unfinished

1

500 

Square Feet

R064157240

1

Fence Chain Link 8`

1

43 

Linear Feet

R064157240

1

Fence Chain Link 8` + Brb Wire

1

107 

Linear Feet

R064157240

1

Fence Wrought Iron CM 5`

1

146 

Linear Feet

R064157240

1

Yard Paving Concrete

1

11,278 

Square Feet

R064157240

1

Yard Paving Concrete

1

936 

Square Feet