Larry Stein Oklahoma County Assessor (405) 713-1200 - Public Access System
Home Contact Us Guest Book Map Search New Search
Building Detail Results - Screen Produced   4/2/2026 11:54:31 AM 
 Account #:  R113650720 Bldg #1
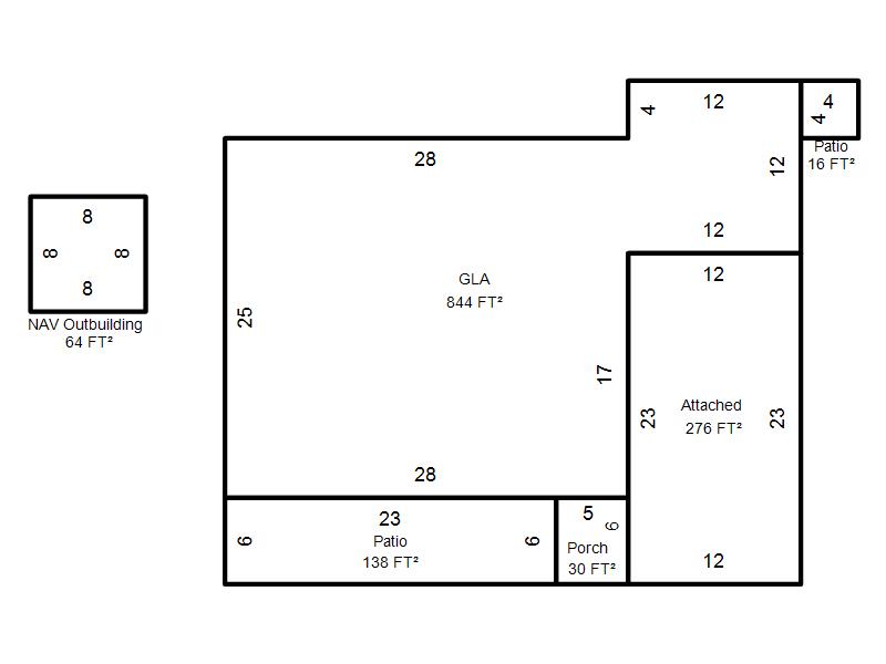
Sketch

 Building #: 1
 Built As:  Ranch 1 Story
 # of Stories:  1 Stories
 Square Feet:  844
 Year Built:  1951
 Remodel Year:   
 Building Name:   
 Alt Land Use Desc:  Platted
 Quality Desc:  Fair
 Bldg Frame Description:  
 Foundation Desc:  Conventional
 Bldg Exterior:  Frame Masonry Veneer
 Roof Type:  Hip
 Roof Cover:   Composition Shingle
 Avg Floor Height:  8
 Percent Sprinkled:  0
 Bldg Interior:  Drywall
 Total Rooms:  4
 # of Units w/Bedrooms: # of units (1) with 2 Bedrooms
 # of Baths:  (1)-Full, (0)-3/4, (0)-half
 HVAC Type:  Forced Air
 # of Fire Places:  0
 Percent Heated:  100
 Physical Condition:  Average
 # of Res Units:  1
 # of Comm Units:  0
 Commercial Desc:   
 Occ Type:  0100
 Commercial Class:  R
 MFG Home Length:  0
 MFG Home Width:  0

Photos

2023 

2019 

2015 

2012 

2008 

2004 

Garage, Porch, Basement, Storage, Utility etc.  (GLA=Gross Living Area    GBA=Gross Bldg Area)
Account # Feature Description Sqft/Area Number of Stories

R113650720

 GLA

 GLA

844 

1

R113650720

 GarAttach

 Attached

276 

1

R113650720

 PorOpenSl

 Patio

138 

1

R113650720

 PorWood R

 Porch

30 

1

R113650720

 PorOpenSl

 Patio

16 

1

Additional Details
Account #: Bldg # Description Qty # Of Units Description

R113650720

1

Allowance

1

Units

R113650720

1

Driveway Slab

1

180 

Square Feet

R113650720

1

Laundry Facility

1

Square Feet

R113650720

1

NAV Outbuilding

1

64 

Square Feet