Larry Stein Oklahoma County Assessor (405) 713-1200 - Public Access System
Home Contact Us Guest Book Map Search New Search
Building Detail Results - Screen Produced   4/5/2026 6:58:30 AM 
 Account #:  R130841750 Bldg #1
Sketch

 Building #: 1
 Built As:  Church
 # of Stories:  1 Stories
 Square Feet:  11,640
 Year Built:  2016
 Remodel Year:   
 Building Name:  WORD FIRST MINISTRIES
 Alt Land Use Desc:  Churches & Religious Orgs
 Quality Desc:  Average
 Bldg Frame Description:  Wood Frame
 Foundation Desc:  Slab
 Bldg Exterior:  Masonry Face Brick
 Roof Type:  Gable
 Roof Cover:   Composition Shingle
 Avg Floor Height:  10
 Percent Sprinkled:  0
 Bldg Interior:  
 Total Rooms:   
 # of Units w/Bedrooms: # of units ( ) with   Bedrooms
 # of Baths:  (0)-Full, (0)-3/4, (0)-half
 HVAC Type:  Package Unit
 # of Fire Places:  0
 Percent Heated:  100
 Physical Condition:  Good
 # of Res Units:  0
 # of Comm Units:  1
 Commercial Desc:   
 Occ Type:  0309
 Commercial Class:  C
 MFG Home Length:   
 MFG Home Width:   

Photos

2024 

2023 

2019 

2016 

2014 

2010 

2006 

2005 

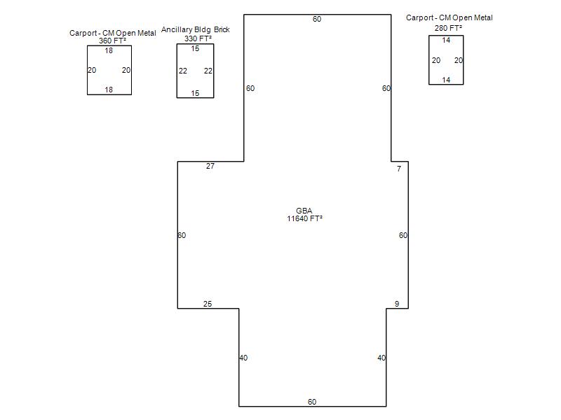
Garage, Porch, Basement, Storage, Utility etc.  (GLA=Gross Living Area    GBA=Gross Bldg Area)
Account # Feature Description Sqft/Area Number of Stories

R130841750

 GBA

 GBA

11,640 

1

Additional Details
Account #: Bldg # Description Qty # Of Units Description

R130841750

1

Ancillary Bldg Brick

1

330 

Square Feet

R130841750

1

Carport - CM Open Metal

1

280 

Square Feet

R130841750

1

Carport - CM Open Metal

1

360 

Square Feet

R130841750

1

Yard Paving Concrete Unsketched

1

26,160 

Square Feet