Larry Stein Oklahoma County Assessor (405) 713-1200 - Public Access System
Home Contact Us Guest Book Map Search New Search
Building Detail Results - Screen Produced   4/9/2026 10:42:10 AM 
 Account #:  R208231060 Bldg #1
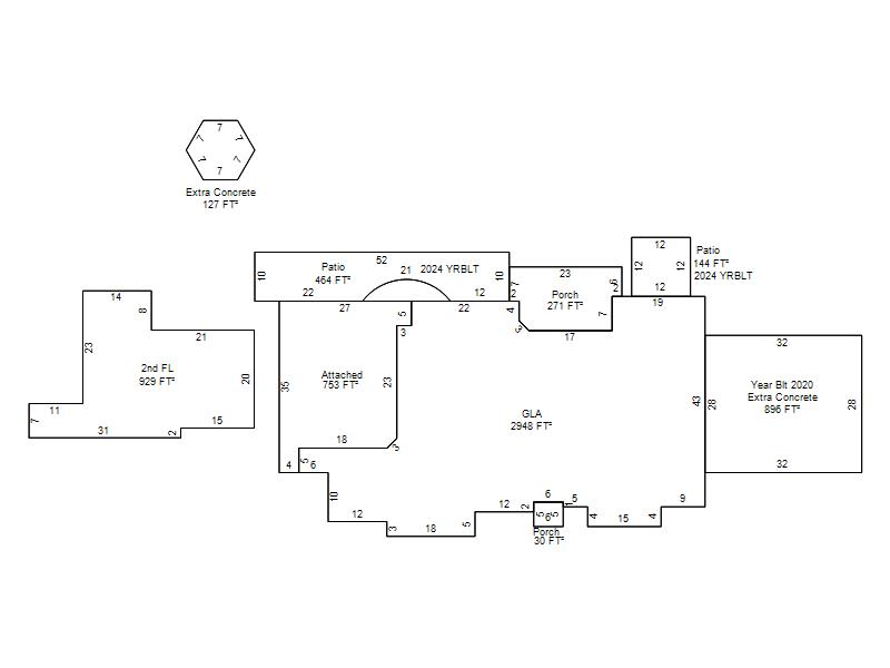
Sketch

 Building #: 1
 Built As:  1½ Story Fin
 # of Stories:  1.5 Stories
 Square Feet:  3,877
 Year Built:  2014
 Remodel Year:   
 Building Name:   
 Alt Land Use Desc:  Platted
 Quality Desc:  Good
 Bldg Frame Description:  
 Foundation Desc:  Slab
 Bldg Exterior:  Frame Masonry Veneer
 Roof Type:  Hip/Gable
 Roof Cover:   Composition Shingle
 Avg Floor Height:  8
 Percent Sprinkled:  0
 Bldg Interior:  Drywall
 Total Rooms:  10
 # of Units w/Bedrooms: # of units (1) with 4 Bedrooms
 # of Baths:  (3)-Full, (0)-3/4, (1)-half
 HVAC Type:  Central Air to Air
 # of Fire Places:  1
 Percent Heated:  100
 Physical Condition:  Average
 # of Res Units:  1
 # of Comm Units:  0
 Commercial Desc:   
 Occ Type:  0100
 Commercial Class:  R
 MFG Home Length:  0
 MFG Home Width:  0

Photos

2024 

2023 

2019 

2017 

2015 

2014 

Garage, Porch, Basement, Storage, Utility etc.  (GLA=Gross Living Area    GBA=Gross Bldg Area)
Account # Feature Description Sqft/Area Number of Stories

R208231060

 GLA

 GLA

2,948 

1

R208231060

 GLA2

 2nd FL

929 

1

R208231060

 GarAttach

 Attached

753 

1

R208231060

 PorOpenSl

 Patio

464 

1

R208231060

 PorWood R

 Porch

271 

1

R208231060

 PorOpenSl

 Patio

144 

1

R208231060

 PorWood R

 Porch

30 

1

Additional Details
Account #: Bldg # Description Qty # Of Units Description

R208231060

1

Allowance

1

Units

R208231060

1

Extra Concrete

1

127 

Square Feet

R208231060

1

Extra Concrete

1

896 

Square Feet

R208231060

1

Laundry Facility

1

Square Feet

R208231060

1

Swimming Pool

1

375 

Square Feet