Larry Stein Oklahoma County Assessor (405) 713-1200 - Public Access System
Home Contact Us Guest Book Map Search New Search
Building Detail Results - Screen Produced   4/8/2026 5:33:37 PM 
 Account #:  R131890600 Bldg #2
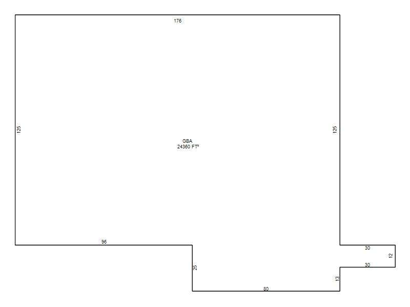
Sketch

 Building #: 2
 Built As:  Storage Warehouse
 # of Stories:  1 Stories
 Square Feet:  24,360
 Year Built:  2021
 Remodel Year:   
 Building Name:  FDH
 Alt Land Use Desc:  Unplatted Commercial
 Quality Desc:  Good
 Bldg Frame Description:  Masonry
 Foundation Desc:  Slab
 Bldg Exterior:  Masonry Pre-Cast
 Roof Type:  Flat
 Roof Cover:   Elastomeric
 Avg Floor Height:  21
 Percent Sprinkled:   
 Bldg Interior:  
 Total Rooms:   
 # of Units w/Bedrooms: # of units ( ) with   Bedrooms
 # of Baths:  ( )-Full, ( )-3/4, ( )-half
 HVAC Type:  Package Unit
 # of Fire Places:   
 Percent Heated:  100
 Physical Condition:  Very Good
 # of Res Units:   
 # of Comm Units:  1
 Commercial Desc:   
 Occ Type:  0406
 Commercial Class:  C
 MFG Home Length:   
 MFG Home Width:   

Photos

2021 

Garage, Porch, Basement, Storage, Utility etc.  (GLA=Gross Living Area    GBA=Gross Bldg Area)
Account # Feature Description Sqft/Area Number of Stories

R131890600

 GBA

 GBA

24,360 

1

Additional Details
Account #: Bldg # Description Qty # Of Units Description

R131890600

2

Yard Paving Concrete Unsketched

1

105,000 

Square Feet