|
|
|
| Larry Stein Oklahoma County Assessor (405) 713-1200 - Public Access System |
|
|
|
|
|
|
| Real Property Display - Screen Produced 4/4/2026 4:59:22 PM | ||||
|---|---|---|---|---|
| Account: R144142400 | Type: Residential | Location: |
5801 REGAL RD |
|
| Building Name/Occupant: |
|
OKLAHOMA CITY |
||
| Owner Name 1: | COFFEY STUART MORRIS |
Parcel PIN#: |
1278-14-414-2400 |
|
| Owner Name 2: | 1/4 section #: |
1278 |
||
| Owner Name 3: | Parent Acct: |
|
||
| Billing Address: | 5801 REGAL RD | Tax District: |
|
|
| City, State, Zip | OKLAHOMA CITY, OK 73150 | School System: |
Mid-Del #52 |
|
|
Country: (If noted) |
Land Size: |
5.0100 Acres |
||
|
Land Value: 78,682 |
|
|||
|
Sect 20-T11N-R1W Qtr SE |
UNPLTD PT SEC 20 11N 1W
Block
000
Lot
000
|
|||
| Full Legal Description: UNPLTD PT SEC 20 11N 1W 000 000 PT SE4 SEC 20 11N 1W BEG 697.98FT W & 484.71FT N OF SE/C OFSE4 TH W450FT N484.97FT E450FT S484.97FT TO BEG AKA TR 20 CONT 5.01ACRS MORE OR LESS |
| Photo & Sketch (if available) | Comp Sales (ordered by relevancy) |
|
|||||||||||||||
|
|||||||||||||||||
| Value History (*The County Treasurer 405-713-1300 posts & collects actual tax amounts. Contact information HERE) | |||||||||||||
|---|---|---|---|---|---|---|---|---|---|---|---|---|---|
| Year | Market Value | Taxable Mkt Value | Gross Assessed | Exemption | Net Assessed | Millage | Est. Tax | Tax Savings | |||||
|
2026 |
446,500 |
361,198 |
39,731 |
39,731 |
0 |
126.46 |
$0 |
$6,211 |
|||||
|
2025 |
455,000 |
350,678 |
38,574 |
38,574 |
0 |
126.46 |
$0 |
$6,329 |
|||||
|
2024 |
442,500 |
340,465 |
37,450 |
37,450 |
0 |
128.51 |
$0 |
$6,255 |
|||||
|
2023 |
418,000 |
330,549 |
36,360 |
36,360 |
0 |
122.94 |
$0 |
$5,653 |
|||||
|
2022 |
360,000 |
320,922 |
35,301 |
35,301 |
0 |
122.11 |
$0 |
$4,836 |
|||||
| Property Account Status/Adjustments/Exemptions | ||
|---|---|---|
| Account # | Exemption Description | Amount |
|
R144142400 |
3% Cap Homestead |
0 |
|
R144142400 |
100% DAV Exemption |
100 |
|
R144142400 |
DAV Homestead |
0 |
| Property Deed Transaction History (Recorded in the County Clerk's Office) | ||||||||||
|---|---|---|---|---|---|---|---|---|---|---|
| Date | Type | Book | Page | Price | Grantor | Grantee | ||||
|
9/20/2019 |
|
Deeds |
$296,500 |
MOORE LANIS V TRS |
COFFEY STUART MORRIS |
|||||
|
7/3/2019 |
|
Deeds |
$0 |
SULLIVAN SHIRLEY & KENNETH W |
MOORE LANIS V TRS |
|||||
|
4/5/2017 |
|
Deeds |
$0 |
MOORE LANIS V & BERTIE E CO TRS MOORE LANIS V & BERTIE E TRU |
MOORE LANIS V TRS MOORE LANIS V & BERTIE E TRUST |
|||||
|
4/5/2017 |
|
Deeds |
$0 |
TRANSFER ON DEATH |
MOORE LANIS V TRS |
|||||
|
10/21/2010 |
|
Deeds |
$0 |
MOORE LANIS V & BERTIE E |
MOORE LANIS V & BERTIE E CO TRS MOORE LANIS V & BERTIE E TRU |
|||||
| Last Mailed Notice of Value (N.O.V.) Information/History | ||||||||
|---|---|---|---|---|---|---|---|---|
| Year | Date | Market Value | Taxable Market Value | Gross Assessed | Exemption | Net Assessed | ||
|
2026 |
02/06/2026 |
446,500 |
361,198 |
39,731 |
39,731 |
0 |
||
|
2025 |
01/31/2025 |
455,000 |
350,678 |
38,574 |
38,574 |
0 |
||
|
2024 |
01/22/2024 |
442,500 |
340,465 |
37,450 |
37,450 |
0 |
||
|
2023 |
01/23/2023 |
418,000 |
330,549 |
36,360 |
36,360 |
0 |
||
|
2022 |
02/22/2022 |
360,000 |
320,922 |
35,301 |
35,301 |
0 |
||
| Property Building Permit History | ||||||
|---|---|---|---|---|---|---|
| Issued | Permit # | Provided by | Bldg # | Description | Est Construction Cost | Status |
|
2/12/2002 |
10239105 |
OKLAHOMA CITY |
1 |
Main Dwellin |
125,000 |
Inactive |
| Click button on building number to access detailed information: | ||||||
|---|---|---|---|---|---|---|
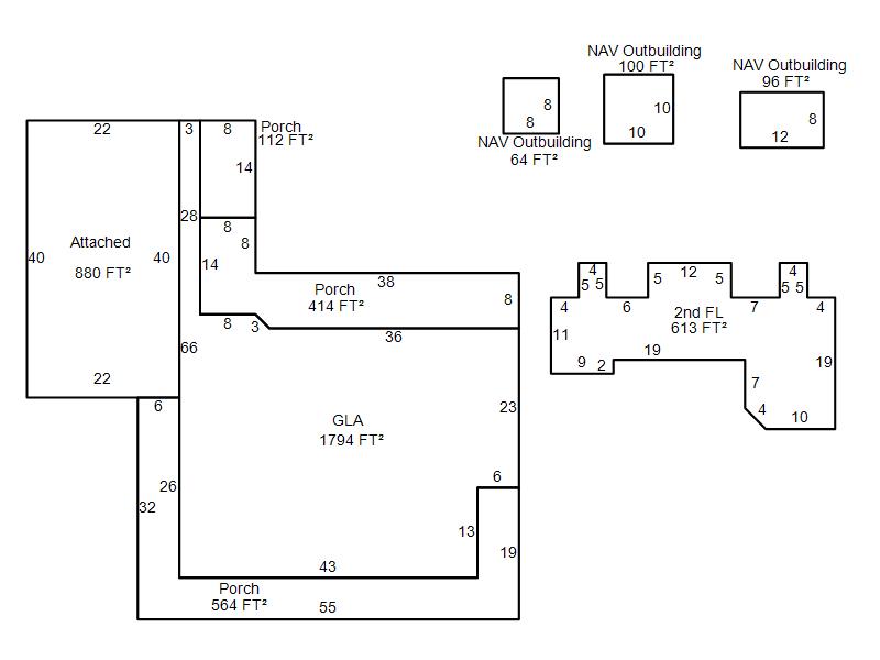
| Bldg # | Vacant/Improved Land | Bldg Description | Year Built | SqFt | # Stories | |
|
1 |
Improved |
1½ Story Fin |
2002 |
2,407 |
1.5 Stories |
|