|
|
|
| Larry Stein Oklahoma County Assessor (405) 713-1200 - Public Access System |
|
|
|
|
|
|
| Real Property Display - Screen Produced 4/2/2026 2:02:52 PM | ||||
|---|---|---|---|---|
| Account: R150771435 | Type: Residential | Location: |
116 CHEVY CHASE DR |
|
| Building Name/Occupant: |
|
MIDWEST CITY |
||
| Owner Name 1: | DHARAMSHI TIFFANY MICHELLE & KARIM BARKATALI |
Parcel PIN#: |
2534-15-077-1435 |
|
| Owner Name 2: | 1/4 section #: |
2534 |
||
| Owner Name 3: | Parent Acct: |
|
||
| Billing Address: | 116 CHEVY CHASE DR | Tax District: |
|
|
| City, State, Zip | MIDWEST CITY, OK 73110 | School System: |
Mid-Del #52 |
|
|
Country: (If noted) |
Land Size: |
0.4250 Acres |
||
|
Land Value: 27,770 |
|
|||
|
Sect 34-T12N-R2W Qtr SE |
RIDGECREST CNTRY EST
Block
003
Lot
015
|
|||
| Full Legal Description: RIDGECREST CNTRY EST 003 015 |
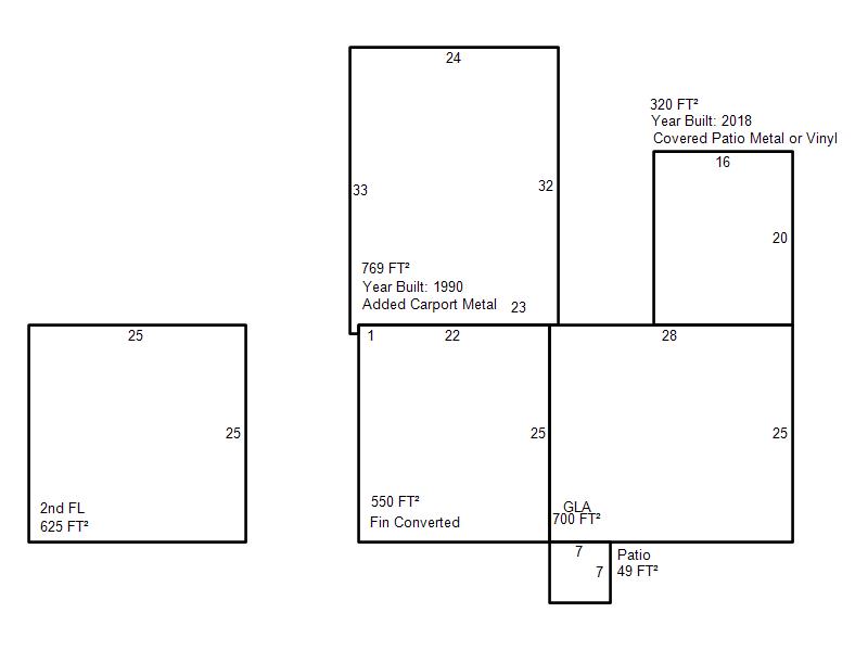
| Photo & Sketch (if available) | Comp Sales (ordered by relevancy) |
|
||||||||||||||||||
|
||||||||||||||||||||
| Value History (*The County Treasurer 405-713-1300 posts & collects actual tax amounts. Contact information HERE) | |||||||||||||
|---|---|---|---|---|---|---|---|---|---|---|---|---|---|
| Year | Market Value | Taxable Mkt Value | Gross Assessed | Exemption | Net Assessed | Millage | Est. Tax | Tax Savings | |||||
|
2026 |
244,000 |
244,000 |
26,840 |
0 |
26,840 |
119.58 |
$3,210 |
$0 |
|||||
|
2025 |
243,500 |
235,935 |
25,952 |
0 |
25,952 |
119.58 |
$3,103 |
$100 |
|||||
|
2024 |
245,000 |
224,700 |
24,717 |
0 |
24,717 |
122.51 |
$3,028 |
$274 |
|||||
|
2023 |
214,000 |
214,000 |
23,540 |
0 |
23,540 |
117.71 |
$2,771 |
$0 |
|||||
|
2022 |
204,000 |
204,000 |
22,440 |
0 |
22,440 |
116.64 |
$2,617 |
$0 |
|||||
| Property Account Status/Adjustments/Exemptions | ||
|---|---|---|
| Account # | Exemption Description | Amount |
|
R150771435 |
5% Capped Account |
0 |
| Property Deed Transaction History (Recorded in the County Clerk's Office) | ||||||||||
|---|---|---|---|---|---|---|---|---|---|---|
| Date | Type | Book | Page | Price | Grantor | Grantee | ||||
|
6/8/2021 |
|
Deeds |
$197,000 |
FOELL HIEN |
DHARAMSHI TIFFANY MICHELLE & KARIM BARKATALI |
|||||
|
11/6/2014 |
|
Hmstd Off & |
$0 |
VU NGUYEN |
FOELL HIEN |
|||||
|
5/2/2011 |
|
Other |
$0 |
SECRETARY OF HOUSING & URBAN DEV |
VU NGUYEN |
|||||
|
3/24/2011 |
|
Hmstd Off & |
$0 |
BURGE PATRICK L BURGE SARAH D |
SECRETARY OF HOUSING & URBAN DEV |
|||||
|
5/22/2007 |
|
Deeds |
$142,500 |
DAVIS EUEL & ALISHA M |
BURGE PATRICK L BURGE SARAH D |
|||||
| Last Mailed Notice of Value (N.O.V.) Information/History | ||||||||
|---|---|---|---|---|---|---|---|---|
| Year | Date | Market Value | Taxable Market Value | Gross Assessed | Exemption | Net Assessed | ||
|
2026 |
02/23/2026 |
244,000 |
244,000 |
26,840 |
0 |
26,840 |
||
|
2025 |
02/14/2025 |
243,500 |
235,935 |
25,952 |
0 |
25,952 |
||
|
2024 |
02/13/2024 |
245,000 |
224,700 |
24,717 |
0 |
24,717 |
||
|
2023 |
02/14/2023 |
214,000 |
214,000 |
23,540 |
0 |
23,540 |
||
|
2022 |
03/15/2022 |
204,000 |
204,000 |
22,440 |
0 |
22,440 |
||
| Property Building Permit History | |||||||||||
|---|---|---|---|---|---|---|---|---|---|---|---|
| Issued | Permit # | Provided by | Bldg # | Description | Est Construction Cost | Status | |||||
| No Building Permit records returned. | |||||||||||
| Click button on building number to access detailed information: | ||||||
|---|---|---|---|---|---|---|
| Bldg # | Vacant/Improved Land | Bldg Description | Year Built | SqFt | # Stories | |
|
1 |
Improved |
2 Story |
1954 |
1,325 |
2 Stories |
|