|
|
|
| Larry Stein Oklahoma County Assessor (405) 713-1200 - Public Access System |
|
|
|
|
|
|
| Real Property Display - Screen Produced 4/2/2026 2:02:10 PM | ||||
|---|---|---|---|---|
| Account: R085195500 | Type: Residential | Location: |
1117 NW 55TH ST |
|
| Building Name/Occupant: |
|
OKLAHOMA CITY |
||
| Owner Name 1: | LK INVESTORS LLC |
Parcel PIN#: |
2630-08-519-5500 |
|
| Owner Name 2: | 1/4 section #: |
2630 |
||
| Owner Name 3: | Parent Acct: |
|
||
| Billing Address: | 4710 N HARVEY PKWY | Tax District: |
|
|
| City, State, Zip | OKLAHOMA CITY, OK 73118 | School System: |
Oklahoma City #89 |
|
|
Country: (If noted) |
Land Size: |
0.1679 Acres |
||
|
Land Value: 37,672 |
|
|||
|
Sect 8-T12N-R3W Qtr SE |
BROOKHAVEN ADDITION
Block
004
Lot
006
|
|||
| Full Legal Description: BROOKHAVEN ADDITION 004 006 |
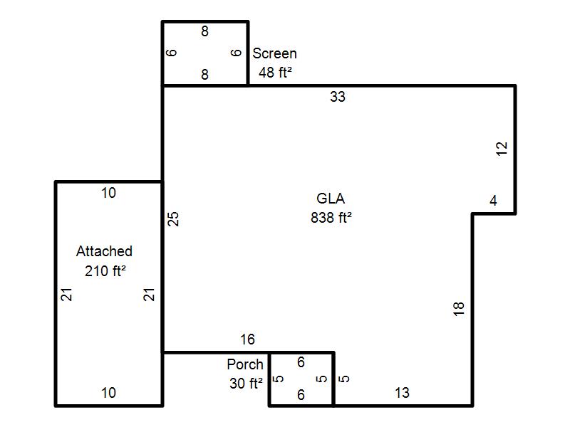
| Photo & Sketch (if available) | Comp Sales (ordered by relevancy) |
|
||||||||||||||||||
|
||||||||||||||||||||
| Value History (*The County Treasurer 405-713-1300 posts & collects actual tax amounts. Contact information HERE) | |||||||||||||
|---|---|---|---|---|---|---|---|---|---|---|---|---|---|
| Year | Market Value | Taxable Mkt Value | Gross Assessed | Exemption | Net Assessed | Millage | Est. Tax | Tax Savings | |||||
|
2026 |
192,000 |
192,000 |
21,120 |
0 |
21,120 |
122.90 |
$2,596 |
$0 |
|||||
|
2025 |
193,000 |
186,900 |
20,559 |
0 |
20,559 |
122.90 |
$2,527 |
$82 |
|||||
|
2024 |
178,000 |
178,000 |
19,580 |
0 |
19,580 |
123.89 |
$2,426 |
$0 |
|||||
|
2023 |
192,000 |
174,825 |
19,230 |
0 |
19,230 |
122.82 |
$2,362 |
$232 |
|||||
|
2022 |
166,500 |
166,500 |
18,315 |
0 |
18,315 |
117.63 |
$2,154 |
$0 |
|||||
| Property Account Status/Adjustments/Exemptions | ||
|---|---|---|
| Account # | Exemption Description | Amount |
|
R085195500 |
5% Capped Account |
0 |
| Property Deed Transaction History (Recorded in the County Clerk's Office) | |||||||
|---|---|---|---|---|---|---|---|
| Date | Type | Book | Page | Price | Grantor | Grantee | |
|
12/13/2022 |
|
Hmstd Off & |
$0 |
COLLINS LOGON |
LK INVESTORS LLC |
||
|
8/23/2021 |
|
Deeds |
$162,500 |
EVCO LLC |
COLLINS LOGON |
||
|
3/2/2009 |
|
Deeds |
$90,000 |
STOW MICHAEL D |
EVCO LLC |
||
|
10/17/2003 |
|
Deeds |
$77,000 |
FOSTER CECIL G & NEVAH M |
STOW MICHAEL D |
||
|
11/11/1911 |
|
Historical |
$0 |
|
FOSTER CECIL G & NEVAH M |
||
| Last Mailed Notice of Value (N.O.V.) Information/History | ||||||||
|---|---|---|---|---|---|---|---|---|
| Year | Date | Market Value | Taxable Market Value | Gross Assessed | Exemption | Net Assessed | ||
|
2026 |
02/23/2026 |
192,000 |
192,000 |
21,120 |
0 |
21,120 |
||
|
2025 |
02/14/2025 |
193,000 |
186,900 |
20,559 |
0 |
20,559 |
||
|
2024 |
02/13/2024 |
178,000 |
178,000 |
19,580 |
0 |
19,580 |
||
|
2023 |
02/14/2023 |
192,000 |
174,825 |
19,230 |
0 |
19,230 |
||
|
2022 |
03/15/2022 |
166,500 |
166,500 |
18,315 |
0 |
18,315 |
||
| Property Building Permit History | |||||||||||
|---|---|---|---|---|---|---|---|---|---|---|---|
| Issued | Permit # | Provided by | Bldg # | Description | Est Construction Cost | Status | |||||
| No Building Permit records returned. | |||||||||||
| Click button on building number to access detailed information: | ||||||
|---|---|---|---|---|---|---|
| Bldg # | Vacant/Improved Land | Bldg Description | Year Built | SqFt | # Stories | |
|
1 |
Improved |
Ranch 1 Story |
1940 |
838 |
1 Stories |
|