|
|
|
| Larry Stein Oklahoma County Assessor (405) 713-1200 - Public Access System |
|
|
|
|
|
|
| Real Property Display - Screen Produced 4/5/2026 1:11:47 AM | ||||
|---|---|---|---|---|
| Account: R049811500 | Type: Residential | Location: |
416 NW 46TH ST |
|
| Building Name/Occupant: |
|
OKLAHOMA CITY |
||
| Owner Name 1: | SHIRLEY BOBBY C |
Parcel PIN#: |
2661-04-981-1500 |
|
| Owner Name 2: | SHIRLEY CARRIE N | 1/4 section #: |
2661 |
|
| Owner Name 3: | Parent Acct: |
|
||
| Billing Address: | 416 NW 46TH ST | Tax District: |
|
|
| City, State, Zip | OKLAHOMA CITY, OK 73118 | School System: |
Oklahoma City #89 |
|
|
Country: (If noted) |
Land Size: |
0.2479 Acres |
||
|
Land Value: 80,460 |
|
|||
|
Sect 16-T12N-R3W Qtr NE |
EDGEMERE TERRACE
Block
004
Lot
000
|
|||
| Full Legal Description: EDGEMERE TERRACE 004 000 W30FT OF LOT 12 & ALL LOT 13 |
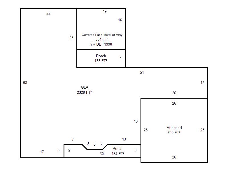
| Photo & Sketch (if available) | Comp Sales (ordered by relevancy) |
|
||||||||||||||||||
|
||||||||||||||||||||
| Value History (*The County Treasurer 405-713-1300 posts & collects actual tax amounts. Contact information HERE) | |||||||||||||
|---|---|---|---|---|---|---|---|---|---|---|---|---|---|
| Year | Market Value | Taxable Mkt Value | Gross Assessed | Exemption | Net Assessed | Millage | Est. Tax | Tax Savings | |||||
|
2026 |
460,500 |
343,143 |
37,745 |
1,000 |
36,745 |
122.90 |
$4,516 |
$1,709 |
|||||
|
2025 |
452,500 |
333,149 |
36,646 |
1,000 |
35,646 |
122.90 |
$4,381 |
$1,736 |
|||||
|
2024 |
420,000 |
323,446 |
35,578 |
1,000 |
34,578 |
123.89 |
$4,284 |
$1,440 |
|||||
|
2023 |
406,000 |
314,026 |
34,542 |
1,000 |
33,542 |
122.82 |
$4,120 |
$1,365 |
|||||
|
2022 |
367,500 |
304,880 |
33,536 |
1,000 |
32,536 |
117.63 |
$3,827 |
$928 |
|||||
| Property Account Status/Adjustments/Exemptions | ||
|---|---|---|
| Account # | Exemption Description | Amount |
|
R049811500 |
3% Cap Homestead |
0 |
|
R049811500 |
Homestead |
1,000 |
| Property Deed Transaction History (Recorded in the County Clerk's Office) | |||||||
|---|---|---|---|---|---|---|---|
| Date | Type | Book | Page | Price | Grantor | Grantee | |
|
5/20/2020 |
|
Deeds |
$285,000 |
KEATON LARRY S & MARGARET V |
SHIRLEY BOBBY C |
||
|
7/28/1993 |
|
Historical |
$75,000 |
HENDERSON JOHN R JR |
KEATON LARRY S & MARGARET V |
||
|
3/22/1993 |
|
Historical |
$0 |
HENDERSON DORA |
HENDERSON JOHN R JR |
||
|
10/9/1987 |
|
Historical |
$0 |
HENDERSON J R & DORA |
HENDERSON DORA |
||
|
11/11/1911 |
|
Historical |
$0 |
|
HENDERSON J R & DORA |
||
| Last Mailed Notice of Value (N.O.V.) Information/History | ||||||||
|---|---|---|---|---|---|---|---|---|
| Year | Date | Market Value | Taxable Market Value | Gross Assessed | Exemption | Net Assessed | ||
|
2026 |
02/23/2026 |
460,500 |
343,143 |
37,745 |
1,000 |
36,745 |
||
|
2025 |
02/14/2025 |
452,500 |
333,149 |
36,646 |
1,000 |
35,646 |
||
|
2024 |
02/13/2024 |
420,000 |
323,446 |
35,578 |
1,000 |
34,578 |
||
|
2023 |
02/14/2023 |
406,000 |
314,026 |
34,542 |
1,000 |
33,542 |
||
|
2022 |
03/15/2022 |
367,500 |
304,880 |
33,536 |
1,000 |
32,536 |
||
| Property Building Permit History | |||||||||||
|---|---|---|---|---|---|---|---|---|---|---|---|
| Issued | Permit # | Provided by | Bldg # | Description | Est Construction Cost | Status | |||||
| No Building Permit records returned. | |||||||||||
| Click button on building number to access detailed information: | ||||||
|---|---|---|---|---|---|---|
| Bldg # | Vacant/Improved Land | Bldg Description | Year Built | SqFt | # Stories | |
|
1 |
Improved |
Ranch 1 Story |
1969 |
2,329 |
1 Stories |
|