|
|
|
| Larry Stein Oklahoma County Assessor (405) 713-1200 - Public Access System |
|
|
|
|
|
|
| Real Property Display - Screen Produced 4/3/2026 2:00:06 AM | ||||
|---|---|---|---|---|
| Account: R049644960 | Type: Commercial | Location: |
4608 N WESTERN AVE |
|
| Building Name/Occupant: |
#WWG1WGA |
OKLAHOMA CITY |
||
| Owner Name 1: | KTOP LLC |
Parcel PIN#: |
2664-04-964-4960 |
|
| Owner Name 2: | 1/4 section #: |
2664 |
||
| Owner Name 3: | Parent Acct: |
|
||
| Billing Address: | PO BOX 54404 | Tax District: |
|
|
| City, State, Zip | OKLAHOMA CITY, OK 73154-1404 | School System: |
Oklahoma City #89 |
|
|
Country: (If noted) |
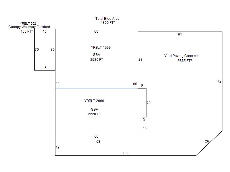
Land Size: |
14,000.0000 Square Feet |
||
|
Land Value: 168,000 |
|
|||
|
Sect 16-T12N-R3W Qtr NW |
DOUGLAS PLACE ADD
Block
020
Lot
000
|
|||
| Full Legal Description: DOUGLAS PLACE ADD 020 000 LOTS 25 THRU 28 |
| No comparable sales report available. | ||||||||||||||||||||||
|
||||||||||||||||||||||
| Value History (*The County Treasurer 405-713-1300 posts & collects actual tax amounts. Contact information HERE) | |||||||||||||
|---|---|---|---|---|---|---|---|---|---|---|---|---|---|
| Year | Market Value | Taxable Mkt Value | Gross Assessed | Exemption | Net Assessed | Millage | Est. Tax | Tax Savings | |||||
|
2026 |
421,978 |
421,978 |
46,417 |
0 |
46,417 |
122.90 |
$5,705 |
$0 |
|||||
|
2025 |
240,000 |
240,000 |
26,400 |
0 |
26,400 |
122.90 |
$3,245 |
$0 |
|||||
|
2024 |
240,000 |
240,000 |
26,400 |
0 |
26,400 |
123.89 |
$3,271 |
$0 |
|||||
|
2023 |
240,000 |
240,000 |
26,400 |
0 |
26,400 |
122.82 |
$3,242 |
$0 |
|||||
|
2022 |
240,000 |
240,000 |
26,400 |
0 |
26,400 |
117.63 |
$3,105 |
$0 |
|||||
| Property Account Status/Adjustments/Exemptions | ||||||
|---|---|---|---|---|---|---|
| Account # | Exemption Description | Amount | ||||
| No adjustment/exemption records returned. | ||||||
| Property Deed Transaction History (Recorded in the County Clerk's Office) | ||||||||||
|---|---|---|---|---|---|---|---|---|---|---|
| Date | Type | Book | Page | Price | Grantor | Grantee | ||||
|
1/5/2026 |
|
Deeds |
$1,160,000 |
ATM INVESTMENTS LLC |
KTOP LLC |
|||||
|
5/30/2025 |
|
Deeds |
$840,000 |
STEMEN THOMAS R |
ATM INVESTMENTS LLC |
|||||
|
3/4/2005 |
|
Deeds |
$0 |
STEMEN ANNIE CATHLEEN |
STEMEN TOM |
|||||
|
4/1/1998 |
|
Hmstd Off & |
$0 |
ROBERTS THOMAS E & BETTY J TRS |
STEMEN THOMAS R |
|||||
|
1/11/1996 |
|
Historical |
$0 |
WINANS LEONARD & LOIS |
STEMEN TOM |
|||||
| Last Mailed Notice of Value (N.O.V.) Information/History | ||||||||
|---|---|---|---|---|---|---|---|---|
| Year | Date | Market Value | Taxable Market Value | Gross Assessed | Exemption | Net Assessed | ||
|
2026 |
03/23/2026 |
421,978 |
421,978 |
46,417 |
0 |
46,417 |
||
|
2021 |
03/22/2021 |
255,735 |
255,735 |
28,130 |
0 |
28,130 |
||
|
2020 |
03/16/2020 |
255,735 |
252,000 |
27,720 |
0 |
27,720 |
||
|
2019 |
04/05/2019 |
240,000 |
240,000 |
26,400 |
0 |
26,400 |
||
|
2018 |
04/18/2018 |
240,000 |
232,999 |
25,630 |
0 |
25,630 |
||
| Property Building Permit History | ||||||
|---|---|---|---|---|---|---|
| Issued | Permit # | Provided by | Bldg # | Description | Est Construction Cost | Status |
|
8/26/2009 |
10386231 |
OKLAHOMA CITY |
1 |
Add On |
100,000 |
Inactive |
|
7/24/2009 |
10384472 |
OKLAHOMA CITY |
1 |
Fire Remodel |
100,000 |
Inactive |
|
6/18/2009 |
10381847 |
OKLAHOMA CITY |
1 |
Burn - Trip |
175,000 |
Inactive |
|
3/12/1999 |
10191261 |
OKLAHOMA CITY |
1 |
Commercial |
35,000 |
Inactive |
| Click button on building number to access detailed information: | ||||||
|---|---|---|---|---|---|---|
| Bldg # | Vacant/Improved Land | Bldg Description | Year Built | SqFt | # Stories | |
|
1 |
Improved |
Service Garage |
1999 |
4,800 |
1 Stories |
|