|
|
|
| Larry Stein Oklahoma County Assessor (405) 713-1200 - Public Access System |
|
|
|
|
|
|
| Real Property Display - Screen Produced 4/1/2026 1:13:26 PM | ||||
|---|---|---|---|---|
| Account: R053104350 | Type: Residential | Location: |
2717 CASHION PL |
|
| Building Name/Occupant: |
|
OKLAHOMA CITY |
||
| Owner Name 1: | AMNL ASSET COMPANY 3 LLC |
Parcel PIN#: |
2676-05-310-4350 |
|
| Owner Name 2: | 1/4 section #: |
2676 |
||
| Owner Name 3: | Parent Acct: |
|
||
| Billing Address: | 5001 PLAZA ON THE LAKE, Unit 200 | Tax District: |
|
|
| City, State, Zip | AUSTIN , TX 78746 | School System: |
Oklahoma City #89 |
|
|
Country: (If noted) |
Land Size: |
0.1880 Acres |
||
|
Land Value: 45,045 |
|
|||
|
Sect 19-T12N-R3W Qtr NW |
STEVE PENNINGTON 2ND
Block
008
Lot
016
|
|||
| Full Legal Description: STEVE PENNINGTON 2ND 008 016 |
| Photo & Sketch (if available) | Comp Sales (ordered by relevancy) |
|
||||||||||||||||||
|
||||||||||||||||||||
| Value History (*The County Treasurer 405-713-1300 posts & collects actual tax amounts. Contact information HERE) | |||||||||||||
|---|---|---|---|---|---|---|---|---|---|---|---|---|---|
| Year | Market Value | Taxable Mkt Value | Gross Assessed | Exemption | Net Assessed | Millage | Est. Tax | Tax Savings | |||||
|
2026 |
264,000 |
264,000 |
29,040 |
0 |
29,040 |
122.90 |
$3,569 |
$0 |
|||||
|
2025 |
260,000 |
260,000 |
28,600 |
0 |
28,600 |
122.90 |
$3,515 |
$0 |
|||||
|
2024 |
254,500 |
254,500 |
27,995 |
0 |
27,995 |
123.89 |
$3,468 |
$0 |
|||||
|
2023 |
232,500 |
232,500 |
25,575 |
0 |
25,575 |
122.82 |
$3,141 |
$0 |
|||||
|
2022 |
227,500 |
227,500 |
25,025 |
0 |
25,025 |
117.63 |
$2,944 |
$0 |
|||||
| Property Account Status/Adjustments/Exemptions | ||
|---|---|---|
| Account # | Exemption Description | Amount |
|
R053104350 |
5% Capped Account |
0 |
| Property Deed Transaction History (Recorded in the County Clerk's Office) | ||||||||||
|---|---|---|---|---|---|---|---|---|---|---|
| Date | Type | Book | Page | Price | Grantor | Grantee | ||||
|
5/25/2023 |
|
Mult Parcel |
$622,500 |
VM MASTER ISSUER LLC |
AMNL ASSET COMPANY 3 LLC |
|||||
|
3/30/2022 |
|
Mult Parcel |
$16,108,500 |
ARVM 5 LLC |
VM MASTER ISSUER LLC |
|||||
|
8/30/2021 |
|
Deeds |
$230,000 |
BROWN RODNEY C |
ARVM 5 LLC |
|||||
|
10/13/1997 |
|
Historical |
$98,000 |
HELTON RODNEY A & SHARLA A |
BROWN RODNEY C |
|||||
|
8/24/1992 |
|
Historical |
$62,000 |
KAHN ROBERT W & ELINOR F |
HELTON RODNEY A & SHARLA A |
|||||
| Last Mailed Notice of Value (N.O.V.) Information/History | ||||||||
|---|---|---|---|---|---|---|---|---|
| Year | Date | Market Value | Taxable Market Value | Gross Assessed | Exemption | Net Assessed | ||
|
2026 |
02/23/2026 |
264,000 |
264,000 |
29,040 |
0 |
29,040 |
||
|
2025 |
02/14/2025 |
260,000 |
260,000 |
28,600 |
0 |
28,600 |
||
|
2024 |
02/13/2024 |
254,500 |
254,500 |
27,995 |
0 |
27,995 |
||
|
2023 |
02/14/2023 |
232,500 |
232,500 |
25,575 |
0 |
25,575 |
||
|
2022 |
03/15/2022 |
227,500 |
227,500 |
25,025 |
0 |
25,025 |
||
| Property Building Permit History | |||||||||||
|---|---|---|---|---|---|---|---|---|---|---|---|
| Issued | Permit # | Provided by | Bldg # | Description | Est Construction Cost | Status | |||||
| No Building Permit records returned. | |||||||||||
| Click button on building number to access detailed information: | ||||||
|---|---|---|---|---|---|---|
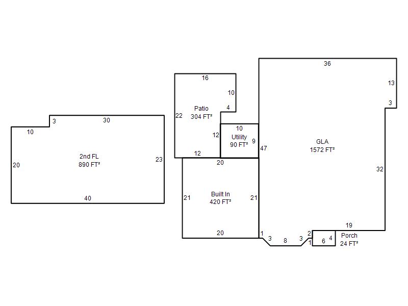
| Bldg # | Vacant/Improved Land | Bldg Description | Year Built | SqFt | # Stories | |
|
1 |
Improved |
1½ Story Fin |
1950 |
2,462 |
1.5 Stories |
|