|
|
|
| Larry Stein Oklahoma County Assessor (405) 713-1200 - Public Access System |
|
|
|
|
|
|
| Real Property Display - Screen Produced 2/26/2026 8:28:36 PM | ||||
|---|---|---|---|---|
| Account: R145453100 | Type: Commercial | Location: |
5717 NW 23RD ST |
|
| Building Name/Occupant: |
VICTORY CAR WASH/ VIP SOFT BRUSH |
OKLAHOMA CITY |
||
| Owner Name 1: | AUTO BARGAIN INC |
Parcel PIN#: |
2887-14-545-3100 |
|
| Owner Name 2: | 1/4 section #: |
2887 |
||
| Owner Name 3: | Parent Acct: |
2887-14-545-3400 |
||
| Billing Address: | 2419 N MACARTHUR BLVD | Tax District: |
|
|
| City, State, Zip | OKLAHOMA CITY, OK 73127-1605 | School System: |
Putnam City #1 |
|
|
Country: (If noted) |
Land Size: |
48,785.0000 Square Feet |
||
|
Land Value: 351,252 |
|
|||
|
Sect 22-T12N-R4W Qtr SW |
MOULTONS SUB ADD
Block
002
Lot
000
|
|||
| Full Legal Description: MOULTONS SUB ADD 002 000 E14.38FT OF LOT 16 & ALL OF LOTS 17 THRU 19 |
| No comparable sales report available. | ||||||||||||||||||||||
|
||||||||||||||||||||||
| Value History (*The County Treasurer 405-713-1300 posts & collects actual tax amounts. Contact information HERE) | |||||||||||||
|---|---|---|---|---|---|---|---|---|---|---|---|---|---|
| Year | Market Value | Taxable Mkt Value | Gross Assessed | Exemption | Net Assessed | Millage | Est. Tax | Tax Savings | |||||
|
2025 |
725,000 |
725,000 |
79,750 |
0 |
79,750 |
123.17 |
$9,823 |
$0 |
|||||
|
2024 |
1,086,950 |
1,086,950 |
119,564 |
0 |
119,564 |
122.30 |
$14,623 |
$0 |
|||||
|
2023 |
1,086,950 |
1,086,950 |
119,564 |
0 |
119,564 |
121.91 |
$14,576 |
$0 |
|||||
|
2022 |
1,141,309 |
1,124,119 |
123,652 |
0 |
123,652 |
123.41 |
$15,260 |
$233 |
|||||
|
2021 |
1,070,590 |
1,070,590 |
117,764 |
0 |
117,764 |
122.23 |
$14,394 |
$0 |
|||||
| Property Account Status/Adjustments/Exemptions | ||||||
|---|---|---|---|---|---|---|
| Account # | Exemption Description | Amount | ||||
| No adjustment/exemption records returned. | ||||||
| Property Deed Transaction History (Recorded in the County Clerk's Office) | ||||||||||
|---|---|---|---|---|---|---|---|---|---|---|
| Date | Type | Book | Page | Price | Grantor | Grantee | ||||
|
10/10/2025 |
|
Deeds |
$505,000 |
BMW PROPERTIES 2 LLC |
AUTO BARGAIN INC |
|||||
|
5/21/2024 |
|
Deeds |
$550,000 |
BRODERSEN LLC |
BMW PROPERTIES 2 LLC |
|||||
|
6/9/2020 |
|
Deeds |
$700,000 |
CITY EXPRESS MART INC |
BRODERSEN LLC |
|||||
|
3/31/2014 |
|
Deeds |
$440,000 |
FYGON INTERNATIONAL LLC |
CITY EXPRESS MART INC |
|||||
|
3/20/2006 |
|
Deeds |
$857,000 |
VIP AUTO CENTERS LC & KK & M ASSOCIATES LLC____ |
FYGON INTERNATIONAL LLC |
|||||
| Last Mailed Notice of Value (N.O.V.) Information/History | ||||||
|---|---|---|---|---|---|---|
| Year | Date | Market Value | Taxable Market Value | Gross Assessed | Exemption | Net Assessed |
|
2022 |
03/09/2022 |
1,141,309 |
1,124,119 |
123,652 |
0 |
123,652 |
|
2020 |
03/16/2020 |
1,134,882 |
1,134,882 |
124,837 |
0 |
124,837 |
|
2016 |
03/14/2016 |
1,104,729 |
1,104,729 |
121,519 |
0 |
121,519 |
|
2015 |
03/26/2015 |
421,380 |
421,380 |
46,351 |
0 |
46,351 |
|
2012 |
03/19/2012 |
527,253 |
321,213 |
35,332 |
0 |
35,332 |
| Property Building Permit History | ||||||
|---|---|---|---|---|---|---|
| Issued | Permit # | Provided by | Bldg # | Description | Est Construction Cost | Status |
|
4/28/2014 |
10462002 |
OKLAHOMA CITY |
1 |
Demolish |
0 |
Inactive |
| Click button on building number to access detailed information: | ||||||
|---|---|---|---|---|---|---|
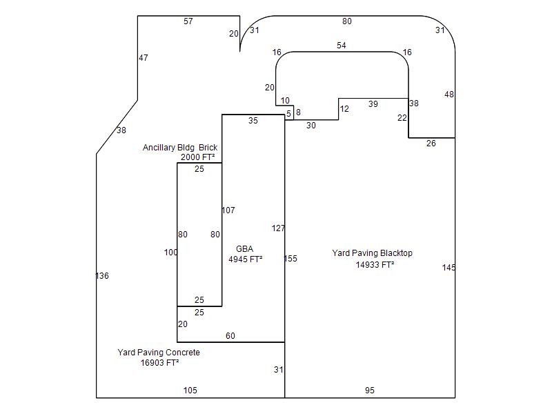
| Bldg # | Vacant/Improved Land | Bldg Description | Year Built | SqFt | # Stories | |
|
1 |
Improved |
Car Wash - Automatic |
2014 |
4,945 |
1 Stories |
|