|
|
|
| Larry Stein Oklahoma County Assessor (405) 713-1200 - Public Access System |
|
|
|
|
|
|
| Real Property Display - Screen Produced 4/2/2026 7:31:38 AM | ||||
|---|---|---|---|---|
| Account: R116212625 | Type: Residential | Location: |
3904 NW 19TH ST |
|
| Building Name/Occupant: |
|
OKLAHOMA CITY |
||
| Owner Name 1: | RSM PROPERTIES LLC |
Parcel PIN#: |
2901-11-621-2625 |
|
| Owner Name 2: | 1/4 section #: |
2901 |
||
| Owner Name 3: | Parent Acct: |
|
||
| Billing Address: | 7201 N CLASSEN BLVD, Unit 101 | Tax District: |
|
|
| City, State, Zip | OKLAHOMA CITY, OK 73116 | School System: |
Oklahoma City #89 |
|
|
Country: (If noted) |
Land Size: |
0.1433 Acres |
||
|
Land Value: 16,224 |
|
|||
|
Sect 26-T12N-R4W Qtr NE |
STEVE PENNINGTON 7TH
Block
002
Lot
002
|
|||
| Full Legal Description: STEVE PENNINGTON 7TH 002 002 |
| Photo & Sketch (if available) | Comp Sales (ordered by relevancy) |
|
||||||||||||||||||
|
||||||||||||||||||||
| Value History (*The County Treasurer 405-713-1300 posts & collects actual tax amounts. Contact information HERE) | |||||||||||||
|---|---|---|---|---|---|---|---|---|---|---|---|---|---|
| Year | Market Value | Taxable Mkt Value | Gross Assessed | Exemption | Net Assessed | Millage | Est. Tax | Tax Savings | |||||
|
2026 |
158,500 |
140,072 |
15,407 |
0 |
15,407 |
122.90 |
$1,894 |
$249 |
|||||
|
2025 |
152,500 |
133,402 |
14,673 |
0 |
14,673 |
122.90 |
$1,803 |
$258 |
|||||
|
2024 |
155,500 |
127,050 |
13,975 |
0 |
13,975 |
123.89 |
$1,731 |
$388 |
|||||
|
2023 |
121,000 |
121,000 |
13,310 |
0 |
13,310 |
122.82 |
$1,635 |
$0 |
|||||
|
2022 |
130,500 |
113,587 |
12,493 |
0 |
12,493 |
117.63 |
$1,470 |
$219 |
|||||
| Property Account Status/Adjustments/Exemptions | ||
|---|---|---|
| Account # | Exemption Description | Amount |
|
R116212625 |
5% Capped Account |
0 |
| Property Deed Transaction History (Recorded in the County Clerk's Office) | ||||||||||
|---|---|---|---|---|---|---|---|---|---|---|
| Date | Type | Book | Page | Price | Grantor | Grantee | ||||
|
6/24/2022 |
|
Deeds |
$119,000 |
MOONEY LUCINDA S |
RSM PROPERTIES LLC |
|||||
|
7/28/2014 |
|
Deeds |
$89,000 |
BECKTOLD DIXIE |
MOONEY LUCINDA S |
|||||
|
1/31/2007 |
|
Deeds |
$80,000 |
SCHULTZ MICHELLE L |
BECKTOLD DIXIE |
|||||
|
10/13/2000 |
|
Deeds |
$28,000 |
LAWSON DONALD E & JUDITH L |
SCHULTZ MICHELLE L |
|||||
|
8/18/1998 |
|
Historical |
$0 |
LAWSON BUILDING CORPORATION |
LAWSON DONALD E & JUDITH L |
|||||
| Last Mailed Notice of Value (N.O.V.) Information/History | ||||||||
|---|---|---|---|---|---|---|---|---|
| Year | Date | Market Value | Taxable Market Value | Gross Assessed | Exemption | Net Assessed | ||
|
2026 |
02/23/2026 |
158,500 |
140,072 |
15,407 |
0 |
15,407 |
||
|
2025 |
02/14/2025 |
152,500 |
133,402 |
14,673 |
0 |
14,673 |
||
|
2024 |
02/13/2024 |
155,500 |
127,050 |
13,975 |
0 |
13,975 |
||
|
2023 |
02/14/2023 |
121,000 |
121,000 |
13,310 |
0 |
13,310 |
||
|
2022 |
03/15/2022 |
130,500 |
113,587 |
12,493 |
0 |
12,493 |
||
| Property Building Permit History | |||||||||||
|---|---|---|---|---|---|---|---|---|---|---|---|
| Issued | Permit # | Provided by | Bldg # | Description | Est Construction Cost | Status | |||||
| No Building Permit records returned. | |||||||||||
| Click button on building number to access detailed information: | ||||||
|---|---|---|---|---|---|---|
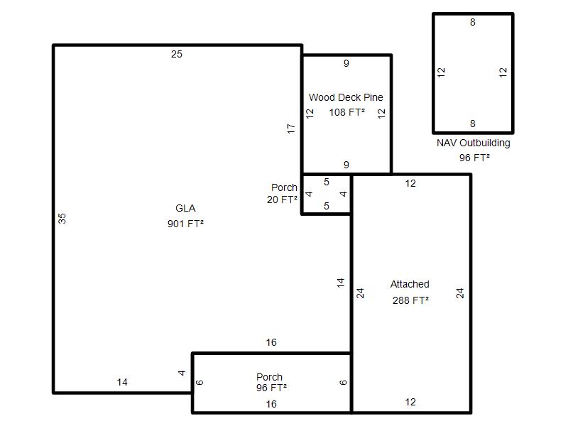
| Bldg # | Vacant/Improved Land | Bldg Description | Year Built | SqFt | # Stories | |
|
1 |
Improved |
Ranch 1 Story |
1950 |
901 |
1 Stories |
|