|
|
|
| Larry Stein Oklahoma County Assessor (405) 713-1200 - Public Access System |
|
|
|
|
|
|
| Real Property Display - Screen Produced 4/5/2026 3:39:44 AM | ||||
|---|---|---|---|---|
| Account: R065911750 | Type: Residential | Location: |
3809 NW LIBERTY ST |
|
| Building Name/Occupant: |
|
OKLAHOMA CITY |
||
| Owner Name 1: | SARIYSKI JULIA |
Parcel PIN#: |
2902-06-591-1750 |
|
| Owner Name 2: | 1/4 section #: |
2902 |
||
| Owner Name 3: | Parent Acct: |
|
||
| Billing Address: | 3809 NW LIBERTY ST | Tax District: |
|
|
| City, State, Zip | OKLAHOMA CITY, OK 73107 | School System: |
Oklahoma City #89 |
|
|
Country: (If noted) |
Land Size: |
0.1550 Acres |
||
|
Land Value: 11,138 |
|
|||
|
Sect 26-T12N-R4W Qtr SE |
MEADOWBROOK ADDITION
Block
002
Lot
000
|
|||
| Full Legal Description: MEADOWBROOK ADDITION 002 000 LOTS 44 & 45 |
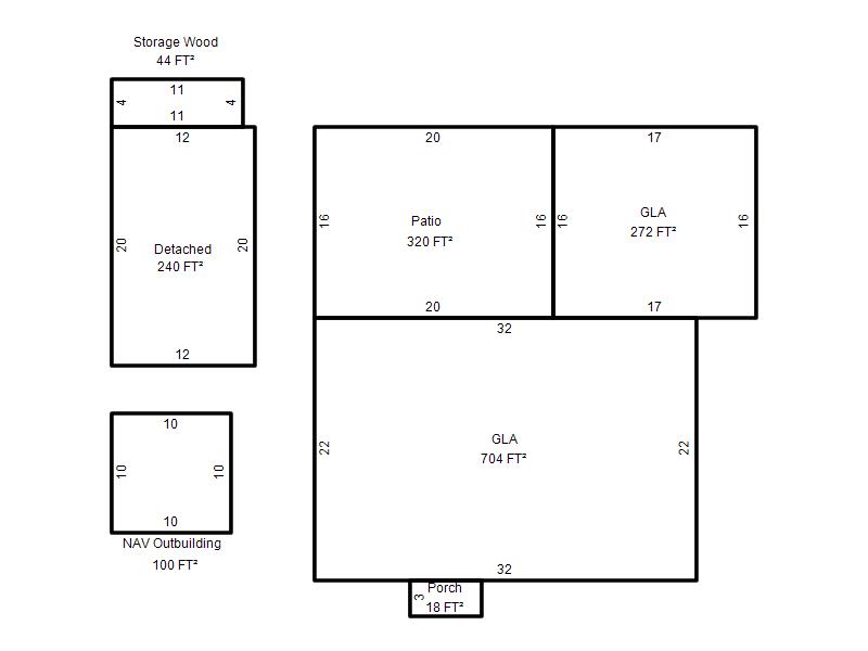
| Photo & Sketch (if available) | Comp Sales (ordered by relevancy) |
|
||||||||||||||||||
|
||||||||||||||||||||
| Value History (*The County Treasurer 405-713-1300 posts & collects actual tax amounts. Contact information HERE) | |||||||||||||
|---|---|---|---|---|---|---|---|---|---|---|---|---|---|
| Year | Market Value | Taxable Mkt Value | Gross Assessed | Exemption | Net Assessed | Millage | Est. Tax | Tax Savings | |||||
|
2026 |
131,000 |
109,120 |
12,002 |
0 |
12,002 |
122.90 |
$1,475 |
$296 |
|||||
|
2025 |
132,500 |
103,924 |
11,431 |
0 |
11,431 |
122.90 |
$1,405 |
$386 |
|||||
|
2024 |
127,500 |
98,976 |
10,886 |
0 |
10,886 |
123.89 |
$1,349 |
$389 |
|||||
|
2023 |
117,000 |
94,263 |
10,368 |
0 |
10,368 |
122.82 |
$1,274 |
$307 |
|||||
|
2022 |
99,500 |
89,775 |
9,875 |
0 |
9,875 |
117.63 |
$1,162 |
$126 |
|||||
| Property Account Status/Adjustments/Exemptions | ||
|---|---|---|
| Account # | Exemption Description | Amount |
|
R065911750 |
5% Capped Account |
0 |
| Property Deed Transaction History (Recorded in the County Clerk's Office) | ||||||||||
|---|---|---|---|---|---|---|---|---|---|---|
| Date | Type | Book | Page | Price | Grantor | Grantee | ||||
|
7/15/2020 |
|
Deeds |
$81,000 |
WILLIAMS EMMA E |
SARIYSKI JULIA |
|||||
|
3/26/2015 |
|
Deeds |
$68,000 |
ANDERSON JOSHUA D |
WILLIAMS EMMA E |
|||||
|
7/30/2007 |
|
Deeds |
$48,500 |
BROWN CLARK A & PEGGY J |
ANDERSON JOSHUA D |
|||||
|
3/21/2000 |
|
Deeds |
$0 |
BROWN CLARK A & PEGI JO |
BROWN CLARK A & PEGGY J |
|||||
|
2/24/1989 |
|
Historical |
$46,000 |
HOUGHTON YVONNE L |
BROWN CLARK A & PEGI JO |
|||||
| Last Mailed Notice of Value (N.O.V.) Information/History | ||||||||
|---|---|---|---|---|---|---|---|---|
| Year | Date | Market Value | Taxable Market Value | Gross Assessed | Exemption | Net Assessed | ||
|
2026 |
02/23/2026 |
131,000 |
109,120 |
12,002 |
0 |
12,002 |
||
|
2025 |
02/14/2025 |
132,500 |
103,924 |
11,431 |
0 |
11,431 |
||
|
2024 |
02/13/2024 |
127,500 |
98,976 |
10,886 |
0 |
10,886 |
||
|
2023 |
02/14/2023 |
117,000 |
94,263 |
10,368 |
0 |
10,368 |
||
|
2022 |
03/15/2022 |
99,500 |
89,775 |
9,875 |
0 |
9,875 |
||
| Property Building Permit History | |||||||||||
|---|---|---|---|---|---|---|---|---|---|---|---|
| Issued | Permit # | Provided by | Bldg # | Description | Est Construction Cost | Status | |||||
| No Building Permit records returned. | |||||||||||
| Click button on building number to access detailed information: | ||||||
|---|---|---|---|---|---|---|
| Bldg # | Vacant/Improved Land | Bldg Description | Year Built | SqFt | # Stories | |
|
1 |
Improved |
Ranch 1 Story |
1938 |
976 |
1 Stories |
|