|
|
|
| Larry Stein Oklahoma County Assessor (405) 713-1200 - Public Access System |
|
|
|
|
|
|
| Real Property Display - Screen Produced 4/4/2026 2:55:37 PM | ||||
|---|---|---|---|---|
| Account: R149121150 | Type: Residential | Location: |
609 WESTWOOD DR |
|
| Building Name/Occupant: |
|
OKLAHOMA CITY |
||
| Owner Name 1: | THOMPSON STEPHANIE |
Parcel PIN#: |
2921-14-912-1150 |
|
| Owner Name 2: | 1/4 section #: |
2921 |
||
| Owner Name 3: | Parent Acct: |
|
||
| Billing Address: | 609 WESTWOOD DR | Tax District: |
|
|
| City, State, Zip | OKLAHOMA CITY, OK 73127 | School System: |
Western Heights #41 |
|
|
Country: (If noted) |
Land Size: |
0.1423 Acres |
||
|
Land Value: 29,450 |
|
|||
|
Sect 31-T12N-R4W Qtr NE |
WESTWOOD VILL ESTS REPLT BLK 7
Block
007
Lot
016
|
|||
| Full Legal Description: WESTWOOD VILL ESTS REPLT BLK 7 007 016 |
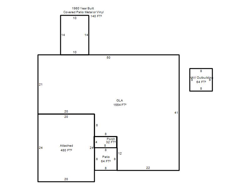
| Photo & Sketch (if available) | Comp Sales (ordered by relevancy) |
|
||||||||||||||||||
|
||||||||||||||||||||
| Value History (*The County Treasurer 405-713-1300 posts & collects actual tax amounts. Contact information HERE) | |||||||||||||
|---|---|---|---|---|---|---|---|---|---|---|---|---|---|
| Year | Market Value | Taxable Mkt Value | Gross Assessed | Exemption | Net Assessed | Millage | Est. Tax | Tax Savings | |||||
|
2026 |
184,500 |
181,237 |
19,935 |
1,000 |
18,935 |
118.35 |
$2,241 |
$161 |
|||||
|
2025 |
184,500 |
175,959 |
19,354 |
0 |
19,354 |
118.35 |
$2,291 |
$111 |
|||||
|
2024 |
182,500 |
167,580 |
18,433 |
0 |
18,433 |
118.83 |
$2,190 |
$195 |
|||||
|
2023 |
172,500 |
159,600 |
17,556 |
0 |
17,556 |
116.69 |
$2,049 |
$166 |
|||||
|
2022 |
152,000 |
152,000 |
16,720 |
0 |
16,720 |
118.05 |
$1,974 |
$0 |
|||||
| Property Account Status/Adjustments/Exemptions | ||
|---|---|---|
| Account # | Exemption Description | Amount |
|
R149121150 |
Homestead |
1,000 |
|
R149121150 |
3% Cap Homestead |
0 |
| Property Deed Transaction History (Recorded in the County Clerk's Office) | ||||||||||
|---|---|---|---|---|---|---|---|---|---|---|
| Date | Type | Book | Page | Price | Grantor | Grantee | ||||
|
12/10/2021 |
|
Deeds |
$160,500 |
SHUMAN SETH & SANDRA L |
THOMPSON STEPHANIE |
|||||
|
11/1/2013 |
|
Deeds |
$0 |
SHAVER SANDRA |
SHUMAN SETH & SANDRA L |
|||||
|
12/16/2005 |
|
Deeds |
$0 |
SHAVER SANDRA SHAVER KENNETH A |
SHAVER SANDRA |
|||||
|
1/27/2004 |
|
Deeds |
$0 |
SHAVER SANDRA L |
SHAVER SANDRA SHAVER KENNETH A |
|||||
|
1/17/2004 |
|
Deeds |
$0 |
SHAVER MICHAEL R & SANDRA L |
SHAVER SANDRA L |
|||||
| Last Mailed Notice of Value (N.O.V.) Information/History | ||||||||
|---|---|---|---|---|---|---|---|---|
| Year | Date | Market Value | Taxable Market Value | Gross Assessed | Exemption | Net Assessed | ||
|
2026 |
02/23/2026 |
184,500 |
184,500 |
20,295 |
0 |
20,295 |
||
|
2025 |
02/14/2025 |
184,500 |
175,959 |
19,354 |
0 |
19,354 |
||
|
2024 |
02/13/2024 |
182,500 |
167,580 |
18,433 |
0 |
18,433 |
||
|
2023 |
02/14/2023 |
172,500 |
159,600 |
17,556 |
0 |
17,556 |
||
|
2022 |
03/15/2022 |
152,000 |
152,000 |
16,720 |
0 |
16,720 |
||
| Property Building Permit History | |||||||||||
|---|---|---|---|---|---|---|---|---|---|---|---|
| Issued | Permit # | Provided by | Bldg # | Description | Est Construction Cost | Status | |||||
| No Building Permit records returned. | |||||||||||
| Click button on building number to access detailed information: | ||||||
|---|---|---|---|---|---|---|
| Bldg # | Vacant/Improved Land | Bldg Description | Year Built | SqFt | # Stories | |
|
1 |
Improved |
Ranch 1 Story |
1977 |
1,554 |
1 Stories |
|