|
|
|
| Larry Stein Oklahoma County Assessor (405) 713-1200 - Public Access System |
|
|
|
|
|
|
| Real Property Display - Screen Produced 4/2/2026 9:23:21 AM | ||||
|---|---|---|---|---|
| Account: R147781150 | Type: Residential | Location: |
716 N PENIEL AVE |
|
| Building Name/Occupant: |
|
OKLAHOMA CITY |
||
| Owner Name 1: | GUTIERREZ DAVID SR |
Parcel PIN#: |
2932-14-778-1150 |
|
| Owner Name 2: | 1/4 section #: |
2932 |
||
| Owner Name 3: | Parent Acct: |
|
||
| Billing Address: | 716 N PENIEL ST | Tax District: |
|
|
| City, State, Zip | OKLAHOMA CITY, OK 73127 | School System: |
Western Heights #41 |
|
|
Country: (If noted) |
Land Size: |
0.2132 Acres |
||
|
Land Value: 28,328 |
|
|||
|
Sect 33-T12N-R4W Qtr NW |
BRIARWOOD ESTATES RESUB
Block
001
Lot
016
|
|||
| Full Legal Description: BRIARWOOD ESTATES RESUB 001 016 |
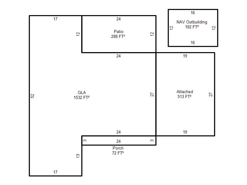
| Photo & Sketch (if available) | Comp Sales (ordered by relevancy) |
|
||||||||||||||||||
|
||||||||||||||||||||
| Value History (*The County Treasurer 405-713-1300 posts & collects actual tax amounts. Contact information HERE) | |||||||||||||
|---|---|---|---|---|---|---|---|---|---|---|---|---|---|
| Year | Market Value | Taxable Mkt Value | Gross Assessed | Exemption | Net Assessed | Millage | Est. Tax | Tax Savings | |||||
|
2026 |
184,000 |
174,849 |
19,232 |
0 |
19,232 |
118.35 |
$2,276 |
$119 |
|||||
|
2025 |
186,500 |
166,523 |
18,317 |
0 |
18,317 |
118.35 |
$2,168 |
$260 |
|||||
|
2024 |
188,000 |
158,594 |
17,444 |
0 |
17,444 |
118.83 |
$2,073 |
$384 |
|||||
|
2023 |
181,000 |
151,042 |
16,614 |
0 |
16,614 |
116.69 |
$1,939 |
$385 |
|||||
|
2022 |
155,500 |
143,850 |
15,823 |
0 |
15,823 |
118.05 |
$1,868 |
$151 |
|||||
| Property Account Status/Adjustments/Exemptions | ||
|---|---|---|
| Account # | Exemption Description | Amount |
|
R147781150 |
5% Capped Account |
0 |
| Property Deed Transaction History (Recorded in the County Clerk's Office) | ||||||||||
|---|---|---|---|---|---|---|---|---|---|---|
| Date | Type | Book | Page | Price | Grantor | Grantee | ||||
|
6/11/2020 |
|
Deeds |
$137,500 |
BALDWIN CORY T |
GUTIERREZ DAVID SR |
|||||
|
7/30/2010 |
|
Deeds |
$106,000 |
BISHOP SARA |
BALDWIN CORY T |
|||||
|
7/18/2008 |
|
Deeds |
$74,000 |
MULL PROPERTIES LLC |
BISHOP SARA |
|||||
|
5/14/2008 |
|
Deeds |
$61,000 |
HUDNALL CHARLES A & KATHERINE |
MULL PROPERTIES LLC |
|||||
|
4/19/1993 |
|
Historical |
$49,500 |
CRAIG GAYLE MCCAIN |
HUDNALL CHARLES A & KATHERINE |
|||||
| Last Mailed Notice of Value (N.O.V.) Information/History | ||||||||
|---|---|---|---|---|---|---|---|---|
| Year | Date | Market Value | Taxable Market Value | Gross Assessed | Exemption | Net Assessed | ||
|
2026 |
02/23/2026 |
184,000 |
174,849 |
19,232 |
0 |
19,232 |
||
|
2025 |
02/14/2025 |
186,500 |
166,523 |
18,317 |
0 |
18,317 |
||
|
2024 |
02/13/2024 |
188,000 |
158,594 |
17,444 |
0 |
17,444 |
||
|
2023 |
02/14/2023 |
181,000 |
151,042 |
16,614 |
0 |
16,614 |
||
|
2022 |
03/15/2022 |
155,500 |
143,850 |
15,823 |
0 |
15,823 |
||
| Property Building Permit History | ||||||
|---|---|---|---|---|---|---|
| Issued | Permit # | Provided by | Bldg # | Description | Est Construction Cost | Status |
|
5/29/2008 |
10353367 |
OKLAHOMA CITY |
1 |
Remodeled |
0 |
Inactive |
| Click button on building number to access detailed information: | ||||||
|---|---|---|---|---|---|---|
| Bldg # | Vacant/Improved Land | Bldg Description | Year Built | SqFt | # Stories | |
|
1 |
Improved |
Ranch 1 Story |
1968 |
1,532 |
1 Stories |
|