|
|
|
| Larry Stein Oklahoma County Assessor (405) 713-1200 - Public Access System |
|
|
|
|
|
|
| Real Property Display - Screen Produced 4/1/2026 9:44:12 AM | ||||
|---|---|---|---|---|
| Account: R201301330 | Type: Residential | Location: |
20922 FOREST HILLS CT |
|
| Building Name/Occupant: |
|
UNINCORPORATED |
||
| Owner Name 1: | YACKLE MATTHEW G |
Parcel PIN#: |
3102-20-130-1330 |
|
| Owner Name 2: | 1/4 section #: |
3102 |
||
| Owner Name 3: | Parent Acct: |
3102-25-826-1050 |
||
| Billing Address: | 20922 FOREST HILLS CT | Tax District: |
|
|
| City, State, Zip | HARRAH, OK 73045 | School System: |
Harrah #7 |
|
|
Country: (If noted) |
Land Size: |
1.6600 Acres |
||
|
Land Value: 43,160 |
|
|||
|
Sect 26-T13N-R1E Qtr SE |
FOREST HILLS SEC 3
Block
005
Lot
011
|
|||
| Full Legal Description: FOREST HILLS SEC 3 005 011 |
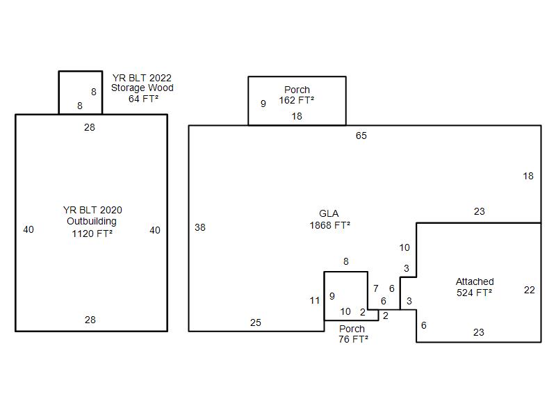
| Photo & Sketch (if available) | Comp Sales (ordered by relevancy) |
|
||||||||||||||||||
|
||||||||||||||||||||
| Value History (*The County Treasurer 405-713-1300 posts & collects actual tax amounts. Contact information HERE) | |||||||||||||
|---|---|---|---|---|---|---|---|---|---|---|---|---|---|
| Year | Market Value | Taxable Mkt Value | Gross Assessed | Exemption | Net Assessed | Millage | Est. Tax | Tax Savings | |||||
|
2026 |
340,500 |
330,617 |
36,367 |
0 |
36,367 |
107.54 |
$3,911 |
$117 |
|||||
|
2025 |
343,500 |
314,874 |
34,635 |
0 |
34,635 |
107.54 |
$3,725 |
$339 |
|||||
|
2024 |
326,000 |
299,880 |
32,986 |
0 |
32,986 |
110.62 |
$3,649 |
$318 |
|||||
|
2023 |
296,000 |
285,600 |
31,416 |
0 |
31,416 |
97.88 |
$3,075 |
$112 |
|||||
|
2022 |
272,000 |
272,000 |
29,920 |
0 |
29,920 |
99.50 |
$2,977 |
$0 |
|||||
| Property Account Status/Adjustments/Exemptions | ||
|---|---|---|
| Account # | Exemption Description | Amount |
|
R201301330 |
5% Capped Account |
0 |
| Property Deed Transaction History (Recorded in the County Clerk's Office) | |||||||
|---|---|---|---|---|---|---|---|
| Date | Type | Book | Page | Price | Grantor | Grantee | |
|
11/3/2021 |
|
Hmstd Off & |
$0 |
MESSER CARL L JR & JUANITA I |
MESSER JUANITA I |
||
|
11/3/2021 |
|
Deeds |
$285,000 |
MESSER JUANITA I |
YACKLE MATTHEW G |
||
|
3/6/2020 |
|
Deeds |
$219,000 |
BLUE RIBBON CONSTRUCTION LLC |
MESSER CARL L JR & JUANITA I |
||
|
10/24/2018 |
|
Hmstd Off & |
$0 |
KAPALUA LLC |
BLUE RIBBON CONSTRUCTION LLC |
||
|
6/28/2017 |
|
Mult Parcel |
$165,000 |
ACREAGE DEVELOPMENT LLC |
KAPALUA LLC |
||
| Last Mailed Notice of Value (N.O.V.) Information/History | ||||||||
|---|---|---|---|---|---|---|---|---|
| Year | Date | Market Value | Taxable Market Value | Gross Assessed | Exemption | Net Assessed | ||
|
2026 |
02/06/2026 |
340,500 |
330,617 |
36,367 |
0 |
36,367 |
||
|
2025 |
01/31/2025 |
343,500 |
314,874 |
34,635 |
0 |
34,635 |
||
|
2024 |
01/22/2024 |
326,000 |
299,880 |
32,986 |
0 |
32,986 |
||
|
2023 |
01/23/2023 |
296,000 |
285,600 |
31,416 |
0 |
31,416 |
||
|
2022 |
02/22/2022 |
272,000 |
272,000 |
29,920 |
0 |
29,920 |
||
| Property Building Permit History | ||||||
|---|---|---|---|---|---|---|
| Issued | Permit # | Provided by | Bldg # | Description | Est Construction Cost | Status |
|
5/11/2020 |
BP-2020-40 |
|
1 |
Storage Buil |
13,450 |
Inactive |
|
12/11/2018 |
|
|
1 |
Main Dwellin |
199,000 |
Inactive |
| Click button on building number to access detailed information: | ||||||
|---|---|---|---|---|---|---|
| Bldg # | Vacant/Improved Land | Bldg Description | Year Built | SqFt | # Stories | |
|
1 |
Improved |
Ranch 1 Story |
2019 |
1,868 |
1 Stories |
|