|
|
|
| Larry Stein Oklahoma County Assessor (405) 713-1200 - Public Access System |
|
|
|
|
|
|
| Real Property Display - Screen Produced 4/3/2026 5:39:46 AM | ||||
|---|---|---|---|---|
| Account: R198921205 | Type: Residential | Location: |
300 N STATE ST |
|
| Building Name/Occupant: |
|
JONES |
||
| Owner Name 1: | SANDERS KANDICE |
Parcel PIN#: |
3306-19-892-1205 |
|
| Owner Name 2: | 1/4 section #: |
3306 |
||
| Owner Name 3: | Parent Acct: |
|
||
| Billing Address: | 300 N STATE ST | Tax District: |
|
|
| City, State, Zip | JONES, OK 73049 | School System: |
Jones #9 |
|
|
Country: (If noted) |
Land Size: |
0.2273 Acres |
||
|
Land Value: 24,750 |
|
|||
|
Sect 27-T13N-R1W Qtr SE |
JONES CITY ADDITION
Block
009
Lot
000
|
|||
| Full Legal Description: JONES CITY ADDITION 009 000 S66FT OF LOTS 1 THRU 6 |
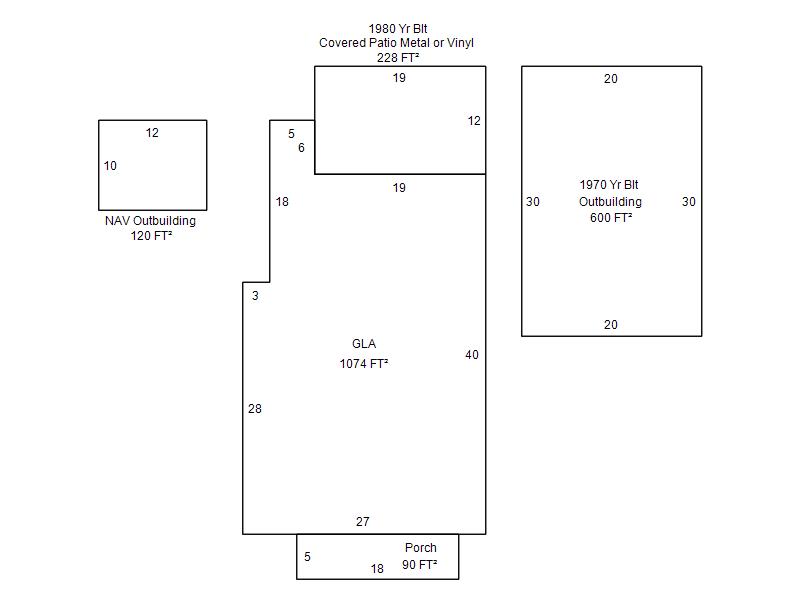
| Photo & Sketch (if available) | Comp Sales (ordered by relevancy) |
|
||||||||||||||||||
|
||||||||||||||||||||
| Value History (*The County Treasurer 405-713-1300 posts & collects actual tax amounts. Contact information HERE) | |||||||||||||
|---|---|---|---|---|---|---|---|---|---|---|---|---|---|
| Year | Market Value | Taxable Mkt Value | Gross Assessed | Exemption | Net Assessed | Millage | Est. Tax | Tax Savings | |||||
|
2026 |
124,000 |
117,075 |
12,878 |
0 |
12,878 |
114.89 |
$1,480 |
$88 |
|||||
|
2025 |
111,500 |
111,500 |
12,265 |
0 |
12,265 |
114.89 |
$1,409 |
$0 |
|||||
|
2024 |
116,000 |
113,925 |
12,531 |
0 |
12,531 |
115.31 |
$1,445 |
$26 |
|||||
|
2023 |
108,500 |
108,500 |
11,935 |
0 |
11,935 |
112.65 |
$1,344 |
$0 |
|||||
|
2022 |
103,500 |
103,500 |
11,385 |
0 |
11,385 |
108.93 |
$1,240 |
$0 |
|||||
| Property Account Status/Adjustments/Exemptions | ||
|---|---|---|
| Account # | Exemption Description | Amount |
|
R198921205 |
5% Capped Account |
0 |
| Property Deed Transaction History (Recorded in the County Clerk's Office) | ||||||||||
|---|---|---|---|---|---|---|---|---|---|---|
| Date | Type | Book | Page | Price | Grantor | Grantee | ||||
|
1/29/2021 |
|
Deeds |
$108,500 |
300 STATE ST LLC |
SANDERS KANDICE |
|||||
|
4/10/2020 |
|
Deeds |
$104,500 |
TAYLOR CARLTON |
300 STATE ST LLC |
|||||
|
1/18/2017 |
|
Deeds |
$0 |
TAYLOR CARLTON |
TAYLOR CARLTON |
|||||
|
7/17/2013 |
|
Deeds |
$22,500 |
TAYLOR CARLTON |
TAYLOR CARLTON |
|||||
|
5/7/2001 |
|
Deeds |
$20,000 |
KERR VICKIE ANN |
BEAN FRANK E JR & JOYCE F |
|||||
| Last Mailed Notice of Value (N.O.V.) Information/History | ||||||||
|---|---|---|---|---|---|---|---|---|
| Year | Date | Market Value | Taxable Market Value | Gross Assessed | Exemption | Net Assessed | ||
|
2026 |
02/06/2026 |
124,000 |
117,075 |
12,878 |
0 |
12,878 |
||
|
2024 |
01/22/2024 |
116,000 |
113,925 |
12,531 |
0 |
12,531 |
||
|
2023 |
01/23/2023 |
108,500 |
108,500 |
11,935 |
0 |
11,935 |
||
|
2022 |
02/22/2022 |
103,500 |
103,500 |
11,385 |
0 |
11,385 |
||
|
2021 |
02/24/2021 |
100,000 |
100,000 |
11,000 |
0 |
11,000 |
||
| Property Building Permit History | ||||||
|---|---|---|---|---|---|---|
| Issued | Permit # | Provided by | Bldg # | Description | Est Construction Cost | Status |
|
7/22/2013 |
10453126 |
JONES |
1 |
Main Dwellin |
0 |
Inactive |
| Click button on building number to access detailed information: | ||||||
|---|---|---|---|---|---|---|
| Bldg # | Vacant/Improved Land | Bldg Description | Year Built | SqFt | # Stories | |
|
1 |
Improved |
Ranch 1 Story |
1910 |
1,074 |
1 Stories |
|