|
|
|
| Larry Stein Oklahoma County Assessor (405) 713-1200 - Public Access System |
|
|
|
|
|
|
| Real Property Display - Screen Produced 4/2/2026 9:18:24 AM | ||||
|---|---|---|---|---|
| Account: R184352150 | Type: Residential | Location: |
13910 EDMOND LAKE DR |
|
| Building Name/Occupant: |
|
OKLAHOMA CITY |
||
| Owner Name 1: | GOTCHER DERYL L |
Parcel PIN#: |
3442-18-435-2150 |
|
| Owner Name 2: | GOTCHER CATHY M | 1/4 section #: |
3442 |
|
| Owner Name 3: | Parent Acct: |
|
||
| Billing Address: | 13910 EDMOND LAKE DR | Tax District: |
|
|
| City, State, Zip | JONES, OK 73049-3434 | School System: |
Edmond #12 |
|
|
Country: (If noted) |
Land Size: |
5.9800 Acres |
||
|
Land Value: 103,903 |
|
|||
|
Sect 11-T13N-R2W Qtr SE |
UNPLTD PT SEC 11 13N 2W
Block
000
Lot
000
|
|||
| Full Legal Description: UNPLTD PT SEC 11 13N 2W 000 000 PT SE4 SEC 11 13N 2W BEG 1752.78FT E & 780.68FT N OF SW/C SE4 TH N283.32FT W898.55FT SLY286.56FT E941.57FT TO BEG CONT 5.98ACRS MORE OR LESS AKA TR 15 EDMOND LAKE ESTATES UNREC |
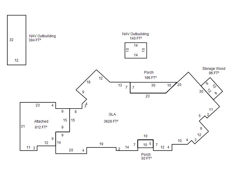
| Photo & Sketch (if available) | Comp Sales (ordered by relevancy) |
|
||||||||||||||||||
|
||||||||||||||||||||
| Value History (*The County Treasurer 405-713-1300 posts & collects actual tax amounts. Contact information HERE) | |||||||||||||
|---|---|---|---|---|---|---|---|---|---|---|---|---|---|
| Year | Market Value | Taxable Mkt Value | Gross Assessed | Exemption | Net Assessed | Millage | Est. Tax | Tax Savings | |||||
|
2026 |
753,000 |
490,370 |
53,940 |
1,000 |
52,940 |
120.32 |
$6,370 |
$3,596 |
|||||
|
2025 |
615,500 |
476,088 |
52,369 |
1,000 |
51,369 |
120.32 |
$6,181 |
$1,965 |
|||||
|
2024 |
605,000 |
462,222 |
50,843 |
1,000 |
49,843 |
119.96 |
$5,979 |
$2,004 |
|||||
|
2023 |
570,500 |
448,760 |
49,362 |
1,000 |
48,362 |
119.02 |
$5,756 |
$1,713 |
|||||
|
2022 |
517,500 |
435,690 |
47,925 |
1,000 |
46,925 |
120.10 |
$5,636 |
$1,201 |
|||||
| Property Account Status/Adjustments/Exemptions | ||
|---|---|---|
| Account # | Exemption Description | Amount |
|
R184352150 |
3% Cap Homestead |
0 |
|
R184352150 |
Homestead |
1,000 |
| Property Deed Transaction History (Recorded in the County Clerk's Office) | ||||||||||
|---|---|---|---|---|---|---|---|---|---|---|
| Date | Type | Book | Page | Price | Grantor | Grantee | ||||
|
6/3/2017 |
|
Deeds |
$442,000 |
DELAUNE RANDY & NANCY |
GOTCHER DERYL L |
|||||
|
6/10/2013 |
|
Deeds |
$447,500 |
BRIODY ROBERT & RICKEY D |
DELAUNE RANDY |
|||||
|
5/21/2010 |
|
Deeds |
$375,000 |
BENNETT DAMON W & JANISSA |
BRIODY ROBERT & RICKEY D |
|||||
|
2/26/2009 |
|
Deeds |
$362,500 |
MERITT ROBERT & JULIE |
BENNETT DAMON W |
|||||
|
12/17/2004 |
|
Deeds |
$352,500 |
NORMAN WILLIAM A & JANELLE |
MERITT ROBERT & JULIE |
|||||
| Last Mailed Notice of Value (N.O.V.) Information/History | ||||||||
|---|---|---|---|---|---|---|---|---|
| Year | Date | Market Value | Taxable Market Value | Gross Assessed | Exemption | Net Assessed | ||
|
2026 |
02/06/2026 |
753,000 |
490,370 |
53,940 |
1,000 |
52,940 |
||
|
2025 |
01/31/2025 |
615,500 |
476,088 |
52,369 |
1,000 |
51,369 |
||
|
2024 |
01/22/2024 |
605,000 |
462,222 |
50,843 |
1,000 |
49,843 |
||
|
2023 |
01/23/2023 |
570,500 |
448,760 |
49,362 |
1,000 |
48,362 |
||
|
2022 |
02/22/2022 |
517,500 |
435,690 |
47,925 |
1,000 |
46,925 |
||
| Property Building Permit History | ||||||
|---|---|---|---|---|---|---|
| Issued | Permit # | Provided by | Bldg # | Description | Est Construction Cost | Status |
|
8/23/2019 |
|
|
|
Swimming Pool |
|
Inactive |
|
11/28/2005 |
10314774 |
OKLAHOMA CITY |
1 |
Storage Buil |
4,000 |
Inactive |
|
8/14/1992 |
10259602 |
OKLAHOMA CITY |
1 |
Main Dwellin |
190,000 |
Inactive |
| Click button on building number to access detailed information: | ||||||
|---|---|---|---|---|---|---|
| Bldg # | Vacant/Improved Land | Bldg Description | Year Built | SqFt | # Stories | |
|
1 |
Improved |
Ranch 1 Story |
1993 |
3,626 |
1 Stories |
|