|
|
|
| Larry Stein Oklahoma County Assessor (405) 713-1200 - Public Access System |
|
|
|
|
|
|
| Real Property Display - Screen Produced 4/4/2026 3:32:23 AM | ||||
|---|---|---|---|---|
| Account: R200301240 | Type: Residential | Location: |
2800 NW 163RD ST |
|
| Building Name/Occupant: |
|
OKLAHOMA CITY |
||
| Owner Name 1: | PEARCE KYLE |
Parcel PIN#: |
3624-20-030-1240 |
|
| Owner Name 2: | 1/4 section #: |
3624 |
||
| Owner Name 3: | Parent Acct: |
|
||
| Billing Address: | 2800 NW 163RD ST | Tax District: |
|
|
| City, State, Zip | EDMOND, OK 73013-1250 | School System: |
Edmond #12 |
|
|
Country: (If noted) |
Land Size: |
0.2072 Acres |
||
|
Land Value: 42,750 |
|
|||
|
Sect 6-T13N-R3W Qtr NW |
SEMINOLE POINTE SEC 6
Block
028
Lot
011
|
|||
| Full Legal Description: SEMINOLE POINTE SEC 6 028 011 |
| Photo & Sketch (if available) | Comp Sales (ordered by relevancy) |
|
||||||||||||||||||
|
||||||||||||||||||||
| Value History (*The County Treasurer 405-713-1300 posts & collects actual tax amounts. Contact information HERE) | |||||||||||||
|---|---|---|---|---|---|---|---|---|---|---|---|---|---|
| Year | Market Value | Taxable Mkt Value | Gross Assessed | Exemption | Net Assessed | Millage | Est. Tax | Tax Savings | |||||
|
2026 |
288,000 |
288,000 |
31,680 |
0 |
31,680 |
120.32 |
$3,812 |
$0 |
|||||
|
2025 |
283,500 |
283,500 |
31,185 |
0 |
31,185 |
120.32 |
$3,752 |
$0 |
|||||
|
2024 |
280,000 |
280,000 |
30,800 |
0 |
30,800 |
119.96 |
$3,695 |
$0 |
|||||
|
2023 |
261,000 |
215,538 |
23,709 |
0 |
23,709 |
119.02 |
$2,822 |
$595 |
|||||
|
2022 |
239,000 |
205,275 |
22,580 |
0 |
22,580 |
120.10 |
$2,712 |
$446 |
|||||
| Property Account Status/Adjustments/Exemptions | ||
|---|---|---|
| Account # | Exemption Description | Amount |
|
R200301240 |
5% Capped Account |
0 |
| Property Deed Transaction History (Recorded in the County Clerk's Office) | ||||||||||
|---|---|---|---|---|---|---|---|---|---|---|
| Date | Type | Book | Page | Price | Grantor | Grantee | ||||
|
2/27/2023 |
|
Deeds |
$290,000 |
BILLINGSLEY JASON |
PEARCE KYLE |
|||||
|
4/27/2018 |
|
Deeds |
$0 |
BILLINGSLEY JASON |
BILLINGSLEY JASON |
|||||
|
1/2/2018 |
|
Deeds |
$196,000 |
DEIMEL SCOTT D |
BILLINGSLEY JASON |
|||||
|
2/5/2013 |
|
Hmstd Off & |
$0 |
DEIMEL INVESTMENT PROPERTIES LLC |
DEIMEL SCOTT D |
|||||
|
3/17/2004 |
|
Other |
$0 |
DEIMEL SCOTT D & ROBIN L |
DEIMEL INVESTMENT PROPERTIES LLC |
|||||
| Last Mailed Notice of Value (N.O.V.) Information/History | ||||||||
|---|---|---|---|---|---|---|---|---|
| Year | Date | Market Value | Taxable Market Value | Gross Assessed | Exemption | Net Assessed | ||
|
2026 |
02/23/2026 |
288,000 |
288,000 |
31,680 |
0 |
31,680 |
||
|
2025 |
02/14/2025 |
283,500 |
283,500 |
31,185 |
0 |
31,185 |
||
|
2024 |
02/13/2024 |
280,000 |
280,000 |
30,800 |
0 |
30,800 |
||
|
2023 |
02/14/2023 |
261,000 |
215,538 |
23,709 |
0 |
23,709 |
||
|
2022 |
03/15/2022 |
239,000 |
205,275 |
22,580 |
0 |
22,580 |
||
| Property Building Permit History | ||||||
|---|---|---|---|---|---|---|
| Issued | Permit # | Provided by | Bldg # | Description | Est Construction Cost | Status |
|
7/7/1998 |
10265767 |
OKLAHOMA CITY |
1 |
Main Dwellin |
98,000 |
Inactive |
| Click button on building number to access detailed information: | ||||||
|---|---|---|---|---|---|---|
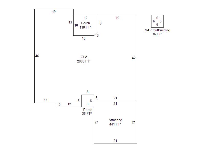
| Bldg # | Vacant/Improved Land | Bldg Description | Year Built | SqFt | # Stories | |
|
1 |
Improved |
Ranch 1 Story |
1998 |
2,068 |
1 Stories |
|