|
|
|
| Larry Stein Oklahoma County Assessor (405) 713-1200 - Public Access System |
|
|
|
|
|
|
| Real Property Display - Screen Produced 4/4/2026 3:04:18 PM | ||||
|---|---|---|---|---|
| Account: R153550500 | Type: Residential | Location: |
4505 SE 19TH ST |
|
| Building Name/Occupant: |
|
DEL CITY |
||
| Owner Name 1: | EJ3 INVESTMENTS LLC |
Parcel PIN#: |
1432-15-355-0500 |
|
| Owner Name 2: | 1/4 section #: |
1432 |
||
| Owner Name 3: | Parent Acct: |
|
||
| Billing Address: | 1420 CIRCLE GLEN | Tax District: |
|
|
| City, State, Zip | EDMOND, OK 73025 | School System: |
Mid-Del #52 |
|
|
Country: (If noted) |
Land Size: |
0.1915 Acres |
||
|
Land Value: 20,016 |
|
|||
|
Sect 8-T11N-R2W Qtr NW |
EPPERLY HEIGHTS 2ND
Block
001
Lot
019
|
|||
| Full Legal Description: EPPERLY HEIGHTS 2ND 001 019 |
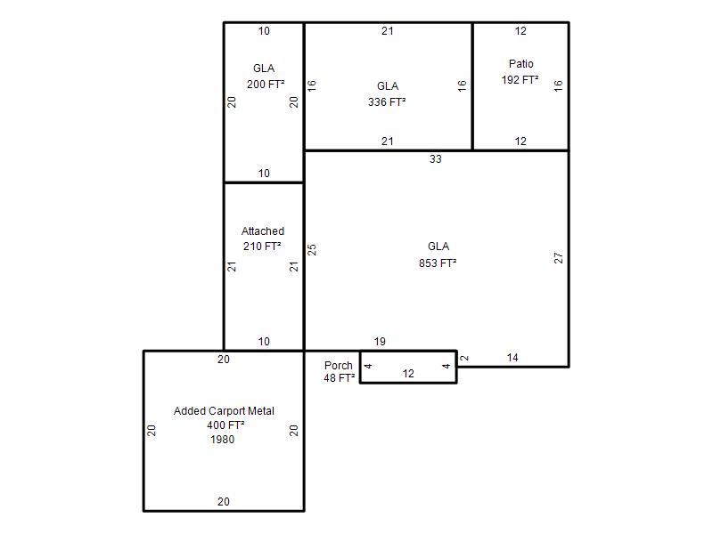
| Photo & Sketch (if available) | Comp Sales (ordered by relevancy) |
|
||||||||||||||||||
|
||||||||||||||||||||
| Value History (*The County Treasurer 405-713-1300 posts & collects actual tax amounts. Contact information HERE) | |||||||||||||
|---|---|---|---|---|---|---|---|---|---|---|---|---|---|
| Year | Market Value | Taxable Mkt Value | Gross Assessed | Exemption | Net Assessed | Millage | Est. Tax | Tax Savings | |||||
|
2026 |
150,000 |
128,902 |
14,179 |
0 |
14,179 |
114.72 |
$1,627 |
$266 |
|||||
|
2025 |
148,000 |
122,764 |
13,504 |
0 |
13,504 |
114.72 |
$1,549 |
$318 |
|||||
|
2024 |
141,000 |
116,919 |
12,860 |
0 |
12,860 |
117.21 |
$1,507 |
$310 |
|||||
|
2023 |
128,500 |
111,352 |
12,248 |
0 |
12,248 |
112.46 |
$1,377 |
$212 |
|||||
|
2022 |
115,500 |
106,050 |
11,665 |
0 |
11,665 |
110.76 |
$1,292 |
$115 |
|||||
| Property Account Status/Adjustments/Exemptions | ||
|---|---|---|
| Account # | Exemption Description | Amount |
|
R153550500 |
5% Capped Account |
0 |
| Property Deed Transaction History (Recorded in the County Clerk's Office) | ||||||||||
|---|---|---|---|---|---|---|---|---|---|---|
| Date | Type | Book | Page | Price | Grantor | Grantee | ||||
|
8/14/2020 |
|
Deeds |
$105,500 |
MARSHALL JONATHAN & KATHERINE |
EJ3 INVESTMENTS LLC |
|||||
|
7/12/2012 |
|
Deeds |
$70,000 |
YANNATONE REBECCA S |
MARSHALL JONATHAN & KATHERINE |
|||||
|
7/31/1998 |
|
Historical |
$36,000 |
CHAMBERS FRANCES L |
YANNATONE REBECCA S |
|||||
|
6/18/1998 |
|
Historical |
$0 |
THOMAS ROBERT E II & DEBORAH L |
THOMAS DEBORAH L |
|||||
|
12/2/1994 |
|
Historical |
$0 |
CHAMBERS FRANCES L |
THOMAS ROBERT E II & DEBORAH L |
|||||
| Last Mailed Notice of Value (N.O.V.) Information/History | ||||||||
|---|---|---|---|---|---|---|---|---|
| Year | Date | Market Value | Taxable Market Value | Gross Assessed | Exemption | Net Assessed | ||
|
2026 |
02/06/2026 |
150,000 |
128,902 |
14,179 |
0 |
14,179 |
||
|
2025 |
01/31/2025 |
148,000 |
122,764 |
13,504 |
0 |
13,504 |
||
|
2024 |
01/22/2024 |
141,000 |
116,919 |
12,860 |
0 |
12,860 |
||
|
2023 |
01/23/2023 |
128,500 |
111,352 |
12,248 |
0 |
12,248 |
||
|
2022 |
02/22/2022 |
115,500 |
106,050 |
11,665 |
0 |
11,665 |
||
| Property Building Permit History | |||||||||||
|---|---|---|---|---|---|---|---|---|---|---|---|
| Issued | Permit # | Provided by | Bldg # | Description | Est Construction Cost | Status | |||||
| No Building Permit records returned. | |||||||||||
| Click button on building number to access detailed information: | ||||||
|---|---|---|---|---|---|---|
| Bldg # | Vacant/Improved Land | Bldg Description | Year Built | SqFt | # Stories | |
|
1 |
Improved |
Ranch 1 Story |
1948 |
1,389 |
1 Stories |
|