|
|
|
| Larry Stein Oklahoma County Assessor (405) 713-1200 - Public Access System |
|
|
|
|
|
|
| Real Property Display - Screen Produced 4/2/2026 7:03:36 AM | ||||
|---|---|---|---|---|
| Account: R208781090 | Type: Residential | Location: |
16361 SCOTLAND WAY |
|
| Building Name/Occupant: |
|
OKLAHOMA CITY |
||
| Owner Name 1: | BROX FAMILY TRUST |
Parcel PIN#: |
3801-20-878-1090 |
|
| Owner Name 2: | 1/4 section #: |
3801 |
||
| Owner Name 3: | Parent Acct: |
3801-16-868-0010 |
||
| Billing Address: | 16361 SCOTLAND WAY | Tax District: |
|
|
| City, State, Zip | EDMOND , OK 73013 | School System: |
Edmond #12 |
|
|
Country: (If noted) |
Land Size: |
0.1791 Acres |
||
|
Land Value: 124,832 |
|
|||
|
Sect 1-T13N-R4W Qtr NE |
MUIRFIELD VILLAGE IV
Block
006
Lot
034
|
|||
| Full Legal Description: MUIRFIELD VILLAGE IV 006 034 |
| Photo & Sketch (if available) | Comp Sales (ordered by relevancy) |
|
||||||||||||||||||
|
||||||||||||||||||||
| Value History (*The County Treasurer 405-713-1300 posts & collects actual tax amounts. Contact information HERE) | |||||||||||||
|---|---|---|---|---|---|---|---|---|---|---|---|---|---|
| Year | Market Value | Taxable Mkt Value | Gross Assessed | Exemption | Net Assessed | Millage | Est. Tax | Tax Savings | |||||
|
2026 |
784,500 |
745,812 |
82,038 |
1,000 |
81,038 |
120.32 |
$9,751 |
$632 |
|||||
|
2025 |
804,000 |
724,090 |
79,649 |
1,000 |
78,649 |
120.32 |
$9,463 |
$1,178 |
|||||
|
2024 |
703,000 |
703,000 |
77,330 |
1,000 |
76,330 |
119.96 |
$9,157 |
$120 |
|||||
|
2023 |
724,500 |
684,280 |
75,270 |
1,000 |
74,270 |
119.02 |
$8,840 |
$646 |
|||||
|
2022 |
685,000 |
664,350 |
73,078 |
1,000 |
72,078 |
120.10 |
$8,657 |
$393 |
|||||
| Property Account Status/Adjustments/Exemptions | ||
|---|---|---|
| Account # | Exemption Description | Amount |
|
R208781090 |
3% Cap Homestead |
0 |
|
R208781090 |
Homestead |
1,000 |
| Property Deed Transaction History (Recorded in the County Clerk's Office) | |||||||
|---|---|---|---|---|---|---|---|
| Date | Type | Book | Page | Price | Grantor | Grantee | |
|
12/18/2020 |
|
Deeds |
$649,000 |
DICK C B & VIRGINIA L TRS |
BROX FAMILY TRUST |
||
|
11/25/2013 |
|
Deeds |
$615,000 |
ROBERTS GROUP LLC |
DICK C B & VIRGINIA L TRS |
||
|
2/15/2013 |
|
Deeds |
$72,000 |
BILL ROBERTS INC |
ROBERTS GROUP LLC |
||
| Last Mailed Notice of Value (N.O.V.) Information/History | ||||||||
|---|---|---|---|---|---|---|---|---|
| Year | Date | Market Value | Taxable Market Value | Gross Assessed | Exemption | Net Assessed | ||
|
2026 |
02/23/2026 |
784,500 |
745,812 |
82,038 |
1,000 |
81,038 |
||
|
2025 |
02/14/2025 |
804,000 |
724,090 |
79,649 |
1,000 |
78,649 |
||
|
2024 |
02/13/2024 |
703,000 |
703,000 |
77,330 |
1,000 |
76,330 |
||
|
2023 |
02/14/2023 |
724,500 |
684,280 |
75,270 |
1,000 |
74,270 |
||
|
2022 |
03/15/2022 |
685,000 |
664,350 |
73,078 |
1,000 |
72,078 |
||
| Property Building Permit History | ||||||
|---|---|---|---|---|---|---|
| Issued | Permit # | Provided by | Bldg # | Description | Est Construction Cost | Status |
|
1/28/2013 |
10448825 |
OKLAHOMA CITY |
1 |
Main Dwellin |
410,000 |
Inactive |
| Click button on building number to access detailed information: | ||||||
|---|---|---|---|---|---|---|
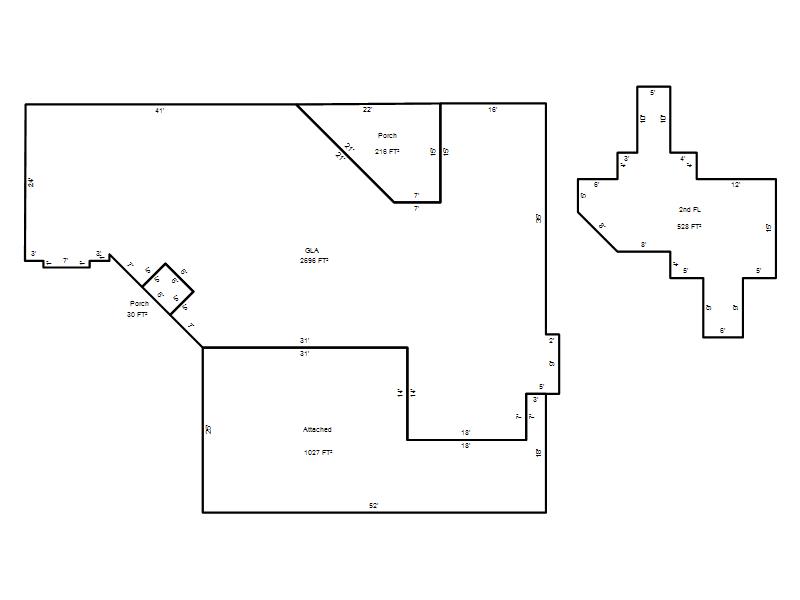
| Bldg # | Vacant/Improved Land | Bldg Description | Year Built | SqFt | # Stories | |
|
1 |
Improved |
1½ Story Fin |
2013 |
3,224 |
1.5 Stories |
|