|
|
|
| Larry Stein Oklahoma County Assessor (405) 713-1200 - Public Access System |
|
|
|
|
|
|
| Real Property Display - Screen Produced 4/2/2026 1:50:40 AM | ||||
|---|---|---|---|---|
| Account: R200230070 | Type: Residential | Location: |
12500 SAINT ANDREWS DR, Unit 7 |
|
| Building Name/Occupant: |
|
OKLAHOMA CITY |
||
| Owner Name 1: | HARRIS PATRICIA K |
Parcel PIN#: |
3854-20-023-0070 |
|
| Owner Name 2: | 1/4 section #: |
3854 |
||
| Owner Name 3: | Parent Acct: |
|
||
| Billing Address: | 12500 SAINT ANDREWS DR, Unit 7 | Tax District: |
|
|
| City, State, Zip | OKLAHOMA CITY, OK 73120 | School System: |
Oklahoma City #89 |
|
|
Country: (If noted) |
Land Size: |
1.0000 Site |
||
|
Land Value: 27,375 |
|
|||
|
Sect 14-T13N-R4W Qtr SE |
SAINT ANDREWS COURT CONDOS
Block
000
Lot
000
|
|||
| Full Legal Description: SAINT ANDREWS COURT CONDOS 000 000 UNIT 7 |
| Photo & Sketch (if available) | Comp Sales (ordered by relevancy) |
|
||||||||||||||||||
|
||||||||||||||||||||
| Value History (*The County Treasurer 405-713-1300 posts & collects actual tax amounts. Contact information HERE) | |||||||||||||
|---|---|---|---|---|---|---|---|---|---|---|---|---|---|
| Year | Market Value | Taxable Mkt Value | Gross Assessed | Exemption | Net Assessed | Millage | Est. Tax | Tax Savings | |||||
|
2026 |
248,000 |
218,500 |
24,035 |
1,000 |
23,035 |
122.90 |
$2,831 |
$522 |
|||||
|
2025 |
235,000 |
218,500 |
24,035 |
1,000 |
23,035 |
122.90 |
$2,831 |
$346 |
|||||
|
2024 |
286,000 |
218,500 |
24,035 |
1,000 |
23,035 |
123.89 |
$2,854 |
$1,044 |
|||||
|
2023 |
274,500 |
218,500 |
24,035 |
1,000 |
23,035 |
122.82 |
$2,829 |
$879 |
|||||
|
2022 |
218,500 |
218,500 |
24,035 |
1,000 |
23,035 |
117.63 |
$2,710 |
$118 |
|||||
| Property Account Status/Adjustments/Exemptions | ||
|---|---|---|
| Account # | Exemption Description | Amount |
|
R200230070 |
3% Cap Homestead |
0 |
|
R200230070 |
Freeze Senior Valuation |
0 |
|
R200230070 |
Homestead |
1,000 |
| Property Deed Transaction History (Recorded in the County Clerk's Office) | ||||||||||
|---|---|---|---|---|---|---|---|---|---|---|
| Date | Type | Book | Page | Price | Grantor | Grantee | ||||
|
9/8/2021 |
|
Deeds |
$220,000 |
TWO ACES ENTERPRISES LLC |
HARRIS PATRICIA K |
|||||
|
7/14/2021 |
|
Deeds |
$220,000 |
NORRIS JAMES C & CLARA CO TRS |
TWO ACES ENTERPRISES LLC |
|||||
|
11/30/2009 |
|
Deeds |
$0 |
NORRIS JAMES & COLEEN |
NORRIS JAMES C & CLARA CO TRS |
|||||
|
12/3/2008 |
|
Deeds |
$190,000 |
ARNN PHYLLIS A TRS ARNN PHYLLIS A 1994 REV TRUST |
NORRIS JAMES & COLEEN |
|||||
|
10/17/1997 |
|
Historical |
$156,667 |
CHARLES GIVENS INTERESTS LLC |
ARNN PHYLLIS A TRS |
|||||
| Last Mailed Notice of Value (N.O.V.) Information/History | ||||||||
|---|---|---|---|---|---|---|---|---|
| Year | Date | Market Value | Taxable Market Value | Gross Assessed | Exemption | Net Assessed | ||
|
2026 |
02/23/2026 |
248,000 |
218,500 |
24,035 |
1,000 |
23,035 |
||
|
2024 |
02/13/2024 |
286,000 |
218,500 |
24,035 |
1,000 |
23,035 |
||
|
2023 |
02/14/2023 |
274,500 |
218,500 |
24,035 |
1,000 |
23,035 |
||
|
2022 |
03/15/2022 |
218,500 |
218,500 |
24,035 |
1,000 |
23,035 |
||
|
2021 |
03/19/2021 |
199,500 |
184,370 |
20,280 |
1,000 |
19,280 |
||
| Property Building Permit History | |||||||||||
|---|---|---|---|---|---|---|---|---|---|---|---|
| Issued | Permit # | Provided by | Bldg # | Description | Est Construction Cost | Status | |||||
| No Building Permit records returned. | |||||||||||
| Click button on building number to access detailed information: | ||||||
|---|---|---|---|---|---|---|
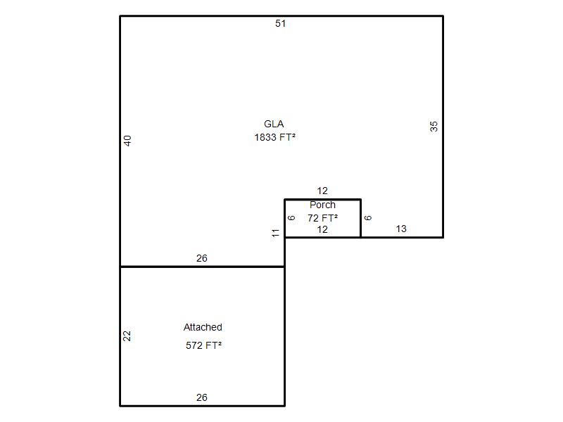
| Bldg # | Vacant/Improved Land | Bldg Description | Year Built | SqFt | # Stories | |
|
1 |
Improved |
Condo <= 3 Stories |
1997 |
1,833 |
1 Stories |
|