|
|
|
| Larry Stein Oklahoma County Assessor (405) 713-1200 - Public Access System |
|
|
|
|
|
|
| Real Property Display - Screen Produced 4/2/2026 9:22:53 AM | ||||
|---|---|---|---|---|
| Account: R121111130 | Type: Residential | Location: |
7325 NW 119TH ST |
|
| Building Name/Occupant: |
|
OKLAHOMA CITY |
||
| Owner Name 1: | MILES TARA DARLENE |
Parcel PIN#: |
3877-12-111-1130 |
|
| Owner Name 2: | MILES BLAKE AUSTIN | 1/4 section #: |
3877 |
|
| Owner Name 3: | Parent Acct: |
|
||
| Billing Address: | 7325 NW 119TH ST | Tax District: |
|
|
| City, State, Zip | OKLAHOMA CITY, OK 73162 | School System: |
Putnam City #1 |
|
|
Country: (If noted) |
Land Size: |
0.3407 Acres |
||
|
Land Value: 37,250 |
|
|||
|
Sect 20-T13N-R4W Qtr NE |
SUMMIT PLACE SEC II
Block
015
Lot
014
|
|||
| Full Legal Description: SUMMIT PLACE SEC II 015 014 |
| Photo & Sketch (if available) | Comp Sales (ordered by relevancy) |
|
||||||||||||||||||
|
||||||||||||||||||||
| Value History (*The County Treasurer 405-713-1300 posts & collects actual tax amounts. Contact information HERE) | |||||||||||||
|---|---|---|---|---|---|---|---|---|---|---|---|---|---|
| Year | Market Value | Taxable Mkt Value | Gross Assessed | Exemption | Net Assessed | Millage | Est. Tax | Tax Savings | |||||
|
2026 |
306,500 |
306,500 |
33,715 |
0 |
33,715 |
123.17 |
$4,153 |
$0 |
|||||
|
2025 |
303,500 |
303,500 |
33,385 |
0 |
33,385 |
123.17 |
$4,112 |
$0 |
|||||
|
2024 |
300,000 |
300,000 |
33,000 |
0 |
33,000 |
122.30 |
$4,036 |
$0 |
|||||
|
2023 |
286,000 |
286,000 |
31,460 |
0 |
31,460 |
121.91 |
$3,835 |
$0 |
|||||
|
2022 |
232,500 |
216,423 |
23,806 |
1,000 |
22,806 |
123.41 |
$2,815 |
$342 |
|||||
| Property Account Status/Adjustments/Exemptions | ||
|---|---|---|
| Account # | Exemption Description | Amount |
|
R121111130 |
5% Capped Account |
0 |
| Property Deed Transaction History (Recorded in the County Clerk's Office) | |||||||
|---|---|---|---|---|---|---|---|
| Date | Type | Book | Page | Price | Grantor | Grantee | |
|
6/7/2022 |
|
Deeds |
$301,000 |
WEISE ALBERT J & ELAINE M TRS |
MILES TARA DARLENE |
||
|
3/6/1997 |
|
Historical |
$0 |
WEISE ALBERT J & ELAINE M |
WEISE ALBERT J & ELAINE M TRS |
||
|
3/1/1983 |
|
Historical |
$0 |
|
WEISE ALBERT J & ELAINE M |
||
| Last Mailed Notice of Value (N.O.V.) Information/History | ||||||||
|---|---|---|---|---|---|---|---|---|
| Year | Date | Market Value | Taxable Market Value | Gross Assessed | Exemption | Net Assessed | ||
|
2026 |
02/23/2026 |
306,500 |
306,500 |
33,715 |
0 |
33,715 |
||
|
2025 |
02/14/2025 |
303,500 |
303,500 |
33,385 |
0 |
33,385 |
||
|
2024 |
02/13/2024 |
300,000 |
300,000 |
33,000 |
0 |
33,000 |
||
|
2023 |
02/14/2023 |
286,000 |
286,000 |
31,460 |
0 |
31,460 |
||
|
2022 |
03/15/2022 |
232,500 |
216,423 |
23,806 |
1,000 |
22,806 |
||
| Property Building Permit History | |||||||||||
|---|---|---|---|---|---|---|---|---|---|---|---|
| Issued | Permit # | Provided by | Bldg # | Description | Est Construction Cost | Status | |||||
| No Building Permit records returned. | |||||||||||
| Click button on building number to access detailed information: | ||||||
|---|---|---|---|---|---|---|
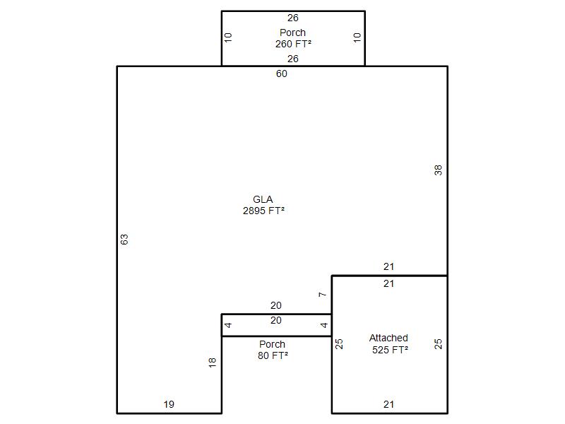
| Bldg # | Vacant/Improved Land | Bldg Description | Year Built | SqFt | # Stories | |
|
1 |
Improved |
Ranch 1 Story |
1983 |
2,895 |
1 Stories |
|