|
|
|
| Larry Stein Oklahoma County Assessor (405) 713-1200 - Public Access System |
|
|
|
|
|
|
| Real Property Display - Screen Produced 4/1/2026 12:36:21 AM | ||||
|---|---|---|---|---|
| Account: R103641110 | Type: Residential | Location: |
11005 REDBUD LN |
|
| Building Name/Occupant: |
|
OKLAHOMA CITY |
||
| Owner Name 1: | THOMPSON ROBERT & ELISA |
Parcel PIN#: |
3894-10-364-1110 |
|
| Owner Name 2: | 1/4 section #: |
3894 |
||
| Owner Name 3: | Parent Acct: |
|
||
| Billing Address: | 11005 REDBUD LN | Tax District: |
|
|
| City, State, Zip | OKLAHOMA CITY , OK 73120-5212 | School System: |
Oklahoma City #89 |
|
|
Country: (If noted) |
Land Size: |
0.2127 Acres |
||
|
Land Value: 56,980 |
|
|||
|
Sect 24-T13N-R4W Qtr SE |
QUAIL CREEK 7TH
Block
100
Lot
012
|
|||
| Full Legal Description: QUAIL CREEK 7TH 100 012 |
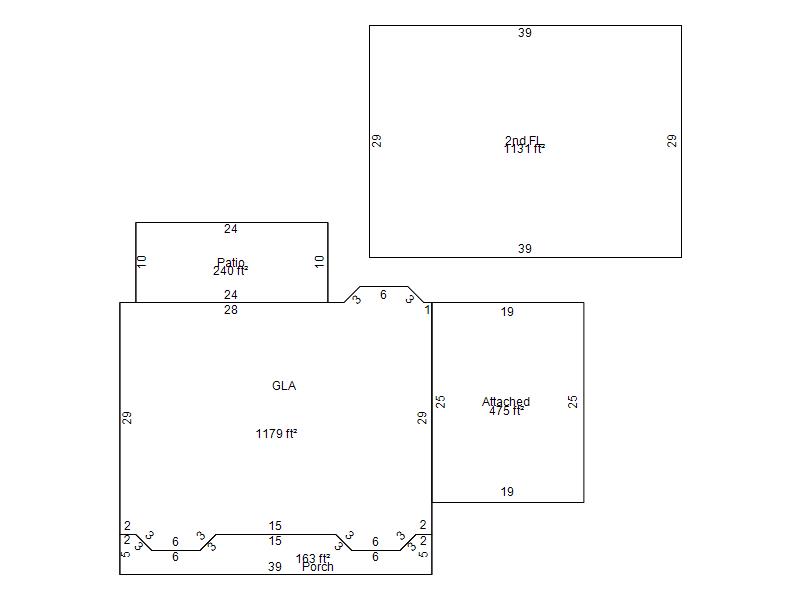
| Photo & Sketch (if available) | Comp Sales (ordered by relevancy) |
|
||||||||||||||||||
|
||||||||||||||||||||
| Value History (*The County Treasurer 405-713-1300 posts & collects actual tax amounts. Contact information HERE) | |||||||||||||
|---|---|---|---|---|---|---|---|---|---|---|---|---|---|
| Year | Market Value | Taxable Mkt Value | Gross Assessed | Exemption | Net Assessed | Millage | Est. Tax | Tax Savings | |||||
|
2026 |
328,000 |
279,687 |
30,765 |
1,000 |
29,765 |
122.90 |
$3,658 |
$776 |
|||||
|
2025 |
324,500 |
271,541 |
29,868 |
1,000 |
28,868 |
122.90 |
$3,548 |
$839 |
|||||
|
2024 |
321,000 |
263,633 |
28,999 |
1,000 |
27,999 |
123.89 |
$3,469 |
$906 |
|||||
|
2023 |
300,000 |
255,955 |
28,155 |
1,000 |
27,155 |
122.82 |
$3,335 |
$718 |
|||||
|
2022 |
248,500 |
248,500 |
27,335 |
1,000 |
26,335 |
117.63 |
$3,098 |
$118 |
|||||
| Property Account Status/Adjustments/Exemptions | ||
|---|---|---|
| Account # | Exemption Description | Amount |
|
R103641110 |
3% Cap Homestead |
0 |
|
R103641110 |
Homestead |
1,000 |
| Property Deed Transaction History (Recorded in the County Clerk's Office) | ||||||||||
|---|---|---|---|---|---|---|---|---|---|---|
| Date | Type | Book | Page | Price | Grantor | Grantee | ||||
|
6/4/2019 |
|
Deeds |
$265,000 |
VINCENT EVAN G |
THOMPSON ROBERT & ELISA |
|||||
|
6/15/2009 |
|
Deeds |
$215,000 |
CARLIN MARK W & HOLLY E |
VINCENT EVAN G |
|||||
|
7/30/2003 |
|
Deeds |
$179,000 |
TURNER MARK D & ROBERTA S |
CARLIN MARK W & HOLLY E |
|||||
|
11/7/1995 |
|
Historical |
$123,500 |
WALLACE WAYNE N & MARY ANNE |
TURNER MARK D & ROBERTA S |
|||||
|
9/1/1992 |
|
Historical |
$109,000 |
GANDY PEGGY ANN |
WALLACE WAYNE N & MARY ANNE |
|||||
| Last Mailed Notice of Value (N.O.V.) Information/History | ||||||||
|---|---|---|---|---|---|---|---|---|
| Year | Date | Market Value | Taxable Market Value | Gross Assessed | Exemption | Net Assessed | ||
|
2026 |
02/23/2026 |
328,000 |
279,687 |
30,765 |
1,000 |
29,765 |
||
|
2025 |
02/14/2025 |
324,500 |
271,541 |
29,868 |
1,000 |
28,868 |
||
|
2024 |
02/13/2024 |
321,000 |
263,633 |
28,999 |
1,000 |
27,999 |
||
|
2023 |
02/14/2023 |
300,000 |
255,955 |
28,155 |
1,000 |
27,155 |
||
|
2020 |
03/10/2020 |
262,000 |
262,000 |
28,820 |
1,000 |
27,820 |
||
| Property Building Permit History | |||||||||||
|---|---|---|---|---|---|---|---|---|---|---|---|
| Issued | Permit # | Provided by | Bldg # | Description | Est Construction Cost | Status | |||||
| No Building Permit records returned. | |||||||||||
| Click button on building number to access detailed information: | ||||||
|---|---|---|---|---|---|---|
| Bldg # | Vacant/Improved Land | Bldg Description | Year Built | SqFt | # Stories | |
|
1 |
Improved |
2 Story |
1966 |
2,310 |
2 Stories |
|