|
|
|
| Larry Stein Oklahoma County Assessor (405) 713-1200 - Public Access System |
|
|
|
|
|
|
| Real Property Display - Screen Produced 4/4/2026 2:19:25 PM | ||||
|---|---|---|---|---|
| Account: R171341750 | Type: Residential | Location: |
6617 ELK CANYON RD |
|
| Building Name/Occupant: |
|
OKLAHOMA CITY |
||
| Owner Name 1: | DETJEN JORDAN |
Parcel PIN#: |
3912-17-134-1750 |
|
| Owner Name 2: | 1/4 section #: |
3912 |
||
| Owner Name 3: | Parent Acct: |
|
||
| Billing Address: | 6617 ELK CANYON RD | Tax District: |
|
|
| City, State, Zip | OKLAHOMA CITY, OK 73162 | School System: |
Putnam City #1 |
|
|
Country: (If noted) |
Land Size: |
0.1641 Acres |
||
|
Land Value: 32,175 |
|
|||
|
Sect 28-T13N-R4W Qtr NW |
CANYON NORTH SEC 5
Block
037
Lot
009
|
|||
| Full Legal Description: CANYON NORTH SEC 5 037 009 |
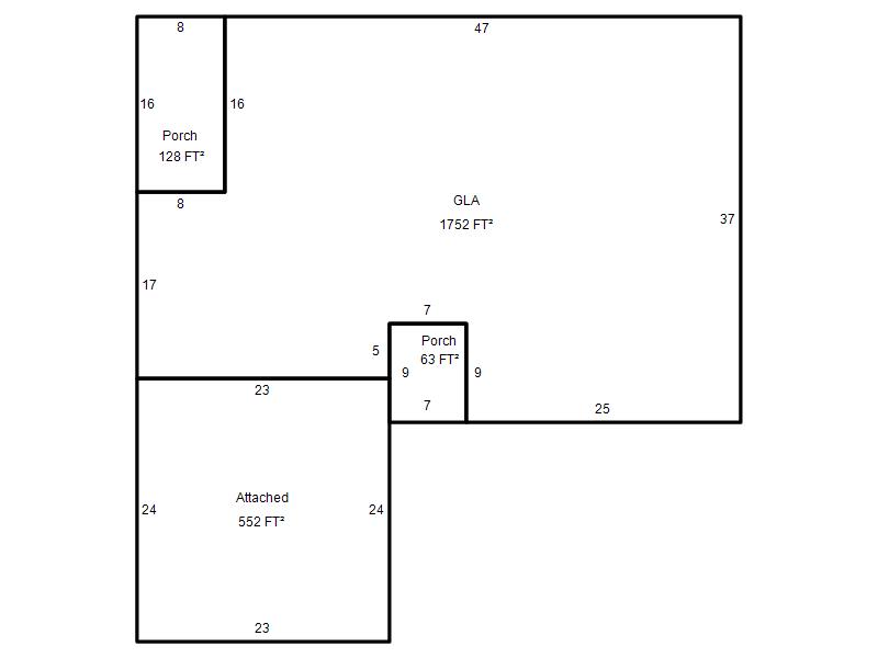
| Photo & Sketch (if available) | Comp Sales (ordered by relevancy) |
|
||||||||||||||||||
|
||||||||||||||||||||
| Value History (*The County Treasurer 405-713-1300 posts & collects actual tax amounts. Contact information HERE) | |||||||||||||
|---|---|---|---|---|---|---|---|---|---|---|---|---|---|
| Year | Market Value | Taxable Mkt Value | Gross Assessed | Exemption | Net Assessed | Millage | Est. Tax | Tax Savings | |||||
|
2026 |
241,000 |
221,723 |
24,389 |
1,000 |
23,389 |
123.17 |
$2,881 |
$384 |
|||||
|
2025 |
243,000 |
215,266 |
23,678 |
1,000 |
22,678 |
123.17 |
$2,793 |
$499 |
|||||
|
2024 |
233,000 |
208,997 |
22,989 |
1,000 |
21,989 |
122.30 |
$2,689 |
$445 |
|||||
|
2023 |
228,000 |
202,910 |
22,320 |
1,000 |
21,320 |
121.91 |
$2,599 |
$458 |
|||||
|
2022 |
197,000 |
197,000 |
21,670 |
1,000 |
20,670 |
123.41 |
$2,551 |
$123 |
|||||
| Property Account Status/Adjustments/Exemptions | ||
|---|---|---|
| Account # | Exemption Description | Amount |
|
R171341750 |
3% Cap Homestead |
0 |
|
R171341750 |
Homestead |
1,000 |
| Property Deed Transaction History (Recorded in the County Clerk's Office) | |||||||
|---|---|---|---|---|---|---|---|
| Date | Type | Book | Page | Price | Grantor | Grantee | |
|
7/6/2021 |
|
Deeds |
$195,000 |
GALL KEITH EDWARD |
DETJEN JORDAN |
||
|
3/25/1996 |
|
Historical |
$75,500 |
WEBB NATHAN T & SUSAN W |
GALL KEITH EDWARD |
||
|
2/27/1990 |
|
Historical |
$51,000 |
LOCAL FEDERAL SAVINGS |
WEBB NATHAN T & SUSAN W |
||
|
9/14/1988 |
|
Historical |
$0 |
ARMSTRONG JAMES A & CATHY S |
LOCAL FEDERAL SAVINGS |
||
|
10/1/1979 |
|
Historical |
$0 |
|
ARMSTRONG JAMES A & CATHY S |
||
| Last Mailed Notice of Value (N.O.V.) Information/History | ||||||||
|---|---|---|---|---|---|---|---|---|
| Year | Date | Market Value | Taxable Market Value | Gross Assessed | Exemption | Net Assessed | ||
|
2026 |
02/23/2026 |
241,000 |
221,723 |
24,389 |
1,000 |
23,389 |
||
|
2025 |
02/14/2025 |
243,000 |
215,266 |
23,678 |
1,000 |
22,678 |
||
|
2024 |
02/13/2024 |
233,000 |
208,997 |
22,989 |
1,000 |
21,989 |
||
|
2023 |
02/14/2023 |
228,000 |
202,910 |
22,320 |
1,000 |
21,320 |
||
|
2022 |
03/15/2022 |
197,000 |
197,000 |
21,670 |
1,000 |
20,670 |
||
| Property Building Permit History | |||||||||||
|---|---|---|---|---|---|---|---|---|---|---|---|
| Issued | Permit # | Provided by | Bldg # | Description | Est Construction Cost | Status | |||||
| No Building Permit records returned. | |||||||||||
| Click button on building number to access detailed information: | ||||||
|---|---|---|---|---|---|---|
| Bldg # | Vacant/Improved Land | Bldg Description | Year Built | SqFt | # Stories | |
|
1 |
Improved |
Ranch 1 Story |
1979 |
1,752 |
1 Stories |
|