|
|
|
| Larry Stein Oklahoma County Assessor (405) 713-1200 - Public Access System |
|
|
|
|
|
|
| Real Property Display - Screen Produced 4/2/2026 9:08:18 AM | ||||
|---|---|---|---|---|
| Account: R144513220 | Type: Residential | Location: |
6505 ROCK CREEK CIR |
|
| Building Name/Occupant: |
|
OKLAHOMA CITY |
||
| Owner Name 1: | SAFFOLD TEQUILLA ARNAE & MICHAEL |
Parcel PIN#: |
3932-14-451-3220 |
|
| Owner Name 2: | 1/4 section #: |
3932 |
||
| Owner Name 3: | Parent Acct: |
|
||
| Billing Address: | 6505 ROCK CREEK CIR | Tax District: |
|
|
| City, State, Zip | OKLAHOMA CITY, OK 73132 | School System: |
Putnam City #1 |
|
|
Country: (If noted) |
Land Size: |
0.1609 Acres |
||
|
Land Value: 37,843 |
|
|||
|
Sect 33-T13N-R4W Qtr NW |
ROCK KNOLL
Block
020
Lot
000
|
|||
| Full Legal Description: ROCK KNOLL 020 000 PTS OF LOTS 13 & 14 BEG SE/C LOT 13 TH W56.40FT NWLY 19.06FT NELY 110.85FT TO PT ON N LINE OF LOT 14 WHICH PT IS 34.72FT NW OF NE/C LOT 14 TH SELY 34.72FT TO NE/C LOT 14 SELY 36.46FT TO NE/C LOT 13 S82.93FT OT PT OF BEG |
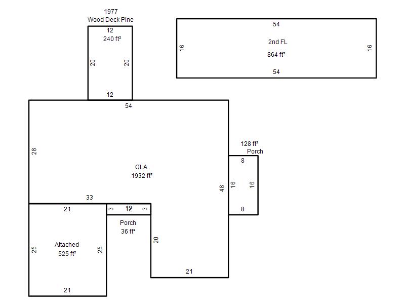
| Photo & Sketch (if available) | Comp Sales (ordered by relevancy) |
|
||||||||||||||||||
|
||||||||||||||||||||
| Value History (*The County Treasurer 405-713-1300 posts & collects actual tax amounts. Contact information HERE) | |||||||||||||
|---|---|---|---|---|---|---|---|---|---|---|---|---|---|
| Year | Market Value | Taxable Mkt Value | Gross Assessed | Exemption | Net Assessed | Millage | Est. Tax | Tax Savings | |||||
|
2026 |
267,500 |
243,101 |
26,740 |
0 |
26,740 |
123.17 |
$3,294 |
$331 |
|||||
|
2025 |
261,000 |
231,525 |
25,467 |
0 |
25,467 |
123.17 |
$3,137 |
$399 |
|||||
|
2024 |
257,000 |
220,500 |
24,255 |
0 |
24,255 |
122.30 |
$2,966 |
$491 |
|||||
|
2023 |
238,500 |
210,000 |
23,100 |
0 |
23,100 |
121.91 |
$2,816 |
$382 |
|||||
|
2022 |
200,000 |
200,000 |
22,000 |
0 |
22,000 |
123.41 |
$2,715 |
$0 |
|||||
| Property Account Status/Adjustments/Exemptions | ||
|---|---|---|
| Account # | Exemption Description | Amount |
|
R144513220 |
5% Capped Account |
0 |
| Property Deed Transaction History (Recorded in the County Clerk's Office) | |||||||
|---|---|---|---|---|---|---|---|
| Date | Type | Book | Page | Price | Grantor | Grantee | |
|
6/30/2021 |
|
Deeds |
$192,000 |
THUN HANS H III & DIANA |
SAFFOLD TEQUILLA ARNAE & MICHAEL |
||
|
10/28/2002 |
|
Deeds |
$0 |
THUN HANS H III |
THUN HANS H III & DIANA |
||
|
9/4/1997 |
|
Historical |
$112,500 |
WAUGH MICHAEL S & SANDRA L |
THUN HANS H III |
||
|
3/5/1996 |
|
Historical |
$116,500 |
RUTZ GARY W & JUDITH A |
WAUGH MICHAEL S & SANDRA L |
||
|
6/1/1982 |
|
Historical |
$0 |
|
RUTZ GARY W & JUDITH A |
||
| Last Mailed Notice of Value (N.O.V.) Information/History | ||||||||
|---|---|---|---|---|---|---|---|---|
| Year | Date | Market Value | Taxable Market Value | Gross Assessed | Exemption | Net Assessed | ||
|
2026 |
02/23/2026 |
267,500 |
243,101 |
26,740 |
0 |
26,740 |
||
|
2025 |
02/14/2025 |
261,000 |
231,525 |
25,467 |
0 |
25,467 |
||
|
2024 |
02/13/2024 |
257,000 |
220,500 |
24,255 |
0 |
24,255 |
||
|
2023 |
02/14/2023 |
238,500 |
210,000 |
23,100 |
0 |
23,100 |
||
|
2022 |
03/15/2022 |
200,000 |
200,000 |
22,000 |
0 |
22,000 |
||
| Property Building Permit History | |||||||||||
|---|---|---|---|---|---|---|---|---|---|---|---|
| Issued | Permit # | Provided by | Bldg # | Description | Est Construction Cost | Status | |||||
| No Building Permit records returned. | |||||||||||
| Click button on building number to access detailed information: | ||||||
|---|---|---|---|---|---|---|
| Bldg # | Vacant/Improved Land | Bldg Description | Year Built | SqFt | # Stories | |
|
1 |
Improved |
1½ Story Fin |
1977 |
2,796 |
1.5 Stories |
|