|
|
|
| Larry Stein Oklahoma County Assessor (405) 713-1200 - Public Access System |
|
|
|
|
|
|
| Real Property Display - Screen Produced 4/3/2026 5:39:05 AM | ||||
|---|---|---|---|---|
| Account: R189291030 | Type: Residential | Location: |
10 EARLY DAWN DR |
|
| Building Name/Occupant: |
|
EDMOND |
||
| Owner Name 1: | TAYLOR BRITTANY LYNN |
Parcel PIN#: |
4515-18-929-1030 |
|
| Owner Name 2: | TAYLOR ADARN ROBERT | 1/4 section #: |
4515 |
|
| Owner Name 3: | Parent Acct: |
|
||
| Billing Address: | 10 EARLY DAWN DR | Tax District: |
|
|
| City, State, Zip | EDMOND, OK 73034 | School System: |
Edmond #12 |
|
|
Country: (If noted) |
Land Size: |
0.9100 Acres |
||
|
Land Value: 80,086 |
|
|||
|
Sect 29-T14N-R2W Qtr SW |
THUNDERHEAD HILLS
Block
002
Lot
004
|
|||
| Full Legal Description: THUNDERHEAD HILLS 002 004 |
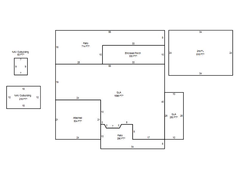
| Photo & Sketch (if available) | Comp Sales (ordered by relevancy) |
|
||||||||||||||||||
|
||||||||||||||||||||
| Value History (*The County Treasurer 405-713-1300 posts & collects actual tax amounts. Contact information HERE) | |||||||||||||
|---|---|---|---|---|---|---|---|---|---|---|---|---|---|
| Year | Market Value | Taxable Mkt Value | Gross Assessed | Exemption | Net Assessed | Millage | Est. Tax | Tax Savings | |||||
|
2026 |
410,000 |
410,000 |
45,100 |
0 |
45,100 |
105.16 |
$4,743 |
$0 |
|||||
|
2025 |
408,000 |
408,000 |
44,880 |
0 |
44,880 |
105.16 |
$4,720 |
$0 |
|||||
|
2024 |
418,000 |
404,066 |
44,446 |
0 |
44,446 |
105.03 |
$4,668 |
$161 |
|||||
|
2023 |
407,500 |
384,825 |
42,330 |
0 |
42,330 |
104.24 |
$4,413 |
$260 |
|||||
|
2022 |
366,500 |
366,500 |
40,315 |
0 |
40,315 |
104.64 |
$4,219 |
$0 |
|||||
| Property Account Status/Adjustments/Exemptions | ||
|---|---|---|
| Account # | Exemption Description | Amount |
|
R189291030 |
5% Capped Account |
0 |
| Property Deed Transaction History (Recorded in the County Clerk's Office) | |||||||
|---|---|---|---|---|---|---|---|
| Date | Type | Book | Page | Price | Grantor | Grantee | |
|
7/29/2021 |
|
Deeds |
$375,000 |
ARROWOOD DONALD R III |
TAYLOR BRITTANY LYNN |
||
|
3/28/2012 |
|
Deeds |
$225,000 |
GARINGER STANLEY A |
ARROWOOD DONALD R III |
||
|
7/5/2005 |
|
Deeds |
$0 |
GARINGER STANLEY A & HELEN L |
GARINGER STANLEY A |
||
|
9/1/1978 |
|
Historical |
$0 |
|
GARINGER STANLEY A & HELEN L |
||
| Last Mailed Notice of Value (N.O.V.) Information/History | ||||||||
|---|---|---|---|---|---|---|---|---|
| Year | Date | Market Value | Taxable Market Value | Gross Assessed | Exemption | Net Assessed | ||
|
2026 |
02/06/2026 |
410,000 |
410,000 |
45,100 |
0 |
45,100 |
||
|
2025 |
01/31/2025 |
408,000 |
408,000 |
44,880 |
0 |
44,880 |
||
|
2024 |
01/22/2024 |
418,000 |
404,066 |
44,446 |
0 |
44,446 |
||
|
2023 |
01/23/2023 |
407,500 |
384,825 |
42,330 |
0 |
42,330 |
||
|
2022 |
02/22/2022 |
366,500 |
366,500 |
40,315 |
0 |
40,315 |
||
| Property Building Permit History | ||||||
|---|---|---|---|---|---|---|
| Issued | Permit # | Provided by | Bldg # | Description | Est Construction Cost | Status |
|
9/1/1997 |
10261369 |
EDMOND |
1 |
Add On |
15,000 |
Inactive |
| Click button on building number to access detailed information: | ||||||
|---|---|---|---|---|---|---|
| Bldg # | Vacant/Improved Land | Bldg Description | Year Built | SqFt | # Stories | |
|
1 |
Improved |
1½ Story Fin |
1978 |
2,762 |
1.5 Stories |
|