|
|
|
| Larry Stein Oklahoma County Assessor (405) 713-1200 - Public Access System |
|
|
|
|
|
|
| Real Property Display - Screen Produced 4/2/2026 2:43:35 AM | ||||
|---|---|---|---|---|
| Account: R204731270 | Type: Residential | Location: |
1601 STRAYFOX XING |
|
| Building Name/Occupant: |
|
UNINCORPORATED |
||
| Owner Name 1: | EUSTACE TIFFANY N |
Parcel PIN#: |
4668-20-473-1270 |
|
| Owner Name 2: | 1/4 section #: |
4668 |
||
| Owner Name 3: | Parent Acct: |
4668-25-917-2000 |
||
| Billing Address: | 1601 STRAYFOX XING | Tax District: |
|
|
| City, State, Zip | EDMOND, OK 73012 | School System: |
Deer Creek #6 |
|
|
Country: (If noted) |
Land Size: |
0.3127 Acres |
||
|
Land Value: 45,000 |
|
|||
|
Sect 17-T14N-R3W Qtr NW |
WESTWIND IV AT SETTLERS CROSSING
Block
002
Lot
016
|
|||
| Full Legal Description: WESTWIND IV AT SETTLERS CROSSING 002 016 |
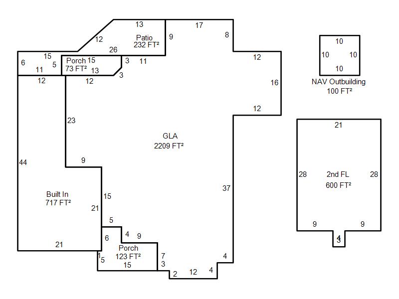
| Photo & Sketch (if available) | Comp Sales (ordered by relevancy) |
|
||||||||||||||||||
|
||||||||||||||||||||
| Value History (*The County Treasurer 405-713-1300 posts & collects actual tax amounts. Contact information HERE) | |||||||||||||
|---|---|---|---|---|---|---|---|---|---|---|---|---|---|
| Year | Market Value | Taxable Mkt Value | Gross Assessed | Exemption | Net Assessed | Millage | Est. Tax | Tax Savings | |||||
|
2026 |
404,000 |
334,449 |
36,788 |
1,000 |
35,788 |
114.35 |
$4,093 |
$989 |
|||||
|
2025 |
400,500 |
324,708 |
35,717 |
1,000 |
34,717 |
114.35 |
$3,970 |
$1,068 |
|||||
|
2024 |
391,000 |
315,251 |
34,677 |
1,000 |
33,677 |
116.19 |
$3,913 |
$1,084 |
|||||
|
2023 |
369,000 |
306,069 |
33,667 |
1,000 |
32,667 |
116.77 |
$3,815 |
$925 |
|||||
|
2022 |
312,500 |
297,155 |
32,687 |
1,000 |
31,687 |
114.81 |
$3,638 |
$309 |
|||||
| Property Account Status/Adjustments/Exemptions | ||
|---|---|---|
| Account # | Exemption Description | Amount |
|
R204731270 |
3% Cap Homestead |
0 |
|
R204731270 |
Homestead |
1,000 |
| Property Deed Transaction History (Recorded in the County Clerk's Office) | ||||||||||
|---|---|---|---|---|---|---|---|---|---|---|
| Date | Type | Book | Page | Price | Grantor | Grantee | ||||
|
5/13/2021 |
|
Deeds |
$ |
EUSTACE RUSSELL K |
EUSTACE TIFFANY N |
|||||
|
10/23/2020 |
|
Deeds |
$280,000 |
ALLEN HUFFLING KATHY SUE |
EUSTACE RUSSELL K |
|||||
|
4/10/2015 |
|
Deeds |
$0 |
ALLEN ANDREW H & KATHY S |
ALLEN KATHY S |
|||||
|
4/10/2015 |
|
Deeds |
$0 |
ALLEN KATHY S |
ALLEN HUFFLING KATHY SUE |
|||||
|
4/29/2011 |
|
Deeds |
$243,000 |
LAUBACH MARILYN |
ALLEN ANDREW H & KATHY S |
|||||
| Last Mailed Notice of Value (N.O.V.) Information/History | ||||||||
|---|---|---|---|---|---|---|---|---|
| Year | Date | Market Value | Taxable Market Value | Gross Assessed | Exemption | Net Assessed | ||
|
2026 |
02/06/2026 |
404,000 |
334,449 |
36,788 |
1,000 |
35,788 |
||
|
2025 |
01/31/2025 |
400,500 |
324,708 |
35,717 |
1,000 |
34,717 |
||
|
2024 |
01/22/2024 |
391,000 |
315,251 |
34,677 |
1,000 |
33,677 |
||
|
2023 |
01/23/2023 |
369,000 |
306,069 |
33,667 |
1,000 |
32,667 |
||
|
2022 |
02/22/2022 |
312,500 |
297,155 |
32,687 |
1,000 |
31,687 |
||
| Property Building Permit History | ||||||
|---|---|---|---|---|---|---|
| Issued | Permit # | Provided by | Bldg # | Description | Est Construction Cost | Status |
|
5/11/2004 |
10291454 |
COUNTY |
1 |
Main Dwellin |
230,000 |
Inactive |
| Click button on building number to access detailed information: | ||||||
|---|---|---|---|---|---|---|
| Bldg # | Vacant/Improved Land | Bldg Description | Year Built | SqFt | # Stories | |
|
1 |
Improved |
1½ Story Fin |
2004 |
2,809 |
1.5 Stories |
|