|
|
|
| Larry Stein Oklahoma County Assessor (405) 713-1200 - Public Access System |
|
|
|
|
|
|
| Real Property Display - Screen Produced 4/2/2026 12:58:02 AM | ||||
|---|---|---|---|---|
| Account: R151263020 | Type: Residential | Location: |
4225 SPIVA DR |
|
| Building Name/Occupant: |
|
DEL CITY |
||
| Owner Name 1: | TRINIDAD FABIAN MARTINEZ |
Parcel PIN#: |
1466-15-126-3020 |
|
| Owner Name 2: | PERALTA SARAHI GOMEZ | 1/4 section #: |
1466 |
|
| Owner Name 3: | Parent Acct: |
|
||
| Billing Address: | 4225 SPIVA DR | Tax District: |
|
|
| City, State, Zip | DEL CITY, OK 73115 | School System: |
Mid-Del #52 |
|
|
Country: (If noted) |
Land Size: |
0.2282 Acres |
||
|
Land Value: 35,784 |
|
|||
|
Sect 17-T11N-R2W Qtr SE |
DEL AIRE SEC 5
Block
008
Lot
018
|
|||
| Full Legal Description: DEL AIRE SEC 5 008 018 |
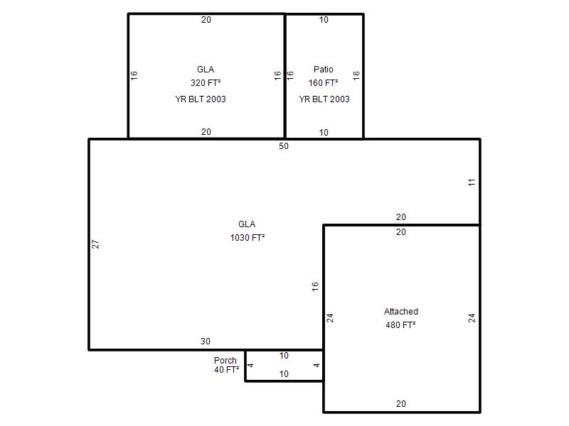
| Photo & Sketch (if available) | Comp Sales (ordered by relevancy) |
|
||||||||||||||||||
|
||||||||||||||||||||
| Value History (*The County Treasurer 405-713-1300 posts & collects actual tax amounts. Contact information HERE) | |||||||||||||
|---|---|---|---|---|---|---|---|---|---|---|---|---|---|
| Year | Market Value | Taxable Mkt Value | Gross Assessed | Exemption | Net Assessed | Millage | Est. Tax | Tax Savings | |||||
|
2026 |
165,500 |
165,500 |
18,205 |
0 |
18,205 |
114.72 |
$2,088 |
$0 |
|||||
|
2025 |
163,500 |
159,862 |
17,584 |
0 |
17,584 |
114.72 |
$2,017 |
$46 |
|||||
|
2024 |
155,000 |
152,250 |
16,747 |
0 |
16,747 |
117.21 |
$1,963 |
$35 |
|||||
|
2023 |
145,000 |
145,000 |
15,950 |
0 |
15,950 |
112.46 |
$1,794 |
$0 |
|||||
|
2022 |
139,000 |
139,000 |
15,290 |
0 |
15,290 |
110.76 |
$1,694 |
$0 |
|||||
| Property Account Status/Adjustments/Exemptions | ||
|---|---|---|
| Account # | Exemption Description | Amount |
|
R151263020 |
5% Capped Account |
0 |
| Property Deed Transaction History (Recorded in the County Clerk's Office) | |||||||
|---|---|---|---|---|---|---|---|
| Date | Type | Book | Page | Price | Grantor | Grantee | |
|
12/21/2021 |
|
Deeds |
$0 |
COLLINSWORTH MICHAEL L & VILAI |
COLLINSWORTH VILAI |
||
|
12/21/2021 |
|
Deeds |
$140,000 |
COLLINSWORTH VILAI |
TRINIDAD FABIAN MARTINEZ |
||
|
5/3/1990 |
|
Historical |
$46,000 |
THOMAS STEPHEN L |
COLLINSWORTH MICHAEL L & VILAI |
||
|
9/1/1983 |
|
Historical |
$0 |
|
THOMAS STEPHEN L |
||
| Last Mailed Notice of Value (N.O.V.) Information/History | ||||||||
|---|---|---|---|---|---|---|---|---|
| Year | Date | Market Value | Taxable Market Value | Gross Assessed | Exemption | Net Assessed | ||
|
2026 |
02/06/2026 |
165,500 |
165,500 |
18,205 |
0 |
18,205 |
||
|
2025 |
01/31/2025 |
163,500 |
159,862 |
17,584 |
0 |
17,584 |
||
|
2024 |
01/22/2024 |
155,000 |
152,250 |
16,747 |
0 |
16,747 |
||
|
2023 |
01/23/2023 |
145,000 |
145,000 |
15,950 |
0 |
15,950 |
||
|
2022 |
02/22/2022 |
139,000 |
139,000 |
15,290 |
0 |
15,290 |
||
| Property Building Permit History | ||||||
|---|---|---|---|---|---|---|
| Issued | Permit # | Provided by | Bldg # | Description | Est Construction Cost | Status |
|
4/23/2003 |
10248368 |
DEL CITY |
1 |
Add On |
40,000 |
Inactive |
| Click button on building number to access detailed information: | ||||||
|---|---|---|---|---|---|---|
| Bldg # | Vacant/Improved Land | Bldg Description | Year Built | SqFt | # Stories | |
|
1 |
Improved |
Ranch 1 Story |
1971 |
1,350 |
1 Stories |
|