|
|
|
| Larry Stein Oklahoma County Assessor (405) 713-1200 - Public Access System |
|
|
|
|
|
|
| Real Property Display - Screen Produced 4/2/2026 1:42:30 AM | ||||
|---|---|---|---|---|
| Account: R217811430 | Type: Residential | Location: |
2232 EL CAJON ST |
|
| Building Name/Occupant: |
|
EDMOND |
||
| Owner Name 1: | AMMERMAN CHARI K TRUST |
Parcel PIN#: |
4488-21-781-1430 |
|
| Owner Name 2: | 1/4 section #: |
4488 |
||
| Owner Name 3: | Parent Acct: |
4488-18-685-2010 |
||
| Billing Address: | 2232 EL CAJON ST | Tax District: |
|
|
| City, State, Zip | EDMOND, OK 73034-7444 | School System: |
Edmond #12 |
|
|
Country: (If noted) |
Land Size: |
0.1725 Acres |
||
|
Land Value: 77,394 |
|
|||
|
Sect 22-T14N-R2W Qtr NW |
COVELL VALLEY PH 2
Block
004
Lot
025
|
|||
| Full Legal Description: COVELL VALLEY PH 2 BLK 004 LOT 025 |
| Photo & Sketch (if available) | Comp Sales (ordered by relevancy) |
|
||||||||||||||||||
|
||||||||||||||||||||
| Value History (*The County Treasurer 405-713-1300 posts & collects actual tax amounts. Contact information HERE) | |||||||||||||
|---|---|---|---|---|---|---|---|---|---|---|---|---|---|
| Year | Market Value | Taxable Mkt Value | Gross Assessed | Exemption | Net Assessed | Millage | Est. Tax | Tax Savings | |||||
|
2026 |
440,500 |
440,500 |
48,455 |
1,000 |
47,455 |
105.16 |
$4,990 |
$105 |
|||||
|
2025 |
436,000 |
436,000 |
47,960 |
1,000 |
46,960 |
105.16 |
$4,938 |
$105 |
|||||
|
2024 |
434,000 |
434,000 |
47,740 |
1,000 |
46,740 |
105.03 |
$4,909 |
$105 |
|||||
|
2023 |
13,881 |
13,881 |
1,526 |
0 |
1,526 |
104.24 |
$159 |
$0 |
|||||
|
2022 |
13,881 |
13,881 |
1,526 |
0 |
1,526 |
104.64 |
$160 |
$0 |
|||||
| Property Account Status/Adjustments/Exemptions | ||
|---|---|---|
| Account # | Exemption Description | Amount |
|
R217811430 |
3% Cap Homestead |
0 |
|
R217811430 |
Homestead |
1,000 |
| Property Deed Transaction History (Recorded in the County Clerk's Office) | |||||||
|---|---|---|---|---|---|---|---|
| Date | Type | Book | Page | Price | Grantor | Grantee | |
|
10/7/2025 |
|
Deeds |
$0 |
AMMERMAN CHARI |
AMMERMAN CHARI K TRUST |
||
|
6/8/2023 |
|
Deeds |
$400,000 |
URBAN NEST HOMES LLC |
AMMERMAN CHARI |
||
|
10/25/2021 |
|
Deeds |
$66,000 |
JDC DEVELOPMENT LLC |
URBAN NEST HOMES LLC |
||
|
11/7/2018 |
|
Deeds |
$1,925,000 |
COVELL TUCCI LLC |
JDC DEVELOPMENT LLC |
||
| Last Mailed Notice of Value (N.O.V.) Information/History | ||||||
|---|---|---|---|---|---|---|
| Year | Date | Market Value | Taxable Market Value | Gross Assessed | Exemption | Net Assessed |
|
2026 |
02/06/2026 |
440,500 |
440,500 |
48,455 |
1,000 |
47,455 |
|
2025 |
01/31/2025 |
436,000 |
436,000 |
47,960 |
1,000 |
46,960 |
|
2024 |
01/22/2024 |
434,000 |
434,000 |
47,740 |
0 |
47,740 |
|
2021 |
02/24/2021 |
13,881 |
13,881 |
1,526 |
0 |
1,526 |
| Property Building Permit History | ||||||
|---|---|---|---|---|---|---|
| Issued | Permit # | Provided by | Bldg # | Description | Est Construction Cost | Status |
|
4/26/2022 |
B22-00196 |
|
|
Main Dwellin |
395,000 |
Inactive |
| Click button on building number to access detailed information: | ||||||
|---|---|---|---|---|---|---|
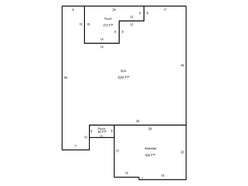
| Bldg # | Vacant/Improved Land | Bldg Description | Year Built | SqFt | # Stories | |
|
1 |
Improved |
Ranch 1 Story |
2022 |
2,240 |
1 Stories |
|