|
|
|
| Larry Stein Oklahoma County Assessor (405) 713-1200 - Public Access System |
|
|
|
|
|
|
| Real Property Display - Screen Produced 4/4/2026 2:02:11 PM | ||||
|---|---|---|---|---|
| Account: R219141110 | Type: Residential | Location: |
8617 RICARD DR |
|
| Building Name/Occupant: |
|
OKLAHOMA CITY |
||
| Owner Name 1: | LEGATE JASON M |
Parcel PIN#: |
1530-21-914-1110 |
|
| Owner Name 2: | 1/4 section #: |
1530 |
||
| Owner Name 3: | Parent Acct: |
1530-14-394-2100 |
||
| Billing Address: | 8617 RICARD DR | Tax District: |
|
|
| City, State, Zip | OKLAHOMA CITY, OK 73135-6401 | School System: |
Moore #2 |
|
|
Country: (If noted) |
Land Size: |
0.1320 Acres |
||
|
Land Value: 52,613 |
|
|||
|
Sect 33-T11N-R2W Qtr SE |
ABBOT LAKE SEC 2
Block
009
Lot
005
|
|||
| Full Legal Description: ABBOT LAKE SEC 2 BLK 009 LOT 005 |
| Photo & Sketch (if available) | Comp Sales (ordered by relevancy) |
|
||||||||||||||||||
|
||||||||||||||||||||
| Value History (*The County Treasurer 405-713-1300 posts & collects actual tax amounts. Contact information HERE) | ||||||||
|---|---|---|---|---|---|---|---|---|
| Year | Market Value | Taxable Mkt Value | Gross Assessed | Exemption | Net Assessed | Millage | Est. Tax | Tax Savings |
|
2026 |
312,000 |
312,000 |
34,320 |
34,320 |
0 |
123.20 |
$0 |
$4,228 |
|
2025 |
315,500 |
315,500 |
34,705 |
34,705 |
0 |
123.20 |
$0 |
$4,276 |
|
2024 |
4,963 |
4,963 |
545 |
454 |
91 |
122.28 |
$11 |
$56 |
|
2023 |
4,963 |
4,963 |
545 |
0 |
545 |
121.63 |
$66 |
$0 |
| Property Account Status/Adjustments/Exemptions | ||
|---|---|---|
| Account # | Exemption Description | Amount |
|
R219141110 |
3% Cap Homestead |
0 |
|
R219141110 |
100% DAV Exemption |
100 |
|
R219141110 |
DAV Homestead |
0 |
| Property Deed Transaction History (Recorded in the County Clerk's Office) | |||||||
|---|---|---|---|---|---|---|---|
| Date | Type | Book | Page | Price | Grantor | Grantee | |
|
2/23/2024 |
|
Deeds |
$319,000 |
IDEAL HOMES OF NORMAN LP |
LEGATE JASON M |
||
|
2/9/2023 |
|
Deeds |
$48,000 |
IH DEVELOPMENT LLC |
IDEAL HOMES OF NORMAN LP |
||
|
8/26/2022 |
|
Hmstd Off & |
$0 |
ABBOT LAKE LAND FUND LLC |
IH DEVELOPMENT LLC |
||
| Last Mailed Notice of Value (N.O.V.) Information/History | ||||||
|---|---|---|---|---|---|---|
| Year | Date | Market Value | Taxable Market Value | Gross Assessed | Exemption | Net Assessed |
|
2025 |
01/31/2025 |
315,500 |
315,500 |
34,705 |
34,705 |
0 |
|
2023 |
01/23/2023 |
4,963 |
4,963 |
545 |
0 |
545 |
|
2023 |
03/02/2023 |
4,963 |
4,963 |
545 |
0 |
545 |
| Property Building Permit History | ||||||
|---|---|---|---|---|---|---|
| Issued | Permit # | Provided by | Bldg # | Description | Est Construction Cost | Status |
|
3/13/2023 |
BLDR-2023-00188 |
|
|
Main Dwellin |
340,000 |
Inactive |
| Click button on building number to access detailed information: | ||||||
|---|---|---|---|---|---|---|
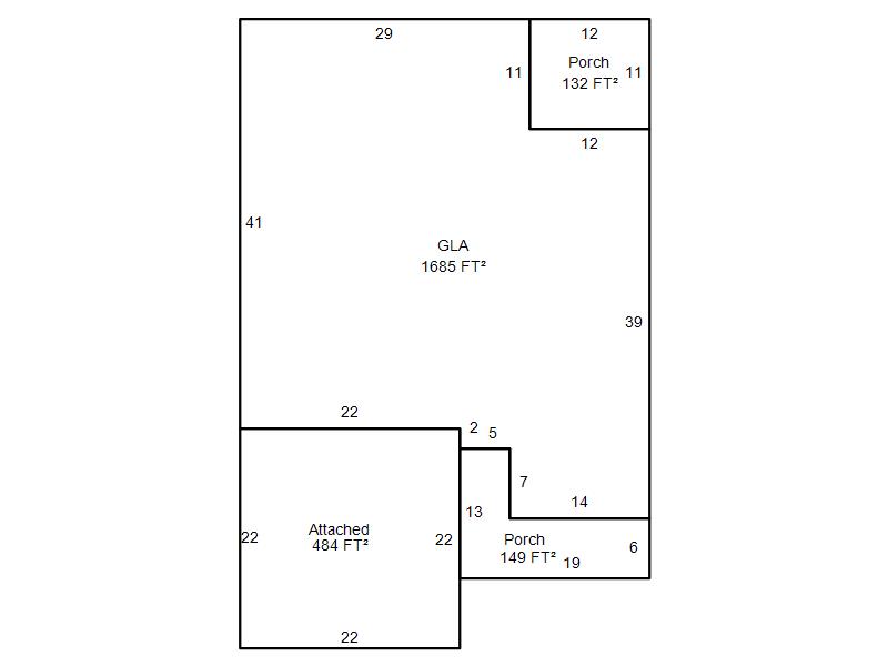
| Bldg # | Vacant/Improved Land | Bldg Description | Year Built | SqFt | # Stories | |
|
1 |
Improved |
Ranch 1 Story |
2023 |
1,685 |
1 Stories |
|