|
|
|
| Larry Stein Oklahoma County Assessor (405) 713-1200 - Public Access System |
|
|
|
|
|
|
| Real Property Display - Screen Produced 4/4/2026 4:06:26 PM | ||||
|---|---|---|---|---|
| Account: R121011200 | Type: Residential | Location: |
4713 TINKER RD |
|
| Building Name/Occupant: |
|
OKLAHOMA CITY |
||
| Owner Name 1: | MARQUEZ PABLO |
Parcel PIN#: |
1484-12-101-1200 |
|
| Owner Name 2: | 1/4 section #: |
1484 |
||
| Owner Name 3: | Parent Acct: |
|
||
| Billing Address: | 4713 TINKER RD | Tax District: |
|
|
| City, State, Zip | OKLAHOMA CITY, OK 73135 | School System: |
Mid-Del #52 |
|
|
Country: (If noted) |
Land Size: |
0.1612 Acres |
||
|
Land Value: 14,040 |
|
|||
|
Sect 21-T11N-R2W Qtr NW |
SPRING CREEK ACRES
Block
001
Lot
000
|
|||
| Full Legal Description: SPRING CREEK ACRES 001 000 LOTS 21 & 22 |
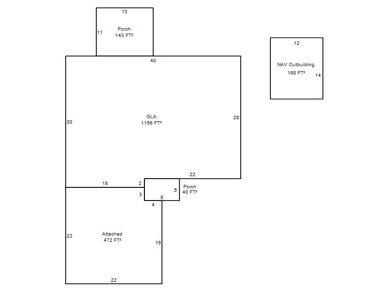
| Photo & Sketch (if available) | Comp Sales (ordered by relevancy) |
|
||||||||||||||||||
|
||||||||||||||||||||
| Value History (*The County Treasurer 405-713-1300 posts & collects actual tax amounts. Contact information HERE) | |||||||||||||
|---|---|---|---|---|---|---|---|---|---|---|---|---|---|
| Year | Market Value | Taxable Mkt Value | Gross Assessed | Exemption | Net Assessed | Millage | Est. Tax | Tax Savings | |||||
|
2026 |
149,500 |
113,648 |
12,501 |
0 |
12,501 |
126.46 |
$1,581 |
$499 |
|||||
|
2025 |
138,000 |
108,237 |
11,905 |
0 |
11,905 |
126.46 |
$1,506 |
$414 |
|||||
|
2024 |
125,000 |
103,083 |
11,338 |
0 |
11,338 |
128.51 |
$1,457 |
$310 |
|||||
|
2023 |
110,500 |
98,175 |
10,799 |
0 |
10,799 |
122.94 |
$1,328 |
$167 |
|||||
|
2022 |
93,500 |
93,500 |
10,285 |
0 |
10,285 |
122.11 |
$1,256 |
$0 |
|||||
| Property Account Status/Adjustments/Exemptions | ||
|---|---|---|
| Account # | Exemption Description | Amount |
|
R121011200 |
5% Capped Account |
0 |
| Property Deed Transaction History (Recorded in the County Clerk's Office) | ||||||||||
|---|---|---|---|---|---|---|---|---|---|---|
| Date | Type | Book | Page | Price | Grantor | Grantee | ||||
|
6/7/2021 |
|
Deeds |
$90,000 |
URIBE SALVADOR |
MARQUEZ PABLO |
|||||
|
12/12/2008 |
|
Deeds |
$96,000 |
SMITH DELOIS S |
URIBE SALVADOR |
|||||
|
7/28/2004 |
|
Mult Parcel |
$85,000 |
ACC CONSTRUCTION & MAINTENANCE INC |
SMITH DELOIS S |
|||||
|
7/30/2003 |
|
Mult Parcel |
$3,000 |
WALT DAVIDSON CONSTRUCTION COMPANY |
ACC CONSTRUCTION & MAINTENANCE INC |
|||||
|
12/17/2002 |
|
Other |
$0 |
CITY OF OKLAHOMA CITY |
WALT DAVIDSON CONSTRUCTION COMPANY |
|||||
| Last Mailed Notice of Value (N.O.V.) Information/History | ||||||||
|---|---|---|---|---|---|---|---|---|
| Year | Date | Market Value | Taxable Market Value | Gross Assessed | Exemption | Net Assessed | ||
|
2026 |
02/06/2026 |
149,500 |
113,648 |
12,501 |
0 |
12,501 |
||
|
2025 |
01/31/2025 |
138,000 |
108,237 |
11,905 |
0 |
11,905 |
||
|
2024 |
01/22/2024 |
125,000 |
103,083 |
11,338 |
0 |
11,338 |
||
|
2023 |
01/23/2023 |
110,500 |
98,175 |
10,799 |
0 |
10,799 |
||
|
2022 |
02/22/2022 |
93,500 |
93,500 |
10,285 |
0 |
10,285 |
||
| Property Building Permit History | ||||||
|---|---|---|---|---|---|---|
| Issued | Permit # | Provided by | Bldg # | Description | Est Construction Cost | Status |
|
8/11/2003 |
10281545 |
OKLAHOMA CITY |
1 |
Main Dwellin |
45,000 |
Inactive |
| Click button on building number to access detailed information: | ||||||
|---|---|---|---|---|---|---|
| Bldg # | Vacant/Improved Land | Bldg Description | Year Built | SqFt | # Stories | |
|
1 |
Improved |
Ranch 1 Story |
2003 |
1,156 |
1 Stories |
|