|
|
|
| Larry Stein Oklahoma County Assessor (405) 713-1200 - Public Access System |
|
|
|
|
|
|
| Real Property Display - Screen Produced 4/2/2026 1:50:42 PM | ||||
|---|---|---|---|---|
| Account: R093431200 | Type: Exempt | Location: |
3121 S HARVEY AVE |
|
| Building Name/Occupant: |
|
OKLAHOMA CITY |
||
| Owner Name 1: | IGLESIA DE DIOS UNITED INC |
Parcel PIN#: |
1661-09-343-1200 |
|
| Owner Name 2: | 1/4 section #: |
1661 |
||
| Owner Name 3: | Parent Acct: |
|
||
| Billing Address: | 3120 S HARVEY AVE | Tax District: |
|
|
| City, State, Zip | OKLAHOMA CITY, OK 73109-6311 | School System: |
Oklahoma City #89 |
|
|
Country: (If noted) |
Land Size: |
0.3214 Acres |
||
|
Land Value: 0 |
|
|||
|
Sect 16-T11N-R3W Qtr NE |
OLIVER PARK ADDITION
Block
007
Lot
000
|
|||
| Full Legal Description: OLIVER PARK ADDITION 007 000 LOTS 9 THRU 12 |
| No comparable sales report available. | ||||||||||||||||||||||
|
||||||||||||||||||||||
| Value History (*The County Treasurer 405-713-1300 posts & collects actual tax amounts. Contact information HERE) | |||||||||||||
|---|---|---|---|---|---|---|---|---|---|---|---|---|---|
| Year | Market Value | Taxable Mkt Value | Gross Assessed | Exemption | Net Assessed | Millage | Est. Tax | Tax Savings | |||||
|
2026 |
0 |
0 |
0 |
0 |
0 |
119.02 |
$0 |
$0 |
|||||
|
2025 |
0 |
0 |
0 |
0 |
0 |
119.02 |
$0 |
$0 |
|||||
|
2024 |
15,133 |
15,133 |
1,664 |
1,664 |
0 |
119.70 |
$0 |
$199 |
|||||
|
2023 |
107,500 |
54,500 |
5,995 |
2,000 |
3,995 |
118.33 |
$473 |
$927 |
|||||
|
2022 |
93,500 |
54,500 |
5,995 |
2,000 |
3,995 |
112.69 |
$450 |
$709 |
|||||
| Property Account Status/Adjustments/Exemptions | ||
|---|---|---|
| Account # | Exemption Description | Amount |
|
R093431200 |
5% Capped Account |
0 |
|
R093431200 |
Exempt |
100 |
| Property Deed Transaction History (Recorded in the County Clerk's Office) | |||||||
|---|---|---|---|---|---|---|---|
| Date | Type | Book | Page | Price | Grantor | Grantee | |
|
6/22/2024 |
|
Deeds |
$113,000 |
WILSON JACK W TRUSTEE |
IGLESIA DE DIOS UNITED INC |
||
|
7/24/1998 |
|
Historical |
$35,500 |
CHURCH OF GOD |
WILSON JACK W TRUSTEE |
||
|
11/11/1911 |
|
Historical |
$0 |
|
CHURCH OF GOD |
||
| Last Mailed Notice of Value (N.O.V.) Information/History | ||||||||
|---|---|---|---|---|---|---|---|---|
| Year | Date | Market Value | Taxable Market Value | Gross Assessed | Exemption | Net Assessed | ||
|
2024 |
01/22/2024 |
121,000 |
54,500 |
5,995 |
2,000 |
3,995 |
||
|
2023 |
01/23/2023 |
107,500 |
54,500 |
5,995 |
2,000 |
3,995 |
||
|
2022 |
02/22/2022 |
93,500 |
54,500 |
5,995 |
2,000 |
3,995 |
||
|
2021 |
02/24/2021 |
73,500 |
54,500 |
5,995 |
2,000 |
3,995 |
||
|
2020 |
02/21/2020 |
69,500 |
54,500 |
5,995 |
2,000 |
3,995 |
||
| Property Building Permit History | |||||||||||
|---|---|---|---|---|---|---|---|---|---|---|---|
| Issued | Permit # | Provided by | Bldg # | Description | Est Construction Cost | Status | |||||
| No Building Permit records returned. | |||||||||||
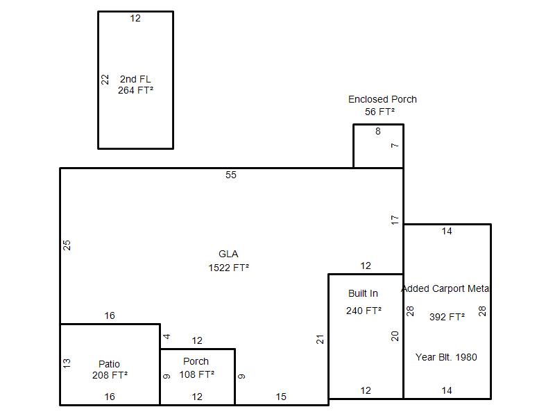
| Click button on building number to access detailed information: | ||||||
|---|---|---|---|---|---|---|
| Bldg # | Vacant/Improved Land | Bldg Description | Year Built | SqFt | # Stories | |
|
1 |
Improved |
1½ Story Fin |
1940 |
1,786 |
1.5 Stories |
|