|
|
|
| Larry Stein Oklahoma County Assessor (405) 713-1200 - Public Access System |
|
|
|
|
|
|
| Real Property Display - Screen Produced 4/2/2026 10:52:15 AM | ||||
|---|---|---|---|---|
| Account: R113419634 | Type: Residential | Location: |
5413 S LINN AVE |
|
| Building Name/Occupant: |
|
OKLAHOMA CITY |
||
| Owner Name 1: | VALENZUELA JOSE G PEREZ |
Parcel PIN#: |
1675-11-341-9634 |
|
| Owner Name 2: | 1/4 section #: |
1675 |
||
| Owner Name 3: | Parent Acct: |
|
||
| Billing Address: | 5413 S LINN AVE | Tax District: |
|
|
| City, State, Zip | OKLAHOMA CITY, OK 73119 | School System: |
Oklahoma City #89 |
|
|
Country: (If noted) |
Land Size: |
0.1680 Acres |
||
|
Land Value: 24,156 |
|
|||
|
Sect 19-T11N-R3W Qtr SW |
KNOB HILL ADDITION
Block
047
Lot
022
|
|||
| Full Legal Description: KNOB HILL ADDITION 047 022 |
| Photo & Sketch (if available) | Comp Sales (ordered by relevancy) |
|
||||||||||||||||||
|
||||||||||||||||||||
| Value History (*The County Treasurer 405-713-1300 posts & collects actual tax amounts. Contact information HERE) | |||||||||||||
|---|---|---|---|---|---|---|---|---|---|---|---|---|---|
| Year | Market Value | Taxable Mkt Value | Gross Assessed | Exemption | Net Assessed | Millage | Est. Tax | Tax Savings | |||||
|
2026 |
162,500 |
124,443 |
13,687 |
0 |
13,687 |
119.02 |
$1,629 |
$498 |
|||||
|
2025 |
164,500 |
118,518 |
13,036 |
0 |
13,036 |
119.02 |
$1,552 |
$602 |
|||||
|
2024 |
155,500 |
112,875 |
12,416 |
0 |
12,416 |
119.70 |
$1,486 |
$561 |
|||||
|
2023 |
107,500 |
107,500 |
11,825 |
0 |
11,825 |
118.33 |
$1,399 |
$0 |
|||||
|
2022 |
107,500 |
107,500 |
11,825 |
0 |
11,825 |
112.69 |
$1,333 |
$0 |
|||||
| Property Account Status/Adjustments/Exemptions | ||
|---|---|---|
| Account # | Exemption Description | Amount |
|
R113419634 |
5% Capped Account |
0 |
| Property Deed Transaction History (Recorded in the County Clerk's Office) | |||||||
|---|---|---|---|---|---|---|---|
| Date | Type | Book | Page | Price | Grantor | Grantee | |
|
2/3/2021 |
|
Deeds |
$105,000 |
KING JASON |
VALENZUELA JOSE G PEREZ |
||
|
1/11/2013 |
|
Deeds |
$42,000 |
FEDERAL NATIONAL MTG ASSOCIATION |
KING JASON |
||
|
11/5/2012 |
|
Hmstd Off & |
$0 |
FISCH HELENE |
FEDERAL NATIONAL MTG ASSOCIATION |
||
|
2/27/2007 |
|
Deeds |
$68,000 |
HODGE MARK |
FISCH HELENE |
||
|
3/1/1985 |
|
Historical |
$0 |
|
HODGE MARK |
||
| Last Mailed Notice of Value (N.O.V.) Information/History | ||||||||
|---|---|---|---|---|---|---|---|---|
| Year | Date | Market Value | Taxable Market Value | Gross Assessed | Exemption | Net Assessed | ||
|
2026 |
02/06/2026 |
162,500 |
124,443 |
13,687 |
0 |
13,687 |
||
|
2025 |
01/31/2025 |
164,500 |
118,518 |
13,036 |
0 |
13,036 |
||
|
2024 |
01/22/2024 |
155,500 |
112,875 |
12,416 |
0 |
12,416 |
||
|
2022 |
02/22/2022 |
107,500 |
107,500 |
11,825 |
0 |
11,825 |
||
|
2021 |
02/24/2021 |
77,000 |
71,400 |
7,854 |
0 |
7,854 |
||
| Property Building Permit History | |||||||||||
|---|---|---|---|---|---|---|---|---|---|---|---|
| Issued | Permit # | Provided by | Bldg # | Description | Est Construction Cost | Status | |||||
| No Building Permit records returned. | |||||||||||
| Click button on building number to access detailed information: | ||||||
|---|---|---|---|---|---|---|
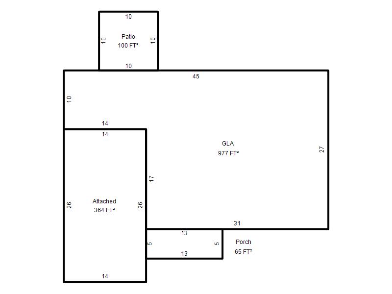
| Bldg # | Vacant/Improved Land | Bldg Description | Year Built | SqFt | # Stories | |
|
1 |
Improved |
Ranch 1 Story |
1959 |
977 |
1 Stories |
|