|
|
|
| Larry Stein Oklahoma County Assessor (405) 713-1200 - Public Access System |
|
|
|
|
|
|
| Real Property Display - Screen Produced 4/3/2026 12:10:19 PM | ||||
|---|---|---|---|---|
| Account: R113411005 | Type: Residential | Location: |
2500 SW 44TH ST |
|
| Building Name/Occupant: |
|
OKLAHOMA CITY |
||
| Owner Name 1: | KINNEY ENTERPRISES 8 LLC |
Parcel PIN#: |
1676-11-341-1005 |
|
| Owner Name 2: | 1/4 section #: |
1676 |
||
| Owner Name 3: | Parent Acct: |
|
||
| Billing Address: | PO BOX 5633 | Tax District: |
|
|
| City, State, Zip | EDMOND, OK 73083 | School System: |
Oklahoma City #89 |
|
|
Country: (If noted) |
Land Size: |
0.1646 Acres |
||
|
Land Value: 21,504 |
|
|||
|
Sect 19-T11N-R3W Qtr NW |
KNOB HILL ADDITION
Block
001
Lot
001
|
|||
| Full Legal Description: KNOB HILL ADDITION 001 001 |
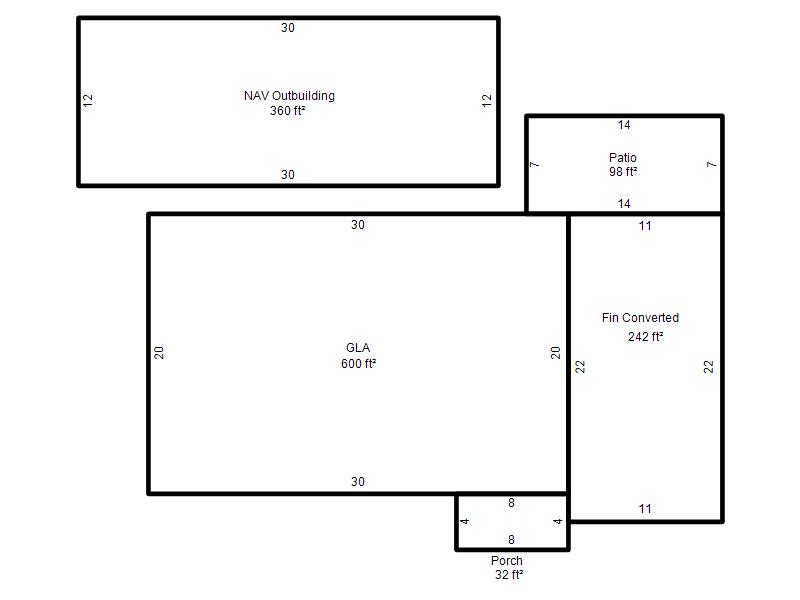
| Photo & Sketch (if available) | Comp Sales (ordered by relevancy) |
|
||||||||||||||||||
|
||||||||||||||||||||
| Value History (*The County Treasurer 405-713-1300 posts & collects actual tax amounts. Contact information HERE) | |||||||||||||
|---|---|---|---|---|---|---|---|---|---|---|---|---|---|
| Year | Market Value | Taxable Mkt Value | Gross Assessed | Exemption | Net Assessed | Millage | Est. Tax | Tax Savings | |||||
|
2026 |
80,500 |
69,283 |
7,620 |
0 |
7,620 |
119.02 |
$907 |
$147 |
|||||
|
2025 |
80,500 |
65,984 |
7,257 |
0 |
7,257 |
119.02 |
$864 |
$190 |
|||||
|
2024 |
73,000 |
62,842 |
6,912 |
0 |
6,912 |
119.70 |
$827 |
$134 |
|||||
|
2023 |
62,500 |
59,850 |
6,583 |
0 |
6,583 |
118.33 |
$779 |
$34 |
|||||
|
2022 |
57,000 |
57,000 |
6,270 |
0 |
6,270 |
112.69 |
$707 |
$0 |
|||||
| Property Account Status/Adjustments/Exemptions | ||
|---|---|---|
| Account # | Exemption Description | Amount |
|
R113411005 |
5% Capped Account |
0 |
| Property Deed Transaction History (Recorded in the County Clerk's Office) | ||||||||||
|---|---|---|---|---|---|---|---|---|---|---|
| Date | Type | Book | Page | Price | Grantor | Grantee | ||||
|
10/21/2021 |
|
Deeds |
$56,000 |
IAS INVESTMENTS LLC |
KINNEY ENTERPRISES 8 LLC |
|||||
|
9/16/2021 |
|
Deeds |
$48,000 |
GRIFFIN DONALD |
IAS INVESTMENTS LLC |
|||||
|
2/18/2008 |
|
Deeds |
$0 |
GRIFFIN CHRISTOPHER |
GRIFFIN DONALD |
|||||
|
2/18/2008 |
|
Deeds |
$0 |
GRIFFIN CHRISTOPHER |
GRIFFIN DONALD |
|||||
|
2/18/2008 |
|
Deeds |
$0 |
GRIFFIN CHRISTOPHER |
GRIFFIN DONALD |
|||||
| Last Mailed Notice of Value (N.O.V.) Information/History | ||||||||
|---|---|---|---|---|---|---|---|---|
| Year | Date | Market Value | Taxable Market Value | Gross Assessed | Exemption | Net Assessed | ||
|
2026 |
02/06/2026 |
80,500 |
69,283 |
7,620 |
0 |
7,620 |
||
|
2025 |
01/31/2025 |
80,500 |
65,984 |
7,257 |
0 |
7,257 |
||
|
2024 |
01/22/2024 |
73,000 |
62,842 |
6,912 |
0 |
6,912 |
||
|
2023 |
01/23/2023 |
62,500 |
59,850 |
6,583 |
0 |
6,583 |
||
|
2022 |
02/22/2022 |
57,000 |
57,000 |
6,270 |
0 |
6,270 |
||
| Property Building Permit History | |||||||||||
|---|---|---|---|---|---|---|---|---|---|---|---|
| Issued | Permit # | Provided by | Bldg # | Description | Est Construction Cost | Status | |||||
| No Building Permit records returned. | |||||||||||
| Click button on building number to access detailed information: | ||||||
|---|---|---|---|---|---|---|
| Bldg # | Vacant/Improved Land | Bldg Description | Year Built | SqFt | # Stories | |
|
1 |
Improved |
Ranch 1 Story |
1952 |
600 |
1 Stories |
|