|
|
|
| Larry Stein Oklahoma County Assessor (405) 713-1200 - Public Access System |
|
|
|
|
|
|
| Real Property Display - Screen Produced 4/2/2026 11:28:07 AM | ||||
|---|---|---|---|---|
| Account: R074672035 | Type: Residential | Location: |
3709 SW 40TH PL |
|
| Building Name/Occupant: |
|
OKLAHOMA CITY |
||
| Owner Name 1: | JONES GARRY L |
Parcel PIN#: |
1854-07-467-2035 |
|
| Owner Name 2: | 1/4 section #: |
1854 |
||
| Owner Name 3: | Parent Acct: |
|
||
| Billing Address: | 5700 PLEASANT HILL | Tax District: |
|
|
| City, State, Zip | MUSTANG, OK 73064 | School System: |
Oklahoma City #89 |
|
|
Country: (If noted) |
Land Size: |
0.1414 Acres |
||
|
Land Value: 8,932 |
|
|||
|
Sect 14-T11N-R4W Qtr SE |
CROCKER YOUNG
Block
006
Lot
003
|
|||
| Full Legal Description: CROCKER YOUNG 006 003 |
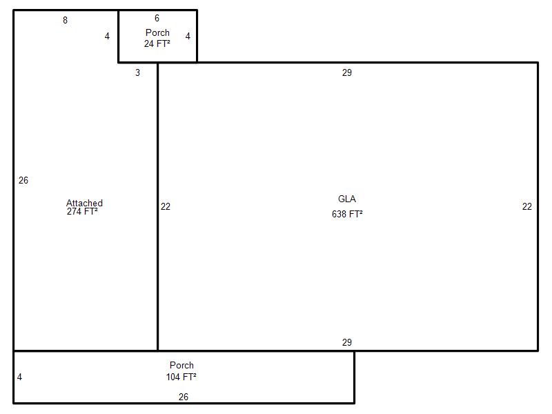
| Photo & Sketch (if available) | Comp Sales (ordered by relevancy) |
|
||||||||||||||||||
|
||||||||||||||||||||
| Value History (*The County Treasurer 405-713-1300 posts & collects actual tax amounts. Contact information HERE) | |||||||||||||
|---|---|---|---|---|---|---|---|---|---|---|---|---|---|
| Year | Market Value | Taxable Mkt Value | Gross Assessed | Exemption | Net Assessed | Millage | Est. Tax | Tax Savings | |||||
|
2026 |
69,500 |
47,462 |
5,220 |
0 |
5,220 |
119.02 |
$621 |
$289 |
|||||
|
2025 |
69,000 |
45,202 |
4,971 |
0 |
4,971 |
119.02 |
$592 |
$312 |
|||||
|
2024 |
48,500 |
43,050 |
4,735 |
0 |
4,735 |
119.70 |
$567 |
$72 |
|||||
|
2023 |
41,000 |
41,000 |
4,510 |
0 |
4,510 |
118.33 |
$534 |
$0 |
|||||
|
2022 |
41,000 |
41,000 |
4,510 |
0 |
4,510 |
112.69 |
$508 |
$0 |
|||||
| Property Account Status/Adjustments/Exemptions | ||
|---|---|---|
| Account # | Exemption Description | Amount |
|
R074672035 |
5% Capped Account |
0 |
| Property Deed Transaction History (Recorded in the County Clerk's Office) | ||||||||||
|---|---|---|---|---|---|---|---|---|---|---|
| Date | Type | Book | Page | Price | Grantor | Grantee | ||||
|
1/15/2021 |
|
Deeds |
$40,000 |
ZENO ASHLEY MICHELLE |
JONES GARRY L |
|||||
|
10/30/2012 |
|
Deeds |
$30,000 |
GOODSPEED BRENDA K |
ZENO ASHLEY MICHELLE |
|||||
|
7/3/2012 |
|
Deeds |
$0 |
DENNIS LILLIAN D GOODSPEED BRENDA K |
GOODSPEED BRENDA K |
|||||
|
2/25/1997 |
|
Historical |
$0 |
DENNIS LILLIAN D |
DENNIS LILLIAN D |
|||||
|
2/1/1997 |
|
Historical |
$0 |
DENNIS JAMES T ETUX |
DENNIS LILLIAN D |
|||||
| Last Mailed Notice of Value (N.O.V.) Information/History | ||||||||
|---|---|---|---|---|---|---|---|---|
| Year | Date | Market Value | Taxable Market Value | Gross Assessed | Exemption | Net Assessed | ||
|
2026 |
02/06/2026 |
69,500 |
47,462 |
5,220 |
0 |
5,220 |
||
|
2025 |
01/31/2025 |
69,000 |
45,202 |
4,971 |
0 |
4,971 |
||
|
2024 |
01/22/2024 |
48,500 |
43,050 |
4,735 |
0 |
4,735 |
||
|
2022 |
02/22/2022 |
41,000 |
41,000 |
4,510 |
0 |
4,510 |
||
|
2021 |
02/24/2021 |
40,000 |
35,885 |
3,947 |
0 |
3,947 |
||
| Property Building Permit History | |||||||||||
|---|---|---|---|---|---|---|---|---|---|---|---|
| Issued | Permit # | Provided by | Bldg # | Description | Est Construction Cost | Status | |||||
| No Building Permit records returned. | |||||||||||
| Click button on building number to access detailed information: | ||||||
|---|---|---|---|---|---|---|
| Bldg # | Vacant/Improved Land | Bldg Description | Year Built | SqFt | # Stories | |
|
1 |
Improved |
Ranch 1 Story |
1954 |
638 |
1 Stories |
|