|
|
|
| Larry Stein Oklahoma County Assessor (405) 713-1200 - Public Access System |
|
|
|
|
|
|
| Real Property Display - Screen Produced 4/2/2026 11:42:29 AM | ||||
|---|---|---|---|---|
| Account: R113472145 | Type: Residential | Location: |
3228 SW 47TH ST |
|
| Building Name/Occupant: |
|
OKLAHOMA CITY |
||
| Owner Name 1: | PANTOJA MARIA DEL CARMEN |
Parcel PIN#: |
1893-11-347-2145 |
|
| Owner Name 2: | 1/4 section #: |
1893 |
||
| Owner Name 3: | Parent Acct: |
|
||
| Billing Address: | 3308 SW 26TH ST | Tax District: |
|
|
| City, State, Zip | OKLAHOMA CITY, OK 73108 | School System: |
Oklahoma City #89 |
|
|
Country: (If noted) |
Land Size: |
0.1736 Acres |
||
|
Land Value: 12,852 |
|
|||
|
Sect 24-T11N-R4W Qtr NE |
ROGER GIVENS AIRLINE
Block
004
Lot
008
|
|||
| Full Legal Description: ROGER GIVENS AIRLINE 004 008 |
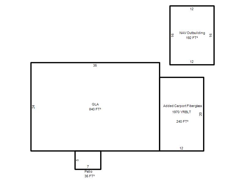
| Photo & Sketch (if available) | Comp Sales (ordered by relevancy) |
|
||||||||||||||||||
|
||||||||||||||||||||
| Value History (*The County Treasurer 405-713-1300 posts & collects actual tax amounts. Contact information HERE) | |||||||||||||
|---|---|---|---|---|---|---|---|---|---|---|---|---|---|
| Year | Market Value | Taxable Mkt Value | Gross Assessed | Exemption | Net Assessed | Millage | Est. Tax | Tax Savings | |||||
|
2026 |
124,000 |
89,976 |
9,897 |
0 |
9,897 |
119.02 |
$1,178 |
$445 |
|||||
|
2025 |
124,500 |
85,692 |
9,425 |
0 |
9,425 |
119.02 |
$1,122 |
$508 |
|||||
|
2024 |
114,000 |
81,612 |
8,976 |
0 |
8,976 |
119.70 |
$1,075 |
$426 |
|||||
|
2023 |
95,000 |
77,726 |
8,549 |
0 |
8,549 |
118.33 |
$1,012 |
$225 |
|||||
|
2022 |
85,000 |
74,025 |
8,142 |
0 |
8,142 |
112.69 |
$918 |
$136 |
|||||
| Property Account Status/Adjustments/Exemptions | ||
|---|---|---|
| Account # | Exemption Description | Amount |
|
R113472145 |
5% Capped Account |
0 |
| Property Deed Transaction History (Recorded in the County Clerk's Office) | ||||||||||
|---|---|---|---|---|---|---|---|---|---|---|
| Date | Type | Book | Page | Price | Grantor | Grantee | ||||
|
12/16/2020 |
|
Hmstd Off & |
$0 |
PATOJA JOANA C |
PANTONJA MARIA DEL CARMEN |
|||||
|
11/4/2020 |
|
Deeds |
$69,000 |
TRAN SON NGUYEN HOANG |
PATOJA JOANA C |
|||||
|
9/19/2019 |
|
Deeds |
$42,000 |
NGO THU THI |
TRAN SON NGUYEN HOANG |
|||||
|
3/19/2019 |
|
Deeds |
$40,000 |
TRUONG CUC THI |
NGO THU THI |
|||||
|
4/13/2011 |
|
Deeds |
$30,000 |
JOHNSON MICHAEL N & THUY THI |
TRUONG CUC THI |
|||||
| Last Mailed Notice of Value (N.O.V.) Information/History | ||||||||
|---|---|---|---|---|---|---|---|---|
| Year | Date | Market Value | Taxable Market Value | Gross Assessed | Exemption | Net Assessed | ||
|
2026 |
02/06/2026 |
124,000 |
89,976 |
9,897 |
0 |
9,897 |
||
|
2025 |
01/31/2025 |
124,500 |
85,692 |
9,425 |
0 |
9,425 |
||
|
2024 |
01/22/2024 |
114,000 |
81,612 |
8,976 |
0 |
8,976 |
||
|
2023 |
01/23/2023 |
95,000 |
77,726 |
8,549 |
0 |
8,549 |
||
|
2022 |
02/22/2022 |
85,000 |
74,025 |
8,142 |
0 |
8,142 |
||
| Property Building Permit History | |||||||||||
|---|---|---|---|---|---|---|---|---|---|---|---|
| Issued | Permit # | Provided by | Bldg # | Description | Est Construction Cost | Status | |||||
| No Building Permit records returned. | |||||||||||
| Click button on building number to access detailed information: | ||||||
|---|---|---|---|---|---|---|
| Bldg # | Vacant/Improved Land | Bldg Description | Year Built | SqFt | # Stories | |
|
1 |
Improved |
Ranch 1 Story |
1952 |
840 |
1 Stories |
|