|
|
|
| Larry Stein Oklahoma County Assessor (405) 713-1200 - Public Access System |
|
|
|
|
|
|
| Real Property Display - Screen Produced 3/12/2026 2:21:01 PM | ||||
|---|---|---|---|---|
| Account: R144052100 | Type: Commercial | Location: |
14890 SE 29TH ST |
|
| Building Name/Occupant: |
WOODS PLAZA |
UNINCORPORATED |
||
| Owner Name 1: | M & N WOODS DEVELOPMENT LLC |
Parcel PIN#: |
1253-14-405-2100 |
|
| Owner Name 2: | 1/4 section #: |
1253 |
||
| Owner Name 3: | Parent Acct: |
1253-14-405-0255 |
||
| Billing Address: | 14400 SE 29TH ST | Tax District: |
|
|
| City, State, Zip | CHOCTAW, OK 73020-6530 | School System: |
Choctaw #4 |
|
|
Country: (If noted) |
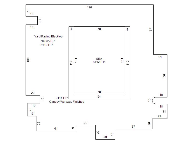
Land Size: |
66,025.0000 Square Feet |
||
|
Land Value: 177,470 |
|
|||
|
Sect 14-T11N-R1W Qtr NE |
UNPLTD PT SEC 14 11N 1W
Block
000
Lot
000
|
|||
| Full Legal Description: UNPLTD PT SEC 14 11N 1W 000 000 PT NE4 SEC 14 11N 1W BEG 205FT W OF NE/C NE4 TH W252FT S262FT E252FT N262FT TO BEG CONT 1.52ACRS MORE OR LESS |
| No comparable sales report available. | ||||||||||||||||||||||
|
||||||||||||||||||||||
| Value History (*The County Treasurer 405-713-1300 posts & collects actual tax amounts. Contact information HERE) | |||||||||||||
|---|---|---|---|---|---|---|---|---|---|---|---|---|---|
| Year | Market Value | Taxable Mkt Value | Gross Assessed | Exemption | Net Assessed | Millage | Est. Tax | Tax Savings | |||||
|
2025 |
922,567 |
922,567 |
101,482 |
0 |
101,482 |
117.21 |
$11,895 |
$0 |
|||||
|
2024 |
922,567 |
906,728 |
99,739 |
0 |
99,739 |
116.35 |
$11,605 |
$203 |
|||||
|
2023 |
922,567 |
863,551 |
94,990 |
0 |
94,990 |
117.10 |
$11,123 |
$760 |
|||||
|
2022 |
822,430 |
822,430 |
90,467 |
0 |
90,467 |
115.17 |
$10,419 |
$0 |
|||||
|
2021 |
822,430 |
822,430 |
90,467 |
0 |
90,467 |
115.06 |
$10,409 |
$0 |
|||||
| Property Account Status/Adjustments/Exemptions | ||
|---|---|---|
| Account # | Exemption Description | Amount |
|
R144052100 |
5% Capped Account |
0 |
| Property Deed Transaction History (Recorded in the County Clerk's Office) | ||||||||||
|---|---|---|---|---|---|---|---|---|---|---|
| Date | Type | Book | Page | Price | Grantor | Grantee | ||||
|
8/5/2011 |
|
Hmstd Off & |
$0 |
M & N WOODS DEVELOPEMENT LLC |
M & N WOODS DEVELOPEMENT LLC |
|||||
|
2/18/2011 |
|
Hmstd Off & |
$0 |
M & N WOODS DEVELOPEMENT LLC |
M & N WOODS DEVELOPEMENT LLC |
|||||
|
10/21/2010 |
|
Hmstd Off & |
$0 |
M & N WOODS DEVELOPMENT LLC & SWM & SONS INC |
M & N WOODS DEVELOPMENT LLC |
|||||
|
10/21/2010 |
|
Hmstd Off & |
$0 |
M & N WOODS DEVELOPMENT LLC & SWM & SONS INC |
M & N WOODS DEVELOPEMENT LLC |
|||||
|
7/26/2010 |
|
Hmstd Off & |
$0 |
M & N WOODS DEVELOPEMENT LLC |
M & N WOODS DEVELOPEMENT LLC |
|||||
| Last Mailed Notice of Value (N.O.V.) Information/History | ||||||||
|---|---|---|---|---|---|---|---|---|
| Year | Date | Market Value | Taxable Market Value | Gross Assessed | Exemption | Net Assessed | ||
|
2025 |
03/14/2025 |
922,567 |
922,567 |
101,482 |
0 |
101,482 |
||
|
2024 |
03/12/2024 |
922,567 |
906,728 |
99,739 |
0 |
99,739 |
||
|
2023 |
03/13/2023 |
922,567 |
863,551 |
94,990 |
0 |
94,990 |
||
|
2021 |
03/22/2021 |
822,430 |
822,430 |
90,467 |
0 |
90,467 |
||
|
2020 |
03/16/2020 |
872,582 |
791,497 |
87,064 |
0 |
87,064 |
||
| Property Building Permit History | |||||||||||
|---|---|---|---|---|---|---|---|---|---|---|---|
| Issued | Permit # | Provided by | Bldg # | Description | Est Construction Cost | Status | |||||
|
6/28/2011 |
10429915 |
CHOCTAW |
1 |
Remodeled |
13,250 |
Inactive |
|||||
|
6/28/2011 |
10429916 |
CHOCTAW |
1 |
Remodeled |
13,250 |
Inactive |
|||||
|
6/28/2011 |
10429918 |
CHOCTAW |
1 |
Remodeled |
13,250 |
Inactive |
|||||
|
6/28/2011 |
10429919 |
CHOCTAW |
1 |
Remodeled |
13,250 |
Inactive |
|||||
|
9/9/2009 |
10386128 |
CHOCTAW |
1 |
Partial Valu |
0 |
Inactive |
|||||
| Click button on building number to access detailed information: | ||||||
|---|---|---|---|---|---|---|
| Bldg # | Vacant/Improved Land | Bldg Description | Year Built | SqFt | # Stories | |
|
1 |
Improved |
Neighborhood Shopping Center |
2009 |
8,112 |
1 Stories |
|