|
|
|
| Larry Stein Oklahoma County Assessor (405) 713-1200 - Public Access System |
|
|
|
|
|
|
| Real Property Display - Screen Produced 4/2/2026 3:16:39 PM | ||||
|---|---|---|---|---|
| Account: R197942205 | Type: Residential | Location: |
2715 HAWKINS |
|
| Building Name/Occupant: |
|
CHOCTAW |
||
| Owner Name 1: | BILLINGS BILLY E & SUE CO TRS |
Parcel PIN#: |
2290-19-794-2205 |
|
| Owner Name 2: | BILLINGS BILLY E REV TRUST | 1/4 section #: |
2290 |
|
| Owner Name 3: | Parent Acct: |
|
||
| Billing Address: | PO BOX 1099 | Tax District: |
|
|
| City, State, Zip | CHOCTAW, OK 73020-1099 | School System: |
Choctaw #4 |
|
|
Country: (If noted) |
Land Size: |
0.2507 Acres |
||
|
Land Value: 30,030 |
|
|||
|
Sect 23-T12N-R1W Qtr SE |
RAILWAY TO CHOCTAW CITY
Block
011
Lot
000
|
|||
| Full Legal Description: RAILWAY TO CHOCTAW CITY 011 000 LOTS 1 2 & 3 |
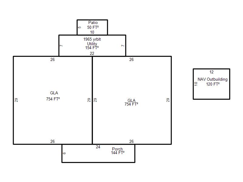
| Photo & Sketch (if available) | Comp Sales (ordered by relevancy) |
|
||||||||||||||||||
|
||||||||||||||||||||
| Value History (*The County Treasurer 405-713-1300 posts & collects actual tax amounts. Contact information HERE) | |||||||||||||
|---|---|---|---|---|---|---|---|---|---|---|---|---|---|
| Year | Market Value | Taxable Mkt Value | Gross Assessed | Exemption | Net Assessed | Millage | Est. Tax | Tax Savings | |||||
|
2026 |
116,500 |
95,081 |
10,458 |
0 |
10,458 |
117.21 |
$1,226 |
$276 |
|||||
|
2025 |
122,500 |
90,554 |
9,960 |
0 |
9,960 |
117.21 |
$1,168 |
$412 |
|||||
|
2024 |
123,500 |
86,242 |
9,485 |
0 |
9,485 |
116.35 |
$1,104 |
$477 |
|||||
|
2023 |
125,500 |
82,136 |
9,034 |
0 |
9,034 |
118.06 |
$1,067 |
$563 |
|||||
|
2022 |
131,500 |
78,225 |
8,604 |
0 |
8,604 |
116.14 |
$999 |
$681 |
|||||
| Property Account Status/Adjustments/Exemptions | ||
|---|---|---|
| Account # | Exemption Description | Amount |
|
R197942205 |
5% Capped Account |
0 |
| Property Deed Transaction History (Recorded in the County Clerk's Office) | |||||||
|---|---|---|---|---|---|---|---|
| Date | Type | Book | Page | Price | Grantor | Grantee | |
|
10/27/1998 |
|
Historical |
$34,000 |
FIRST STATE BANK OF HARRAH |
BILLINGS BILLY E & SUE CO TRS |
||
|
10/8/1998 |
|
Historical |
$0 |
RANDY GOODMAN |
FIRST STATE BANK OF HARRAH |
||
|
9/28/1998 |
|
Historical |
$0 |
BILLINGS TOMMY L & BETTY J |
RANDY GOODMAN |
||
|
11/11/1911 |
|
Historical |
$0 |
|
BILLINGS TOMMY L & BETTY J |
||
| Last Mailed Notice of Value (N.O.V.) Information/History | ||||||||
|---|---|---|---|---|---|---|---|---|
| Year | Date | Market Value | Taxable Market Value | Gross Assessed | Exemption | Net Assessed | ||
|
2026 |
02/06/2026 |
116,500 |
95,081 |
10,458 |
0 |
10,458 |
||
|
2025 |
01/31/2025 |
122,500 |
90,554 |
9,960 |
0 |
9,960 |
||
|
2024 |
01/22/2024 |
123,500 |
86,242 |
9,485 |
0 |
9,485 |
||
|
2023 |
01/23/2023 |
125,500 |
82,136 |
9,034 |
0 |
9,034 |
||
|
2022 |
02/22/2022 |
131,500 |
78,225 |
8,604 |
0 |
8,604 |
||
| Property Building Permit History | |||||||||||
|---|---|---|---|---|---|---|---|---|---|---|---|
| Issued | Permit # | Provided by | Bldg # | Description | Est Construction Cost | Status | |||||
| No Building Permit records returned. | |||||||||||
| Click button on building number to access detailed information: | ||||||
|---|---|---|---|---|---|---|
| Bldg # | Vacant/Improved Land | Bldg Description | Year Built | SqFt | # Stories | |
|
1 |
Improved |
Duplex One Story |
1965 |
1,508 |
1 Stories |
|