|
|
|
| Larry Stein Oklahoma County Assessor (405) 713-1200 - Public Access System |
|
|
|
|
|
|
| Real Property Display - Screen Produced 3/12/2026 12:52:34 PM | ||||
|---|---|---|---|---|
| Account: R144053000 | Type: Residential | Location: |
14701 SE 36TH ST |
|
| Building Name/Occupant: |
|
OKLAHOMA CITY |
||
| Owner Name 1: | COOMBS JEREMY |
Parcel PIN#: |
1253-14-405-3000 |
|
| Owner Name 2: | COOMBS MARTHA | 1/4 section #: |
1253 |
|
| Owner Name 3: | Parent Acct: |
|
||
| Billing Address: | 3729 S CHOCTAW RD | Tax District: |
|
|
| City, State, Zip | CHOCTAW, OK 73020 | School System: |
Choctaw #4 |
|
|
Country: (If noted) |
Land Size: |
9.8900 Acres |
||
|
Land Value: 126,592 |
|
|||
|
Sect 14-T11N-R1W Qtr NE |
UNPLTD PT SEC 14 11N 1W
Block
000
Lot
000
|
|||
| Full Legal Description: UNPLTD PT SEC 14 11N 1W 000 000 PT SEC 14 11N 1W E 1/2 OF E 1/2 OF SW4 OF NE4 LESS 15FT FORROAD |
| Photo & Sketch (if available) | Comp Sales (ordered by relevancy) |
|
||||||||||||||||||
|
||||||||||||||||||||
| Value History (*The County Treasurer 405-713-1300 posts & collects actual tax amounts. Contact information HERE) | |||||||||||||
|---|---|---|---|---|---|---|---|---|---|---|---|---|---|
| Year | Market Value | Taxable Mkt Value | Gross Assessed | Exemption | Net Assessed | Millage | Est. Tax | Tax Savings | |||||
|
2025 |
126,592 |
126,592 |
13,925 |
0 |
13,925 |
132.37 |
$1,843 |
$0 |
|||||
|
2024 |
126,592 |
126,592 |
13,925 |
0 |
13,925 |
131.28 |
$1,828 |
$0 |
|||||
|
2023 |
148,000 |
148,000 |
16,280 |
0 |
16,280 |
131.88 |
$2,147 |
$0 |
|||||
|
2022 |
148,000 |
148,000 |
16,280 |
0 |
16,280 |
130.63 |
$2,127 |
$0 |
|||||
|
2021 |
82,282 |
82,282 |
9,051 |
1,000 |
8,051 |
129.79 |
$1,045 |
$130 |
|||||
| Property Account Status/Adjustments/Exemptions | ||
|---|---|---|
| Account # | Exemption Description | Amount |
|
R144053000 |
5% Capped Account |
0 |
| Property Deed Transaction History (Recorded in the County Clerk's Office) | ||||||||||
|---|---|---|---|---|---|---|---|---|---|---|
| Date | Type | Book | Page | Price | Grantor | Grantee | ||||
|
12/17/2021 |
|
Deeds |
$150,000 |
ATKISON ALEXIS D |
COOMBS JEREMY |
|||||
|
10/27/2016 |
|
Hmstd Off & |
$0 |
ATKISON ERIC W LIVING TRUST |
ATKISON ALEXIS D |
|||||
|
5/18/2015 |
|
Deeds |
$0 |
ATKISON ERIC W |
ATKISON ERIC W LIVING TRUST |
|||||
|
4/3/2008 |
|
Hmstd Off & |
$0 |
ATKISON HOMER L & GLADYS P |
ATKISON ERIC W |
|||||
|
12/20/2004 |
|
Deeds |
$0 |
ATKISON ERIC W |
ATKISON HOMER L & GLADYS P |
|||||
| Last Mailed Notice of Value (N.O.V.) Information/History | ||||||||
|---|---|---|---|---|---|---|---|---|
| Year | Date | Market Value | Taxable Market Value | Gross Assessed | Exemption | Net Assessed | ||
|
2022 |
04/05/2022 |
148,000 |
148,000 |
16,280 |
0 |
16,280 |
||
|
2019 |
02/26/2019 |
114,525 |
111,853 |
12,304 |
1,000 |
11,304 |
||
|
2018 |
04/09/2018 |
115,168 |
108,595 |
11,946 |
1,000 |
10,946 |
||
|
2017 |
03/24/2017 |
105,605 |
105,432 |
|
|
|
||
|
2016 |
03/28/2016 |
108,084 |
102,362 |
11,258 |
0 |
11,258 |
||
| Property Building Permit History | ||||||
|---|---|---|---|---|---|---|
| Issued | Permit # | Provided by | Bldg # | Description | Est Construction Cost | Status |
|
1/29/2025 |
BLDR-2024-07598 |
|
1 |
Remodeled |
200,000 |
Inactive |
|
1/1/2003 |
10238777 |
OKLAHOMA CITY |
|
Main Dwellin |
2,000 |
Inactive |
|
4/11/2000 |
10238779 |
OKLAHOMA CITY |
|
Other |
20,000 |
Inactive |
|
4/23/1999 |
10238781 |
OKLAHOMA CITY |
|
Other |
0 |
Inactive |
|
2/2/1998 |
10238780 |
OKLAHOMA CITY |
|
Manufactured |
6,000 |
Inactive |
| Click button on building number to access detailed information: | ||||||
|---|---|---|---|---|---|---|
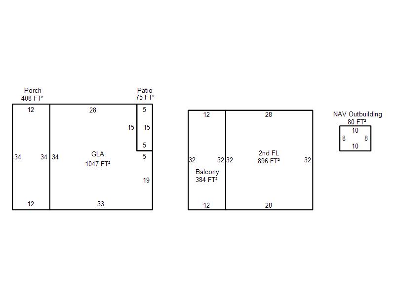
| Bldg # | Vacant/Improved Land | Bldg Description | Year Built | SqFt | # Stories | |
|
1 |
Improved |
2 Story |
2023 |
1,943 |
2 Stories |
|