|
|
|
| Larry Stein Oklahoma County Assessor (405) 713-1200 - Public Access System |
|
|
|
|
|
|
| Real Property Display - Screen Produced 4/2/2026 3:16:39 PM | ||||
|---|---|---|---|---|
| Account: R197945100 | Type: Residential | Location: |
2520 HAWKINS |
|
| Building Name/Occupant: |
|
CHOCTAW |
||
| Owner Name 1: | RAD RENTALS LLC |
Parcel PIN#: |
2290-19-794-5100 |
|
| Owner Name 2: | 1/4 section #: |
2290 |
||
| Owner Name 3: | Parent Acct: |
|
||
| Billing Address: | 2520 HAWKIN ST | Tax District: |
|
|
| City, State, Zip | CHOCTAW, OK 73020 | School System: |
Choctaw #4 |
|
|
Country: (If noted) |
Land Size: |
0.2410 Acres |
||
|
Land Value: 28,875 |
|
|||
|
Sect 23-T12N-R1W Qtr SE |
RAILWAY TO CHOCTAW CITY
Block
018
Lot
000
|
|||
| Full Legal Description: RAILWAY TO CHOCTAW CITY 018 000 LOTS 16 THRU 18 |
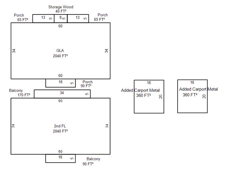
| Photo & Sketch (if available) | Comp Sales (ordered by relevancy) |
|
||||||||||||||||||
|
||||||||||||||||||||
| Value History (*The County Treasurer 405-713-1300 posts & collects actual tax amounts. Contact information HERE) | |||||||||||||
|---|---|---|---|---|---|---|---|---|---|---|---|---|---|
| Year | Market Value | Taxable Mkt Value | Gross Assessed | Exemption | Net Assessed | Millage | Est. Tax | Tax Savings | |||||
|
2026 |
330,000 |
330,000 |
36,300 |
0 |
36,300 |
117.21 |
$4,255 |
$0 |
|||||
|
2025 |
330,000 |
330,000 |
36,300 |
0 |
36,300 |
117.21 |
$4,255 |
$0 |
|||||
|
2024 |
324,500 |
324,500 |
35,695 |
0 |
35,695 |
116.35 |
$4,153 |
$0 |
|||||
|
2023 |
320,000 |
317,793 |
34,956 |
0 |
34,956 |
118.06 |
$4,127 |
$29 |
|||||
|
2022 |
317,000 |
302,660 |
33,292 |
0 |
33,292 |
116.14 |
$3,867 |
$183 |
|||||
| Property Account Status/Adjustments/Exemptions | ||
|---|---|---|
| Account # | Exemption Description | Amount |
|
R197945100 |
5% Capped Account |
0 |
| Property Deed Transaction History (Recorded in the County Clerk's Office) | ||||||||||
|---|---|---|---|---|---|---|---|---|---|---|
| Date | Type | Book | Page | Price | Grantor | Grantee | ||||
|
2/6/2026 |
|
Deeds |
$545,000 |
NICKELBACK INVESTMENTS LLC |
RAD RENTALS LLC |
|||||
|
3/26/2018 |
|
Hmstd Off & |
$0 |
NEWMAN CLAIR & SHIRLEY |
NICKELBACK INVESTMENTS LLC |
|||||
|
8/14/2006 |
|
Deeds |
$34,000 |
BROOKS MICHAEL D & RHONDA L |
NEWMAN CLAIR & SHIRLEY |
|||||
|
12/22/1995 |
|
Historical |
$8,000 |
BUCHANAN DAVID W & THERESA K |
BROOKS MICHAEL D & RHONDA L |
|||||
|
12/1/1995 |
|
Historical |
$0 |
BUCHANAN DAVID W & THERESA K |
BUCHANAN DAVID W & THERESA K |
|||||
| Last Mailed Notice of Value (N.O.V.) Information/History | ||||||||
|---|---|---|---|---|---|---|---|---|
| Year | Date | Market Value | Taxable Market Value | Gross Assessed | Exemption | Net Assessed | ||
|
2025 |
01/31/2025 |
330,000 |
330,000 |
36,300 |
0 |
36,300 |
||
|
2024 |
01/22/2024 |
324,500 |
324,500 |
35,695 |
0 |
35,695 |
||
|
2023 |
01/23/2023 |
320,000 |
317,793 |
34,956 |
0 |
34,956 |
||
|
2022 |
02/22/2022 |
317,000 |
302,660 |
33,291 |
0 |
33,291 |
||
|
2021 |
02/24/2021 |
326,000 |
288,248 |
31,707 |
0 |
31,707 |
||
| Property Building Permit History | ||||||
|---|---|---|---|---|---|---|
| Issued | Permit # | Provided by | Bldg # | Description | Est Construction Cost | Status |
|
9/12/2006 |
10328093 |
CHOCTAW |
1 |
Commercial |
245,000 |
Inactive |
|
3/24/2006 |
10321865 |
CHOCTAW |
1 |
Demolish |
0 |
Inactive |
| Click button on building number to access detailed information: | ||||||
|---|---|---|---|---|---|---|
| Bldg # | Vacant/Improved Land | Bldg Description | Year Built | SqFt | # Stories | |
|
1 |
Improved |
Apartment <= 3 Stories |
2006 |
4,080 |
2 Stories |
|