|
|
|
| Larry Stein Oklahoma County Assessor (405) 713-1200 - Public Access System |
|
|
|
|
|
|
| Real Property Display - Screen Produced 4/2/2026 3:16:39 PM | ||||
|---|---|---|---|---|
| Account: R197945450 | Type: Residential | Location: |
2545 HAWKINS |
|
| Building Name/Occupant: |
|
CHOCTAW |
||
| Owner Name 1: | ABTS HERBERT E & JEANETTE M TRS |
Parcel PIN#: |
2290-19-794-5450 |
|
| Owner Name 2: | ABTS LIVING TRUST | 1/4 section #: |
2290 |
|
| Owner Name 3: | Parent Acct: |
|
||
| Billing Address: | 417 RIDGE RD | Tax District: |
|
|
| City, State, Zip | CHOCTAW, OK 73020-7516 | School System: |
Choctaw #4 |
|
|
Country: (If noted) |
Land Size: |
0.2410 Acres |
||
|
Land Value: 28,875 |
|
|||
|
Sect 23-T12N-R1W Qtr SE |
RAILWAY TO CHOCTAW CITY
Block
019
Lot
000
|
|||
| Full Legal Description: RAILWAY TO CHOCTAW CITY 019 000 LOTS 7 8 & 9 |
| Photo & Sketch (if available) | Comp Sales (ordered by relevancy) |
|
||||||||||||||||||
|
||||||||||||||||||||
| Value History (*The County Treasurer 405-713-1300 posts & collects actual tax amounts. Contact information HERE) | |||||||||||||
|---|---|---|---|---|---|---|---|---|---|---|---|---|---|
| Year | Market Value | Taxable Mkt Value | Gross Assessed | Exemption | Net Assessed | Millage | Est. Tax | Tax Savings | |||||
|
2026 |
144,500 |
111,895 |
12,308 |
0 |
12,308 |
117.21 |
$1,443 |
$420 |
|||||
|
2025 |
147,500 |
106,567 |
11,722 |
0 |
11,722 |
117.21 |
$1,374 |
$528 |
|||||
|
2024 |
141,500 |
101,493 |
11,163 |
0 |
11,163 |
116.35 |
$1,299 |
$512 |
|||||
|
2023 |
129,000 |
96,660 |
10,632 |
0 |
10,632 |
118.06 |
$1,255 |
$420 |
|||||
|
2022 |
113,500 |
92,058 |
10,126 |
0 |
10,126 |
116.14 |
$1,176 |
$274 |
|||||
| Property Account Status/Adjustments/Exemptions | ||
|---|---|---|
| Account # | Exemption Description | Amount |
|
R197945450 |
5% Capped Account |
0 |
| Property Deed Transaction History (Recorded in the County Clerk's Office) | |||||||
|---|---|---|---|---|---|---|---|
| Date | Type | Book | Page | Price | Grantor | Grantee | |
|
8/10/2001 |
|
Deeds |
$50,000 |
MONKS TERRELL H |
ABTS HERBERT E & JEANETTE M TRS |
||
|
4/23/2001 |
|
Deeds |
$27,000 |
BELLER TERRY W & LINDA G |
MONKS TERRELL H |
||
|
9/1/1983 |
|
Historical |
$0 |
|
BELLER TERRY W & LINDA G |
||
| Last Mailed Notice of Value (N.O.V.) Information/History | ||||||||
|---|---|---|---|---|---|---|---|---|
| Year | Date | Market Value | Taxable Market Value | Gross Assessed | Exemption | Net Assessed | ||
|
2026 |
02/06/2026 |
144,500 |
111,895 |
12,308 |
0 |
12,308 |
||
|
2025 |
01/31/2025 |
147,500 |
106,567 |
11,722 |
0 |
11,722 |
||
|
2024 |
01/22/2024 |
141,500 |
101,493 |
11,163 |
0 |
11,163 |
||
|
2023 |
01/23/2023 |
129,000 |
96,660 |
10,632 |
0 |
10,632 |
||
|
2022 |
02/22/2022 |
113,500 |
92,058 |
10,126 |
0 |
10,126 |
||
| Property Building Permit History | |||||||||||
|---|---|---|---|---|---|---|---|---|---|---|---|
| Issued | Permit # | Provided by | Bldg # | Description | Est Construction Cost | Status | |||||
| No Building Permit records returned. | |||||||||||
| Click button on building number to access detailed information: | ||||||
|---|---|---|---|---|---|---|
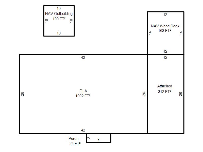
| Bldg # | Vacant/Improved Land | Bldg Description | Year Built | SqFt | # Stories | |
|
1 |
Improved |
Ranch 1 Story |
1970 |
1,092 |
1 Stories |
|