|
|
|
| Larry Stein Oklahoma County Assessor (405) 713-1200 - Public Access System |
|
|
|
|
|
|
| Real Property Display - Screen Produced 3/14/2026 3:46:52 AM | ||||
|---|---|---|---|---|
| Account: R123601220 | Type: Residential | Location: |
1716 CIMARRON TRL |
|
| Building Name/Occupant: |
|
CHOCTAW |
||
| Owner Name 1: | MOORE GAVIN & PAYJ |
Parcel PIN#: |
2301-12-360-1220 |
|
| Owner Name 2: | 1/4 section #: |
2301 |
||
| Owner Name 3: | Parent Acct: |
|
||
| Billing Address: | 1716 CIMARRON TRL | Tax District: |
|
|
| City, State, Zip | CHOCTAW, OK 73020 | School System: |
Choctaw #4 |
|
|
Country: (If noted) |
UNITED STATES |
Land Size: |
0.1515 Acres |
|
|
Land Value: 28,380 |
|
|||
|
Sect 26-T12N-R1W Qtr NE |
CHOCTAW TRAILS SEC 1
Block
002
Lot
008
|
|||
| Full Legal Description: CHOCTAW TRAILS SEC 1 002 008 |
| Photo & Sketch (if available) | Comp Sales (ordered by relevancy) |
|
||||||||||||||||||
|
||||||||||||||||||||
| Value History (*The County Treasurer 405-713-1300 posts & collects actual tax amounts. Contact information HERE) | |||||||||||||
|---|---|---|---|---|---|---|---|---|---|---|---|---|---|
| Year | Market Value | Taxable Mkt Value | Gross Assessed | Exemption | Net Assessed | Millage | Est. Tax | Tax Savings | |||||
| No PropertyValuation records returned. | |||||||||||||
| Property Account Status/Adjustments/Exemptions | ||
|---|---|---|
| Account # | Exemption Description | Amount |
|
R123601220 |
Homestead |
1,000 |
| Property Deed Transaction History (Recorded in the County Clerk's Office) | ||||||||||
|---|---|---|---|---|---|---|---|---|---|---|
| Date | Type | Book | Page | Price | Grantor | Grantee | ||||
|
7/11/2025 |
|
Deeds |
$199,000 |
SHASTO PROPERTIES LLC |
MOORE GAVIN & PAYJ |
|||||
|
7/11/2022 |
|
Deeds |
$157,500 |
ROBERTS ASPEN K |
SHASTO PROPERTIES LLC |
|||||
|
9/27/2018 |
|
Deeds |
$120,000 |
HANDSPRING PROPERTIES LLC |
ROBERTS ASPEN K |
|||||
|
11/9/2012 |
|
Deeds |
$75,000 |
STRAMSKI PHILLIP L |
HANDSPRING PROPERTIES LLC |
|||||
|
2/2/2012 |
|
Deeds |
$0 |
STRAMSKI PHILLIP L & STEPHANIE D |
STRAMSKI PHILLIP L |
|||||
| Last Mailed Notice of Value (N.O.V.) Information/History | ||||||||
|---|---|---|---|---|---|---|---|---|
| Year | Date | Market Value | Taxable Market Value | Gross Assessed | Exemption | Net Assessed | ||
| No Notice of Value N.O.V. records returned. | ||||||||
| Property Building Permit History | |||||||||||
|---|---|---|---|---|---|---|---|---|---|---|---|
| Issued | Permit # | Provided by | Bldg # | Description | Est Construction Cost | Status | |||||
| No Building Permit records returned. | |||||||||||
| Click button on building number to access detailed information: | ||||||
|---|---|---|---|---|---|---|
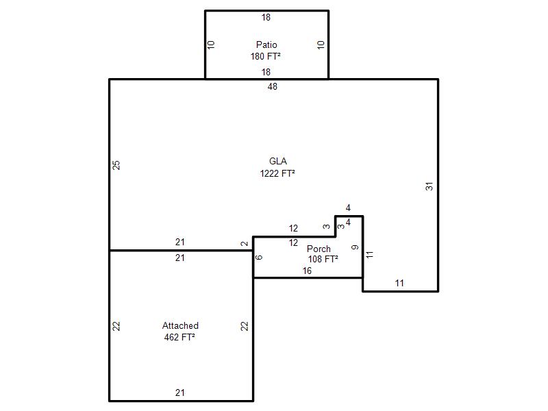
| Bldg # | Vacant/Improved Land | Bldg Description | Year Built | SqFt | # Stories | |
|
1 |
Improved |
Ranch 1 Story |
1985 |
1,222 |
1 Stories |
|