|
|
|
| Larry Stein Oklahoma County Assessor (405) 713-1200 - Public Access System |
|
|
|
|
|
|
| Real Property Display - Screen Produced 3/12/2026 12:53:57 PM | ||||
|---|---|---|---|---|
| Account: R123601480 | Type: Residential | Location: |
1725 CIMARRON TRL |
|
| Building Name/Occupant: |
|
CHOCTAW |
||
| Owner Name 1: | HOLLAND WALLS COURTNEY R |
Parcel PIN#: |
2301-12-360-1480 |
|
| Owner Name 2: | 1/4 section #: |
2301 |
||
| Owner Name 3: | Parent Acct: |
|
||
| Billing Address: | 1725 CIMARRON TRL | Tax District: |
|
|
| City, State, Zip | CHOCTAW, OK 73020 | School System: |
Choctaw #4 |
|
|
Country: (If noted) |
Land Size: |
0.1515 Acres |
||
|
Land Value: 28,380 |
|
|||
|
Sect 26-T12N-R1W Qtr NE |
CHOCTAW TRAILS SEC 1
Block
003
Lot
007
|
|||
| Full Legal Description: CHOCTAW TRAILS SEC 1 003 007 |
| Photo & Sketch (if available) | Comp Sales (ordered by relevancy) |
|
||||||||||||||||||
|
||||||||||||||||||||
| Value History (*The County Treasurer 405-713-1300 posts & collects actual tax amounts. Contact information HERE) | |||||||||||||
|---|---|---|---|---|---|---|---|---|---|---|---|---|---|
| Year | Market Value | Taxable Mkt Value | Gross Assessed | Exemption | Net Assessed | Millage | Est. Tax | Tax Savings | |||||
|
2025 |
174,500 |
133,314 |
14,664 |
1,000 |
13,664 |
117.21 |
$1,602 |
$648 |
|||||
|
2024 |
168,500 |
129,432 |
14,236 |
1,000 |
13,236 |
116.35 |
$1,540 |
$616 |
|||||
|
2023 |
160,000 |
125,663 |
13,822 |
1,000 |
12,822 |
118.06 |
$1,514 |
$564 |
|||||
|
2022 |
138,500 |
122,003 |
13,419 |
1,000 |
12,419 |
116.14 |
$1,442 |
$327 |
|||||
|
2021 |
124,500 |
118,450 |
13,029 |
1,000 |
12,029 |
116.17 |
$1,397 |
$193 |
|||||
| Property Account Status/Adjustments/Exemptions | ||
|---|---|---|
| Account # | Exemption Description | Amount |
|
R123601480 |
3% Cap Homestead |
0 |
|
R123601480 |
Homestead |
1,000 |
| Property Deed Transaction History (Recorded in the County Clerk's Office) | ||||||||||
|---|---|---|---|---|---|---|---|---|---|---|
| Date | Type | Book | Page | Price | Grantor | Grantee | ||||
|
5/23/2019 |
|
Deeds |
$121,000 |
LEWIS DONNIE LEE & DONNA |
HOLLAND WALLS COURTNEY R |
|||||
|
12/19/2003 |
|
Deeds |
$17,500 |
NEAL HOWARD |
LEWIS DONNIE LEE & DONNA |
|||||
|
9/1/1998 |
|
Historical |
$0 |
NEAL HOWARD & SHERRY A |
NEAL HOWARD |
|||||
|
5/1/1990 |
|
Historical |
$50,000 |
OHAGAN VICTOR N & PATRICIA P |
NEAL HOWARD & SHERRY A |
|||||
|
4/17/1989 |
|
Historical |
$0 |
SOUTHWEST TITLE & TRUST CO TRS |
OHAGAN VICTOR N & PATRICIA P |
|||||
| Last Mailed Notice of Value (N.O.V.) Information/History | ||||||||
|---|---|---|---|---|---|---|---|---|
| Year | Date | Market Value | Taxable Market Value | Gross Assessed | Exemption | Net Assessed | ||
|
2026 |
02/06/2026 |
184,500 |
137,313 |
15,103 |
1,000 |
14,103 |
||
|
2025 |
01/31/2025 |
174,500 |
133,314 |
14,664 |
1,000 |
13,664 |
||
|
2024 |
01/22/2024 |
168,500 |
129,432 |
14,236 |
1,000 |
13,236 |
||
|
2023 |
01/23/2023 |
160,000 |
125,663 |
13,822 |
1,000 |
12,822 |
||
|
2022 |
02/22/2022 |
138,500 |
122,003 |
13,419 |
1,000 |
12,419 |
||
| Property Building Permit History | |||||||||||
|---|---|---|---|---|---|---|---|---|---|---|---|
| Issued | Permit # | Provided by | Bldg # | Description | Est Construction Cost | Status | |||||
| No Building Permit records returned. | |||||||||||
| Click button on building number to access detailed information: | ||||||
|---|---|---|---|---|---|---|
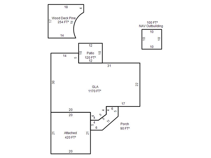
| Bldg # | Vacant/Improved Land | Bldg Description | Year Built | SqFt | # Stories | |
|
1 |
Improved |
Ranch 1 Story |
1989 |
1,170 |
1 Stories |
|