|
|
|
| Larry Stein Oklahoma County Assessor (405) 713-1200 - Public Access System |
|
|
|
|
|
|
| Real Property Display - Screen Produced 3/12/2026 12:53:58 PM | ||||
|---|---|---|---|---|
| Account: R123601970 | Type: Residential | Location: |
1825 OVERLAND TRL |
|
| Building Name/Occupant: |
|
CHOCTAW |
||
| Owner Name 1: | GOODEN DUBOISE REV TRUST |
Parcel PIN#: |
2301-12-360-1970 |
|
| Owner Name 2: | 1/4 section #: |
2301 |
||
| Owner Name 3: | Parent Acct: |
|
||
| Billing Address: | PO BOX 1597 | Tax District: |
|
|
| City, State, Zip | CHOCTAW, OK 73020-1597 | School System: |
Choctaw #4 |
|
|
Country: (If noted) |
Land Size: |
0.1515 Acres |
||
|
Land Value: 28,380 |
|
|||
|
Sect 26-T12N-R1W Qtr NE |
CHOCTAW TRAILS SEC 1
Block
004
Lot
014
|
|||
| Full Legal Description: CHOCTAW TRAILS SEC 1 004 014 |
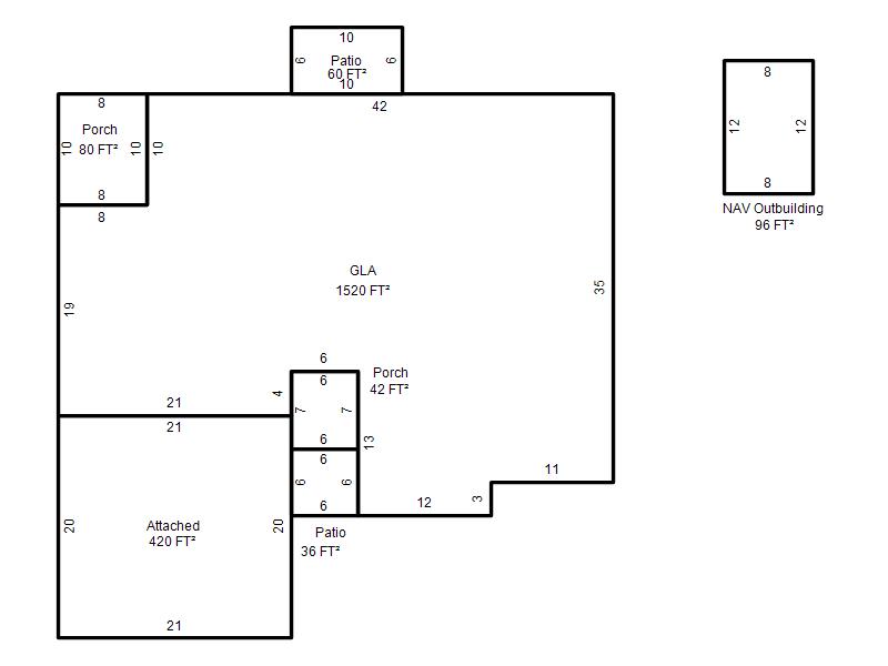
| Photo & Sketch (if available) | Comp Sales (ordered by relevancy) |
|
||||||||||||||||||
|
||||||||||||||||||||
| Value History (*The County Treasurer 405-713-1300 posts & collects actual tax amounts. Contact information HERE) | |||||||||||||
|---|---|---|---|---|---|---|---|---|---|---|---|---|---|
| Year | Market Value | Taxable Mkt Value | Gross Assessed | Exemption | Net Assessed | Millage | Est. Tax | Tax Savings | |||||
|
2025 |
208,000 |
158,819 |
17,469 |
1,000 |
16,469 |
117.21 |
$1,930 |
$751 |
|||||
|
2024 |
201,500 |
154,194 |
16,961 |
1,000 |
15,961 |
116.35 |
$1,857 |
$722 |
|||||
|
2023 |
192,000 |
149,703 |
16,466 |
1,000 |
15,466 |
118.06 |
$1,826 |
$667 |
|||||
|
2022 |
165,500 |
145,343 |
15,987 |
1,000 |
14,987 |
116.14 |
$1,741 |
$374 |
|||||
|
2021 |
149,000 |
141,110 |
15,522 |
1,000 |
14,522 |
116.17 |
$1,687 |
$217 |
|||||
| Property Account Status/Adjustments/Exemptions | ||
|---|---|---|
| Account # | Exemption Description | Amount |
|
R123601970 |
3% Cap Homestead |
0 |
|
R123601970 |
Homestead |
1,000 |
| Property Deed Transaction History (Recorded in the County Clerk's Office) | |||||||
|---|---|---|---|---|---|---|---|
| Date | Type | Book | Page | Price | Grantor | Grantee | |
|
12/12/2025 |
|
Deeds |
$0 |
GOODEN DUBOISE |
GOODEN DUBOISE REV TRUST |
||
|
5/5/1994 |
|
Historical |
$69,500 |
OHAGAN MICHAEL L & NANCY P |
GOODEN DUBOISE |
||
|
8/23/1993 |
|
Historical |
$0 |
SOUTHWEST TITLE & TRUST CO TRS |
OHAGAN MICHAEL L & NANCY P |
||
|
10/1/1984 |
|
Historical |
$0 |
|
SOUTHWEST TITLE & TRUST CO TRS |
||
| Last Mailed Notice of Value (N.O.V.) Information/History | ||||||||
|---|---|---|---|---|---|---|---|---|
| Year | Date | Market Value | Taxable Market Value | Gross Assessed | Exemption | Net Assessed | ||
|
2026 |
02/06/2026 |
219,000 |
163,583 |
17,994 |
1,000 |
16,994 |
||
|
2025 |
01/31/2025 |
208,000 |
158,819 |
17,469 |
1,000 |
16,469 |
||
|
2024 |
01/22/2024 |
201,500 |
154,194 |
16,961 |
1,000 |
15,961 |
||
|
2023 |
01/23/2023 |
192,000 |
149,703 |
16,466 |
1,000 |
15,466 |
||
|
2022 |
02/22/2022 |
165,500 |
145,343 |
15,987 |
1,000 |
14,987 |
||
| Property Building Permit History | ||||||
|---|---|---|---|---|---|---|
| Issued | Permit # | Provided by | Bldg # | Description | Est Construction Cost | Status |
|
10/14/1993 |
10210077 |
CHOCTAW |
1 |
Main Dwellin |
66,908 |
Inactive |
| Click button on building number to access detailed information: | ||||||
|---|---|---|---|---|---|---|
| Bldg # | Vacant/Improved Land | Bldg Description | Year Built | SqFt | # Stories | |
|
1 |
Improved |
Ranch 1 Story |
1994 |
1,520 |
1 Stories |
|