|
|
|
| Larry Stein Oklahoma County Assessor (405) 713-1200 - Public Access System |
|
|
|
|
|
|
| Real Property Display - Screen Produced 3/12/2026 12:52:33 PM | ||||
|---|---|---|---|---|
| Account: R123602370 | Type: Residential | Location: |
1817 BUTTERFIELD TRL |
|
| Building Name/Occupant: |
|
CHOCTAW |
||
| Owner Name 1: | FANSLER ANTHONY W & SARA JENE |
Parcel PIN#: |
2301-12-360-2370 |
|
| Owner Name 2: | 1/4 section #: |
2301 |
||
| Owner Name 3: | Parent Acct: |
|
||
| Billing Address: | 1817 BUTTERFIELD TRL | Tax District: |
|
|
| City, State, Zip | CHOCTAW, OK 73020-8033 | School System: |
Choctaw #4 |
|
|
Country: (If noted) |
Land Size: |
0.1667 Acres |
||
|
Land Value: 31,218 |
|
|||
|
Sect 26-T12N-R1W Qtr NE |
CHOCTAW TRAILS SEC 1
Block
005
Lot
012
|
|||
| Full Legal Description: CHOCTAW TRAILS SEC 1 005 012 |
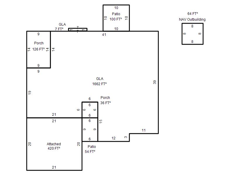
| Photo & Sketch (if available) | Comp Sales (ordered by relevancy) |
|
||||||||||||||||||
|
||||||||||||||||||||
| Value History (*The County Treasurer 405-713-1300 posts & collects actual tax amounts. Contact information HERE) | |||||||||||||
|---|---|---|---|---|---|---|---|---|---|---|---|---|---|
| Year | Market Value | Taxable Mkt Value | Gross Assessed | Exemption | Net Assessed | Millage | Est. Tax | Tax Savings | |||||
|
2025 |
227,000 |
190,164 |
20,917 |
0 |
20,917 |
117.21 |
$2,452 |
$475 |
|||||
|
2024 |
220,500 |
181,109 |
19,921 |
0 |
19,921 |
116.35 |
$2,318 |
$504 |
|||||
|
2023 |
210,500 |
172,485 |
18,972 |
0 |
18,972 |
118.06 |
$2,240 |
$494 |
|||||
|
2022 |
183,000 |
164,272 |
18,069 |
0 |
18,069 |
116.14 |
$2,099 |
$239 |
|||||
|
2021 |
163,000 |
156,450 |
17,209 |
0 |
17,209 |
116.17 |
$1,999 |
$84 |
|||||
| Property Account Status/Adjustments/Exemptions | ||
|---|---|---|
| Account # | Exemption Description | Amount |
|
R123602370 |
5% Capped Account |
0 |
| Property Deed Transaction History (Recorded in the County Clerk's Office) | ||||||||||
|---|---|---|---|---|---|---|---|---|---|---|
| Date | Type | Book | Page | Price | Grantor | Grantee | ||||
|
7/23/2017 |
|
Deeds |
$0 |
FANSLER ANTHONY W |
FANSLER ANTHONY W & SARA JENE |
|||||
|
4/20/2017 |
|
Deeds |
$152,000 |
KLUBALL BRIAN JAMES & WENDY |
FANSLER ANTHONY W |
|||||
|
5/21/2012 |
|
Deeds |
$130,000 |
MITCHELL SOCTT A & ESTHER |
KLUBALL BRIAN JAMES & WENDY |
|||||
|
6/24/2005 |
|
Deeds |
$0 |
MITCHELL SCOTT ALAN |
MITCHELL SOCTT A & ESTHER |
|||||
|
10/26/1993 |
|
Historical |
$74,000 |
OHAGAN VICTOR N & PATRICIA P |
MITCHELL SCOTT ALAN |
|||||
| Last Mailed Notice of Value (N.O.V.) Information/History | ||||||||
|---|---|---|---|---|---|---|---|---|
| Year | Date | Market Value | Taxable Market Value | Gross Assessed | Exemption | Net Assessed | ||
|
2026 |
02/06/2026 |
240,500 |
199,672 |
21,963 |
0 |
21,963 |
||
|
2025 |
01/31/2025 |
227,000 |
190,164 |
20,917 |
0 |
20,917 |
||
|
2024 |
01/22/2024 |
220,500 |
181,109 |
19,921 |
0 |
19,921 |
||
|
2023 |
01/23/2023 |
210,500 |
172,485 |
18,972 |
0 |
18,972 |
||
|
2022 |
02/22/2022 |
183,000 |
164,272 |
18,069 |
0 |
18,069 |
||
| Property Building Permit History | ||||||
|---|---|---|---|---|---|---|
| Issued | Permit # | Provided by | Bldg # | Description | Est Construction Cost | Status |
|
6/18/1993 |
10210121 |
CHOCTAW |
1 |
Main Dwellin |
60,000 |
Inactive |
| Click button on building number to access detailed information: | ||||||
|---|---|---|---|---|---|---|
| Bldg # | Vacant/Improved Land | Bldg Description | Year Built | SqFt | # Stories | |
|
1 |
Improved |
Ranch 1 Story |
1993 |
1,669 |
1 Stories |
|