|
|
|
| Larry Stein Oklahoma County Assessor (405) 713-1200 - Public Access System |
|
|
|
|
|
|
| Real Property Display - Screen Produced 3/12/2026 2:21:01 PM | ||||
|---|---|---|---|---|
| Account: R124421030 | Type: Residential | Location: |
1704 N SHAWNEE TRL |
|
| Building Name/Occupant: |
|
CHOCTAW |
||
| Owner Name 1: | GROSS MELANIE L |
Parcel PIN#: |
2301-12-442-1030 |
|
| Owner Name 2: | 1/4 section #: |
2301 |
||
| Owner Name 3: | Parent Acct: |
|
||
| Billing Address: | PO BOX 849 | Tax District: |
|
|
| City, State, Zip | KAILUA KONA, HI 96745-0849 | School System: |
Choctaw #4 |
|
|
Country: (If noted) |
Land Size: |
0.1667 Acres |
||
|
Land Value: 31,218 |
|
|||
|
Sect 26-T12N-R1W Qtr NE |
CHOCTAW TRAILS SEC TWO
Block
009
Lot
002
|
|||
| Full Legal Description: CHOCTAW TRAILS SEC TWO 009 002 |
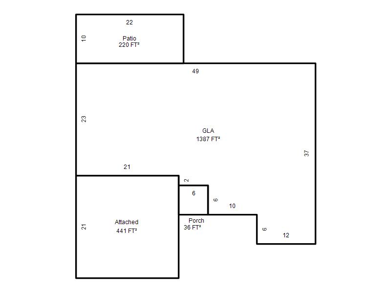
| Photo & Sketch (if available) | Comp Sales (ordered by relevancy) |
|
||||||||||||||||||
|
||||||||||||||||||||
| Value History (*The County Treasurer 405-713-1300 posts & collects actual tax amounts. Contact information HERE) | |||||||||||||
|---|---|---|---|---|---|---|---|---|---|---|---|---|---|
| Year | Market Value | Taxable Mkt Value | Gross Assessed | Exemption | Net Assessed | Millage | Est. Tax | Tax Savings | |||||
|
2025 |
203,000 |
203,000 |
22,330 |
0 |
22,330 |
117.21 |
$2,617 |
$0 |
|||||
|
2024 |
196,500 |
196,500 |
21,615 |
0 |
21,615 |
116.35 |
$2,515 |
$0 |
|||||
|
2023 |
187,000 |
146,424 |
16,106 |
1,000 |
15,106 |
118.06 |
$1,783 |
$645 |
|||||
|
2022 |
162,000 |
142,160 |
15,637 |
1,000 |
14,637 |
116.14 |
$1,700 |
$370 |
|||||
|
2021 |
145,000 |
138,020 |
15,182 |
1,000 |
14,182 |
116.17 |
$1,648 |
$205 |
|||||
| Property Account Status/Adjustments/Exemptions | ||
|---|---|---|
| Account # | Exemption Description | Amount |
|
R124421030 |
5% Capped Account |
0 |
| Property Deed Transaction History (Recorded in the County Clerk's Office) | ||||||||||
|---|---|---|---|---|---|---|---|---|---|---|
| Date | Type | Book | Page | Price | Grantor | Grantee | ||||
|
9/27/2023 |
|
Deeds |
$195,000 |
BOOTH JACOB WILLIAM & KELSI LYNN |
GROSS MELANIE L |
|||||
|
7/20/2018 |
|
Deeds |
$130,000 |
BERGLAN GARY L TRS |
BOOTH JACOB WILLIAM & KELSI LYNN |
|||||
|
2/4/2014 |
|
Deeds |
$0 |
BERGLAN GARY L |
BERGLAN GARY L TRS |
|||||
|
9/27/2001 |
|
Deeds |
$84,000 |
STEVENS CYNTHIA J |
BERGLAN GARY L |
|||||
|
7/18/1996 |
|
Historical |
$75,500 |
ESPECIALLY DESIGNED HOMES INC |
STEVENS CYNTHIA J |
|||||
| Last Mailed Notice of Value (N.O.V.) Information/History | ||||||||
|---|---|---|---|---|---|---|---|---|
| Year | Date | Market Value | Taxable Market Value | Gross Assessed | Exemption | Net Assessed | ||
|
2026 |
02/06/2026 |
213,500 |
213,150 |
23,446 |
0 |
23,446 |
||
|
2025 |
01/31/2025 |
203,000 |
203,000 |
22,330 |
0 |
22,330 |
||
|
2024 |
01/22/2024 |
196,500 |
196,500 |
21,615 |
0 |
21,615 |
||
|
2023 |
01/23/2023 |
187,000 |
146,424 |
16,106 |
1,000 |
15,106 |
||
|
2022 |
02/22/2022 |
162,000 |
142,160 |
15,637 |
1,000 |
14,637 |
||
| Property Building Permit History | ||||||
|---|---|---|---|---|---|---|
| Issued | Permit # | Provided by | Bldg # | Description | Est Construction Cost | Status |
|
3/20/1996 |
10211508 |
CHOCTAW |
1 |
Main Dwellin |
65,000 |
Inactive |
| Click button on building number to access detailed information: | ||||||
|---|---|---|---|---|---|---|
| Bldg # | Vacant/Improved Land | Bldg Description | Year Built | SqFt | # Stories | |
|
1 |
Improved |
Ranch 1 Story |
1996 |
1,387 |
1 Stories |
|