|
|
|
| Larry Stein Oklahoma County Assessor (405) 713-1200 - Public Access System |
|
|
|
|
|
|
| Real Property Display - Screen Produced 3/12/2026 3:58:24 PM | ||||
|---|---|---|---|---|
| Account: R124421090 | Type: Residential | Location: |
1800 N SHAWNEE TRL |
|
| Building Name/Occupant: |
|
CHOCTAW |
||
| Owner Name 1: | JONES JULIAN TREMAYNE |
Parcel PIN#: |
2301-12-442-1090 |
|
| Owner Name 2: | 1/4 section #: |
2301 |
||
| Owner Name 3: | Parent Acct: |
|
||
| Billing Address: | 1800 N SHAWNEE TRL | Tax District: |
|
|
| City, State, Zip | CHOCTAW, OK 73020 | School System: |
Choctaw #4 |
|
|
Country: (If noted) |
Land Size: |
0.1768 Acres |
||
|
Land Value: 33,110 |
|
|||
|
Sect 26-T12N-R1W Qtr NE |
CHOCTAW TRAILS SEC TWO
Block
009
Lot
008
|
|||
| Full Legal Description: CHOCTAW TRAILS SEC TWO 009 008 |
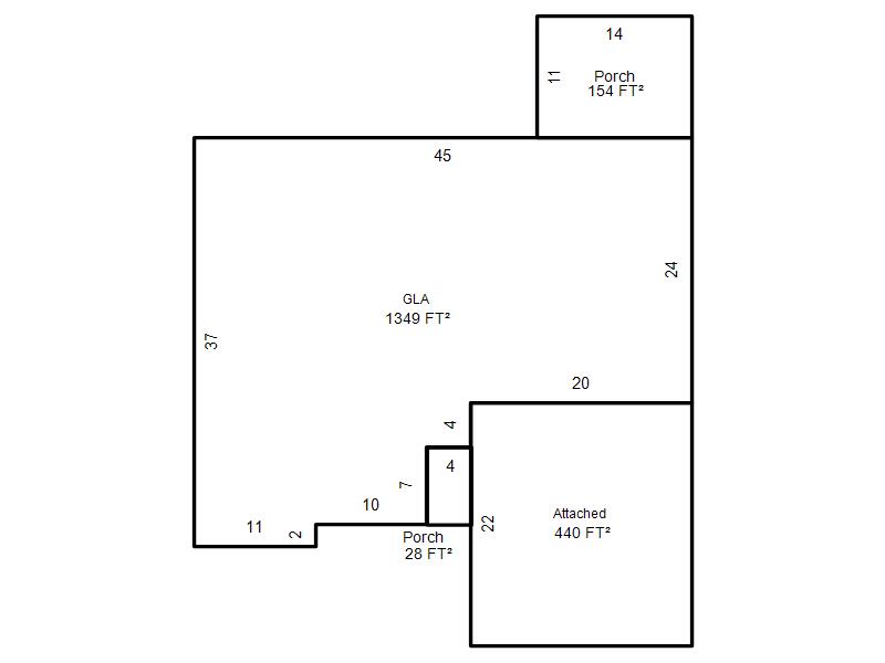
| Photo & Sketch (if available) | Comp Sales (ordered by relevancy) |
|
||||||||||||||||||
|
||||||||||||||||||||
| Value History (*The County Treasurer 405-713-1300 posts & collects actual tax amounts. Contact information HERE) | |||||||||||||
|---|---|---|---|---|---|---|---|---|---|---|---|---|---|
| Year | Market Value | Taxable Mkt Value | Gross Assessed | Exemption | Net Assessed | Millage | Est. Tax | Tax Savings | |||||
|
2025 |
204,000 |
169,744 |
18,671 |
0 |
18,671 |
117.21 |
$2,189 |
$442 |
|||||
|
2024 |
197,500 |
161,661 |
17,781 |
0 |
17,781 |
116.35 |
$2,069 |
$459 |
|||||
|
2023 |
188,000 |
153,963 |
16,935 |
0 |
16,935 |
118.06 |
$1,999 |
$442 |
|||||
|
2022 |
162,000 |
146,632 |
16,129 |
0 |
16,129 |
116.14 |
$1,873 |
$196 |
|||||
|
2021 |
145,500 |
139,650 |
15,361 |
0 |
15,361 |
116.17 |
$1,785 |
$75 |
|||||
| Property Account Status/Adjustments/Exemptions | ||
|---|---|---|
| Account # | Exemption Description | Amount |
|
R124421090 |
5% Capped Account |
0 |
| Property Deed Transaction History (Recorded in the County Clerk's Office) | ||||||||||
|---|---|---|---|---|---|---|---|---|---|---|
| Date | Type | Book | Page | Price | Grantor | Grantee | ||||
|
10/20/2017 |
|
Deeds |
$117,500 |
MIXON EFFLYNE 2007 REV TRUST |
JONES JULIAN TREMAYNE |
|||||
|
12/27/2007 |
|
Deeds |
$0 |
MIXON MARTHA E |
MIXON EFFLYNE 2007 REV TRUST |
|||||
|
7/16/1997 |
|
Historical |
$76,000 |
OHAGAN MICHAEL B & RENE A |
MIXON MARTHA E |
|||||
|
11/25/1996 |
|
Historical |
$0 |
FIRST AMERICAN TITLE |
OHAGAN MICHAEL B & RENE A |
|||||
|
3/11/1996 |
|
Historical |
$0 |
FOUR STAR HOMES INC |
FIRST AMERICAN TITLE |
|||||
| Last Mailed Notice of Value (N.O.V.) Information/History | ||||||||
|---|---|---|---|---|---|---|---|---|
| Year | Date | Market Value | Taxable Market Value | Gross Assessed | Exemption | Net Assessed | ||
|
2026 |
02/06/2026 |
215,500 |
178,231 |
19,604 |
0 |
19,604 |
||
|
2025 |
01/31/2025 |
204,000 |
169,744 |
18,671 |
0 |
18,671 |
||
|
2024 |
01/22/2024 |
197,500 |
161,661 |
17,781 |
0 |
17,781 |
||
|
2023 |
01/23/2023 |
188,000 |
153,963 |
16,935 |
0 |
16,935 |
||
|
2022 |
02/22/2022 |
162,000 |
146,632 |
16,129 |
0 |
16,129 |
||
| Property Building Permit History | ||||||
|---|---|---|---|---|---|---|
| Issued | Permit # | Provided by | Bldg # | Description | Est Construction Cost | Status |
|
12/26/1996 |
10211516 |
CHOCTAW |
1 |
Main Dwellin |
60,000 |
Inactive |
| Click button on building number to access detailed information: | ||||||
|---|---|---|---|---|---|---|
| Bldg # | Vacant/Improved Land | Bldg Description | Year Built | SqFt | # Stories | |
|
1 |
Improved |
Ranch 1 Story |
1997 |
1,349 |
1 Stories |
|